Your email has been sent.
Highlights
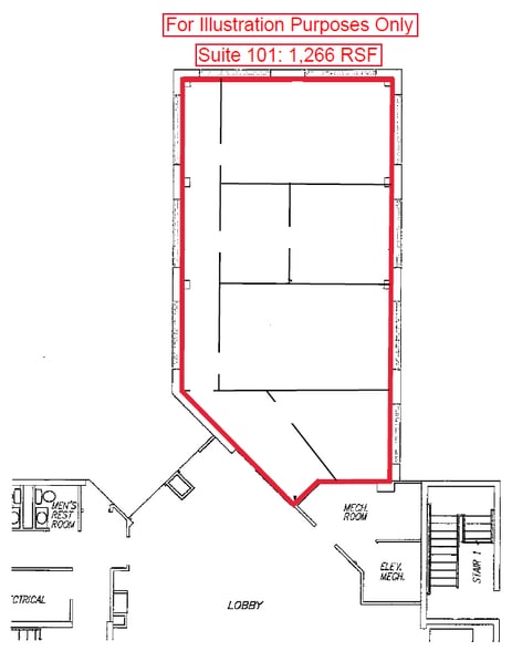
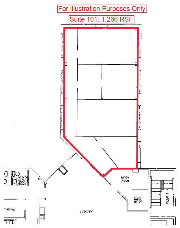
- Suite 101: 1,266 RSF. Reception, 3 Offices, Conference, Break Area
- Suite 304: 1,447 RSF. Reception Area, 4 Private Offices, IT Closet
- 168 Paved/Striped/Lighted Common Parking Spaces
- Suite 301: 1,950 RSF. Open Configuration, 2 Offices, Break Room, Server Room
- 100% Fire Sprinklered. Elevator Access and Common Restrooms on Each Floor
- Est. $7.89 PSF OPEX (Includes Water/Sewer)
All Available Spaces(3)
Display Rental Rate as
- Space
- Size
- Term
- Rental Rate
- Space Use
- Build-Out
- Available
Suite 101 is 1,266 RSF. Interior includes a reception, 3 offices, conference room, and a break area. Drop ceiling and mix of carpet/tile throughout. First floor unit with direct parking lot and lobby access. Est. $7.89 PSF OPEX.
- Lease rate does not include utilities, property expenses or building services
- Office intensive layout
- Space is in Excellent Condition
- Reception Area
- Drop Ceilings
- Reception, 3 Offices, Conference, Break Area
- Lots of Windows/Natural Light
- Fully Built-Out as Standard Office
- Conference Rooms
- Central Air Conditioning
- Corner Space
- Natural Light
- Direct Parking Lot & Lobby Access
- Est. $7.89 PSF OPEX
Suite 301 is 1,950 RSF. Interior is primarily open configuration with 2 private offices, a break room, and a server room. Lots of windows/sunlight... views of the surrounding canals and Banana River. Elevator access. Common restrooms. Est. $7.89 PSF OPEX.
- Lease rate does not include utilities, property expenses or building services
- Mostly Open Floor Plan Layout
- Space is in Excellent Condition
- Corner Space
- Natural Light
- Open Configuration, 2 Private Offices, Break Room
- Views of the Banana River / Surrounding Canals
- Fully Built-Out as Standard Office
- 2 Private Offices
- Central Air Conditioning
- Drop Ceilings
- Open-Plan
- Lots of Windows/Sunlight
- Est. $7.89 PSF OPEX
Unit 304 is 1,447 RSF. Interior includes a reception area, 4 private offices, and open configuration for cubes/storage. Lots of windows/sunlight. Views of the surrounding canals and Banana River. Elevator access. Common restrooms. Est. $7.89 PSF OPEX.
- Lease rate does not include utilities, property expenses or building services
- 4 Private Offices
- Central Air Conditioning
- Natural Light
- Lots of Windows/Sunlight
- Est. $7.89 PSF OPEX
- Fully Built-Out as Standard Office
- Space is in Excellent Condition
- Drop Ceilings
- Reception Area and 4 Private Offices
- Views of the Banana River & Surrounding Canals
| Space | Size | Term | Rental Rate | Space Use | Build-Out | Available |
| 1st Floor, Ste 101 | 1,266 SF | Negotiable | $14.95 /SF/YR $1.25 /SF/MO $18,927 /YR $1,577 /MO | Office | Full Build-Out | 30 Days |
| 3rd Floor, Ste 301 | 1,950 SF | Negotiable | $14.95 /SF/YR $1.25 /SF/MO $29,153 /YR $2,429 /MO | Office | Full Build-Out | Now |
| 3rd Floor, Ste 304 | 1,447 SF | Negotiable | $14.95 /SF/YR $1.25 /SF/MO $21,633 /YR $1,803 /MO | Office | Full Build-Out | Now |
1st Floor, Ste 101
| Size |
| 1,266 SF |
| Term |
| Negotiable |
| Rental Rate |
| $14.95 /SF/YR $1.25 /SF/MO $18,927 /YR $1,577 /MO |
| Space Use |
| Office |
| Build-Out |
| Full Build-Out |
| Available |
| 30 Days |
3rd Floor, Ste 301
| Size |
| 1,950 SF |
| Term |
| Negotiable |
| Rental Rate |
| $14.95 /SF/YR $1.25 /SF/MO $29,153 /YR $2,429 /MO |
| Space Use |
| Office |
| Build-Out |
| Full Build-Out |
| Available |
| Now |
3rd Floor, Ste 304
| Size |
| 1,447 SF |
| Term |
| Negotiable |
| Rental Rate |
| $14.95 /SF/YR $1.25 /SF/MO $21,633 /YR $1,803 /MO |
| Space Use |
| Office |
| Build-Out |
| Full Build-Out |
| Available |
| Now |
1st Floor, Ste 101
| Size | 1,266 SF |
| Term | Negotiable |
| Rental Rate | $14.95 /SF/YR |
| Space Use | Office |
| Build-Out | Full Build-Out |
| Available | 30 Days |
Suite 101 is 1,266 RSF. Interior includes a reception, 3 offices, conference room, and a break area. Drop ceiling and mix of carpet/tile throughout. First floor unit with direct parking lot and lobby access. Est. $7.89 PSF OPEX.
- Lease rate does not include utilities, property expenses or building services
- Fully Built-Out as Standard Office
- Office intensive layout
- Conference Rooms
- Space is in Excellent Condition
- Central Air Conditioning
- Reception Area
- Corner Space
- Drop Ceilings
- Natural Light
- Reception, 3 Offices, Conference, Break Area
- Direct Parking Lot & Lobby Access
- Lots of Windows/Natural Light
- Est. $7.89 PSF OPEX
3rd Floor, Ste 301
| Size | 1,950 SF |
| Term | Negotiable |
| Rental Rate | $14.95 /SF/YR |
| Space Use | Office |
| Build-Out | Full Build-Out |
| Available | Now |
Suite 301 is 1,950 RSF. Interior is primarily open configuration with 2 private offices, a break room, and a server room. Lots of windows/sunlight... views of the surrounding canals and Banana River. Elevator access. Common restrooms. Est. $7.89 PSF OPEX.
- Lease rate does not include utilities, property expenses or building services
- Fully Built-Out as Standard Office
- Mostly Open Floor Plan Layout
- 2 Private Offices
- Space is in Excellent Condition
- Central Air Conditioning
- Corner Space
- Drop Ceilings
- Natural Light
- Open-Plan
- Open Configuration, 2 Private Offices, Break Room
- Lots of Windows/Sunlight
- Views of the Banana River / Surrounding Canals
- Est. $7.89 PSF OPEX
3rd Floor, Ste 304
| Size | 1,447 SF |
| Term | Negotiable |
| Rental Rate | $14.95 /SF/YR |
| Space Use | Office |
| Build-Out | Full Build-Out |
| Available | Now |
Unit 304 is 1,447 RSF. Interior includes a reception area, 4 private offices, and open configuration for cubes/storage. Lots of windows/sunlight. Views of the surrounding canals and Banana River. Elevator access. Common restrooms. Est. $7.89 PSF OPEX.
- Lease rate does not include utilities, property expenses or building services
- Fully Built-Out as Standard Office
- 4 Private Offices
- Space is in Excellent Condition
- Central Air Conditioning
- Drop Ceilings
- Natural Light
- Reception Area and 4 Private Offices
- Lots of Windows/Sunlight
- Views of the Banana River & Surrounding Canals
- Est. $7.89 PSF OPEX
Property Overview
Located in the heart of Cocoa Beach approximately halfway between Patrick Space Force Base and Port Canaveral. State Road 520 and State Road 528 are nearby, both of which provide immediate access to US1 and Interstate 95. Nearby employers include Kennedy Space Center, Cocoa Beach High School, and Cape Canaveral Hospital to name a few. Make this the future home for your business today!
- 24 Hour Access
- Atrium
- Courtyard
- Property Manager on Site
- Monument Signage
- Air Conditioning
Property Facts
Presented by
ESO Tower | 150 Cocoa Isles Blvd
Hmm, there seems to have been an error sending your message. Please try again.
Thanks! Your message was sent.












