Enter your email to login or create a free account
This feature is unavailable at the moment.
We apologize, but the feature you are trying to access is currently unavailable. We are aware of this issue and our team is working hard to resolve the matter.
Please check back in a few minutes. We apologize for the inconvenience.
- LoopNet Team
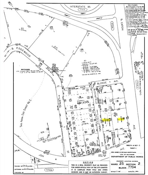
1520 S Caton Ave
Baltimore, MD 21227
Property For Lease

Highlights
- Excellent Access to All Major Highways
- 3.22 Acres
- Sprinklers plus Halon System
- Zoned OIC, Enterprise Zone
- Ballasted EDPM Roof System
- Double Door Loading Entrance
Property Overview
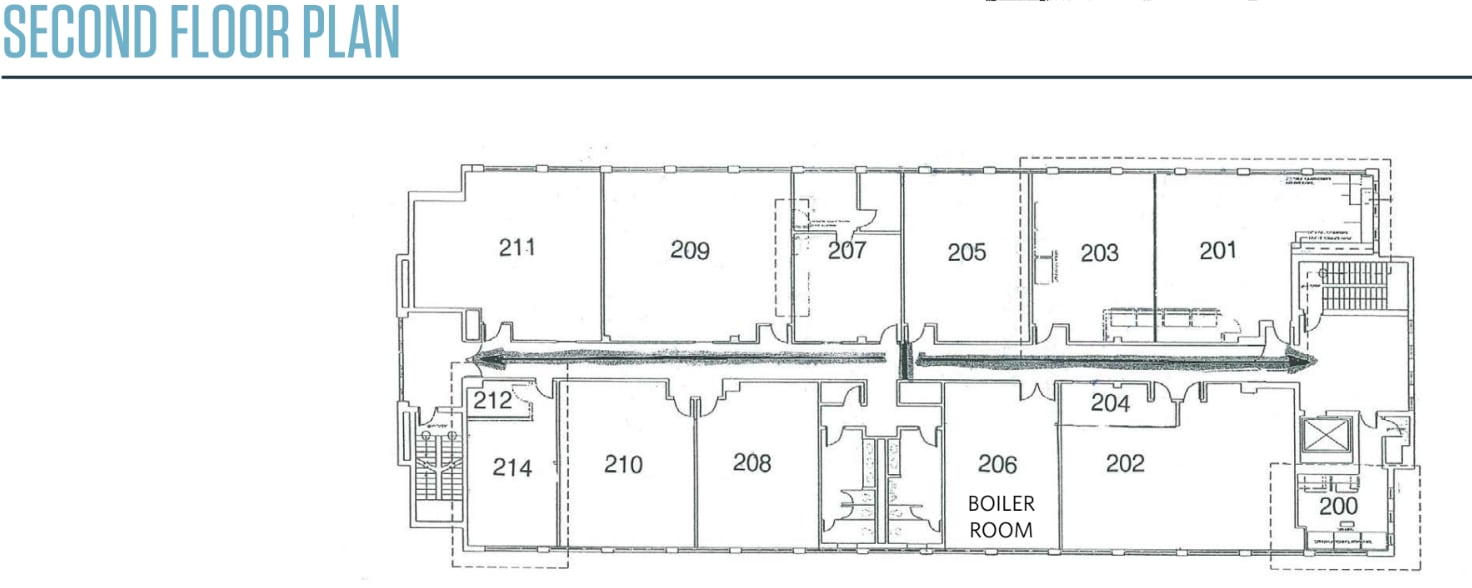
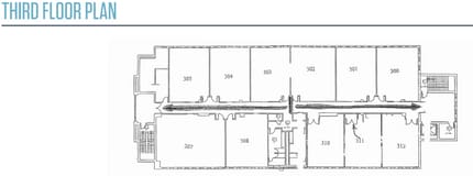
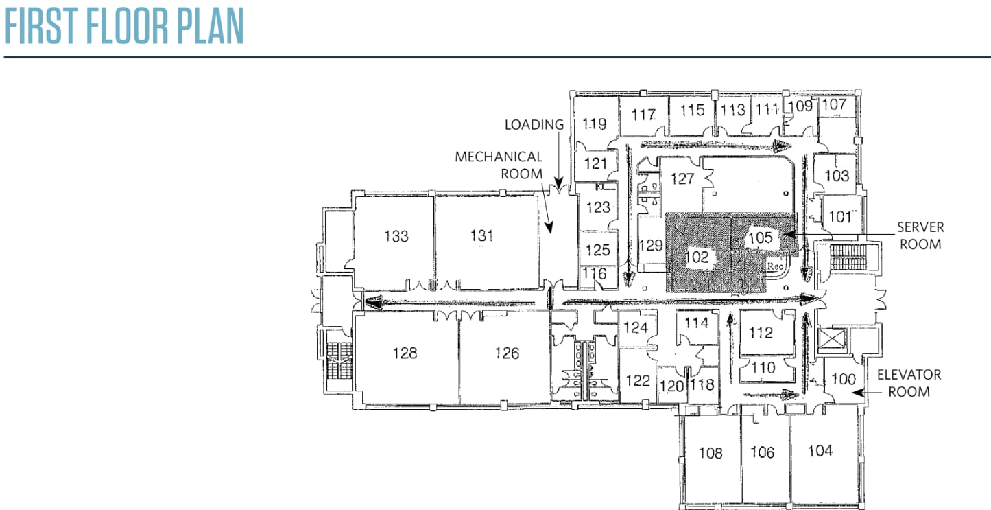
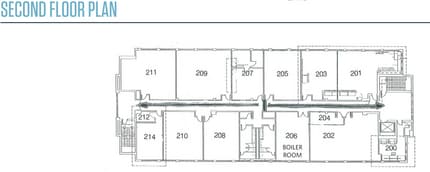
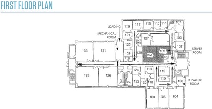
Located at 1520 S Caton Avenue in Baltimore, MD, this versatile commercial property was formerly occupied by Brightwood College and offers a unique leasing opportunity. Situated on a 3.22-acre lot, the three-story building encompasses approximately 49,493 square feet of space and is available for partial or complete lease. The property boasts excellent connectivity, with immediate access to I-95 and proximity to I-695, facilitating convenient transportation to downtown Baltimore and surrounding areas. Its strategic location at the intersection of Caton and Joh Avenues experiences high traffic counts, enhancing visibility for potential tenants.
Property Facts
Attachments
| 1520-S-Caton-Ave Brochure |
Listing ID: 36013135
Date on Market: 5/28/2025
Last Updated:
Address: 1520 S Caton Ave, Baltimore, MD 21227
The Violetville Office Property at 1520 S Caton Ave, Baltimore, MD 21227 is no longer being advertised on LoopNet.com. Contact the broker for information on availability.
OFFICE PROPERTIES IN NEARBY NEIGHBORHOODS
- Canton Commercial Real Estate Properties
- Downtown Baltimore Commercial Real Estate Properties
- North Baltimore City Commercial Real Estate Properties
- South Baltimore Commercial Real Estate Properties
- Federal Hill Commercial Real Estate Properties
- Northeast Baltimore City Commercial Real Estate Properties
- West Baltimore City Commercial Real Estate Properties
- Northwest Baltimore City Commercial Real Estate Properties
- Jessup-Howard Commercial Real Estate Properties
- Towson Circle Commercial Real Estate Properties
- Historic Baltimore Commercial Real Estate Properties
- Riverside Commercial Real Estate Properties
- Arbutus Commercial Real Estate Properties
- Milford Mill Commercial Real Estate Properties
- Fells Point Commercial Real Estate Properties
NEARBY LISTINGS
- 1305 Furnace Rd, Linthicum Heights MD
- 810 Oregon Ave, Linthicum MD
- 1190 Winterson Rd, Linthicum MD
- 2131 Maryland Ave, Baltimore MD
- 1111 Park Ave, Baltimore MD
- 208 S Pulaski St, Baltimore MD
- 785 Elkridge Landing Rd, Linthicum MD
- 517 Scott St, Baltimore MD
- 5602 Baltimore National Pike, Catonsville MD
- 723 Frederick Rd, Catonsville MD
- 30 W Biddle St, Baltimore MD
- 2229 N Charles St, Baltimore MD
- 901 N Broadway, Baltimore MD
- 720 S Montford Ave, Baltimore MD
- 1111 Maryland Ave, Baltimore MD
