Your email has been sent.
Park Highlights
- Creative campus environment ideal for biotechnology, technology, venture capital and life science companies.
- Newly renovated lobbies, corridors, and landscaping throughout the campus.
- Convenient access to and from the 101 Freeway for regional connectivity.
- Adjacent to Biotech anchors such as Amgen, Atara Biotherapeutics, and Takeda Pharmaceuticals.
- Abundant free parking at a 4/1,000 ratio for tenant convenience.
- Monument and building signage available for enhanced visibility.
Park Facts
| Total Space Available | 32,182 SF | Park Type | Industrial Park |
| Max. Contiguous | 12,433 SF | Features | Monument Signage |
| Total Space Available | 32,182 SF |
| Max. Contiguous | 12,433 SF |
| Park Type | Industrial Park |
| Features | Monument Signage |
Features and Amenities
- Monument Signage
All Available Spaces(6)
Display Rental Rate as
- Space
- Size
- Term
- Rental Rate
- Space Use
- Build-Out
- Available
Large open floor plan with flexible layout options, ideal for collaborative work environments. Features abundant natural light and direct access to common areas.
- Rate includes utilities, building services and property expenses
- Mostly Open Floor Plan Layout
- Space is in Excellent Condition
- Fully Built-Out as Standard Office
- Fits 36 - 114 People
Efficient suite with multiple private offices and open workspace. Includes convenient access to shared amenities and conference areas.
- Rate includes utilities, building services and property expenses
- 5 Private Offices
- Space features a kitchenette/break room.
- Fits 7 - 23 People
- 1 Conference Room
Open configuration suitable for creative or technical teams. Offers excellent visibility within the building and proximity to common facilities.
- Rate includes utilities, building services and property expenses
- Open Floor Plan Layout
- Space is in Excellent Condition
- Corner suite offers visibility.
- Fully Built-Out as Standard Office
- Fits 8 - 23 People
- Corner Space
Expansive second-floor suite with open plan design and perimeter window lines. Provides scenic views and easy access to building amenities. Potential to expand.
- Rate includes utilities, building services and property expenses
- Open Floor Plan Layout
- Space is in Excellent Condition
- Corner Space
- Fully Built-Out as Standard Office
- Fits 21 - 67 People
- Can be combined with additional space(s) for up to 12,433 SF of adjacent space
- Can potentially deliver full 32,028 RSF 2nd floor.
Compact suite featuring a conference room, open area, and pantry/IT space. Ideal for small teams seeking a functional layout.
- Rate includes utilities, building services and property expenses
- Mostly Open Floor Plan Layout
- 1 Conference Room
- Can be combined with additional space(s) for up to 12,433 SF of adjacent space
- Fully Built-Out as Standard Office
- Fits 4 - 13 People
- Space is in Excellent Condition
- Can potentially deliver full 32,028 RSF 2nd floor.
Well-designed suite with a mix of private offices and open space. Positioned for convenient access to building services and natural light.
- Rate includes utilities, building services and property expenses
- Mostly Open Floor Plan Layout
- 4 Private Offices
- Can be combined with additional space(s) for up to 12,433 SF of adjacent space
- Can potentially deliver full 32,028 RSF 2nd floor.
- Fully Built-Out as Standard Office
- Fits 7 - 21 People
- Space is in Excellent Condition
- Natural Light
| Space | Size | Term | Rental Rate | Space Use | Build-Out | Available |
| 1st Floor, Ste 100 | 14,130 SF | Negotiable | $27.00 /SF/YR $2.25 /SF/MO $381,510 /YR $31,793 /MO | Office | Full Build-Out | 60 Days |
| 1st Floor, Ste 103 | 2,778 SF | Negotiable | $27.00 /SF/YR $2.25 /SF/MO $75,006 /YR $6,251 /MO | Office | - | Now |
| 1st Floor, Ste 104B | 2,841 SF | Negotiable | $27.00 /SF/YR $2.25 /SF/MO $76,707 /YR $6,392 /MO | Office | Full Build-Out | 60 Days |
| 2nd Floor, Ste 201 | 8,326 SF | Negotiable | $27.00 /SF/YR $2.25 /SF/MO $224,802 /YR $18,734 /MO | Office | Full Build-Out | Now |
| 2nd Floor, Ste 204 | 1,546 SF | Negotiable | $27.00 /SF/YR $2.25 /SF/MO $41,742 /YR $3,479 /MO | Office | Full Build-Out | Now |
| 2nd Floor, Ste 206 | 2,561 SF | Negotiable | $27.00 /SF/YR $2.25 /SF/MO $69,147 /YR $5,762 /MO | Office | Full Build-Out | Now |
1525 Rancho Conejo Blvd - 1st Floor - Ste 100
1525 Rancho Conejo Blvd - 1st Floor - Ste 103
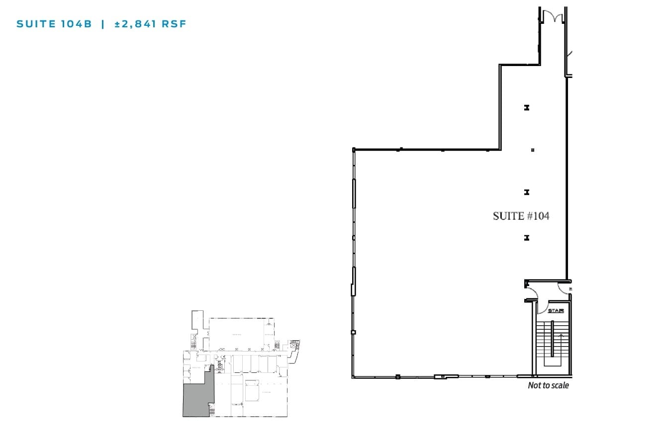
1525 Rancho Conejo Blvd - 1st Floor - Ste 104B
1525 Rancho Conejo Blvd - 2nd Floor - Ste 201
1525 Rancho Conejo Blvd - 2nd Floor - Ste 204
1525 Rancho Conejo Blvd - 2nd Floor - Ste 206
1525 Rancho Conejo Blvd - 1st Floor - Ste 100
| Size | 14,130 SF |
| Term | Negotiable |
| Rental Rate | $27.00 /SF/YR |
| Space Use | Office |
| Build-Out | Full Build-Out |
| Available | 60 Days |
Large open floor plan with flexible layout options, ideal for collaborative work environments. Features abundant natural light and direct access to common areas.
- Rate includes utilities, building services and property expenses
- Fully Built-Out as Standard Office
- Mostly Open Floor Plan Layout
- Fits 36 - 114 People
- Space is in Excellent Condition
1525 Rancho Conejo Blvd - 1st Floor - Ste 103
| Size | 2,778 SF |
| Term | Negotiable |
| Rental Rate | $27.00 /SF/YR |
| Space Use | Office |
| Build-Out | - |
| Available | Now |
Efficient suite with multiple private offices and open workspace. Includes convenient access to shared amenities and conference areas.
- Rate includes utilities, building services and property expenses
- Fits 7 - 23 People
- 5 Private Offices
- 1 Conference Room
- Space features a kitchenette/break room.
1525 Rancho Conejo Blvd - 1st Floor - Ste 104B
| Size | 2,841 SF |
| Term | Negotiable |
| Rental Rate | $27.00 /SF/YR |
| Space Use | Office |
| Build-Out | Full Build-Out |
| Available | 60 Days |
Open configuration suitable for creative or technical teams. Offers excellent visibility within the building and proximity to common facilities.
- Rate includes utilities, building services and property expenses
- Fully Built-Out as Standard Office
- Open Floor Plan Layout
- Fits 8 - 23 People
- Space is in Excellent Condition
- Corner Space
- Corner suite offers visibility.
1525 Rancho Conejo Blvd - 2nd Floor - Ste 201
| Size | 8,326 SF |
| Term | Negotiable |
| Rental Rate | $27.00 /SF/YR |
| Space Use | Office |
| Build-Out | Full Build-Out |
| Available | Now |
Expansive second-floor suite with open plan design and perimeter window lines. Provides scenic views and easy access to building amenities. Potential to expand.
- Rate includes utilities, building services and property expenses
- Fully Built-Out as Standard Office
- Open Floor Plan Layout
- Fits 21 - 67 People
- Space is in Excellent Condition
- Can be combined with additional space(s) for up to 12,433 SF of adjacent space
- Corner Space
- Can potentially deliver full 32,028 RSF 2nd floor.
1525 Rancho Conejo Blvd - 2nd Floor - Ste 204
| Size | 1,546 SF |
| Term | Negotiable |
| Rental Rate | $27.00 /SF/YR |
| Space Use | Office |
| Build-Out | Full Build-Out |
| Available | Now |
Compact suite featuring a conference room, open area, and pantry/IT space. Ideal for small teams seeking a functional layout.
- Rate includes utilities, building services and property expenses
- Fully Built-Out as Standard Office
- Mostly Open Floor Plan Layout
- Fits 4 - 13 People
- 1 Conference Room
- Space is in Excellent Condition
- Can be combined with additional space(s) for up to 12,433 SF of adjacent space
- Can potentially deliver full 32,028 RSF 2nd floor.
1525 Rancho Conejo Blvd - 2nd Floor - Ste 206
| Size | 2,561 SF |
| Term | Negotiable |
| Rental Rate | $27.00 /SF/YR |
| Space Use | Office |
| Build-Out | Full Build-Out |
| Available | Now |
Well-designed suite with a mix of private offices and open space. Positioned for convenient access to building services and natural light.
- Rate includes utilities, building services and property expenses
- Fully Built-Out as Standard Office
- Mostly Open Floor Plan Layout
- Fits 7 - 21 People
- 4 Private Offices
- Space is in Excellent Condition
- Can be combined with additional space(s) for up to 12,433 SF of adjacent space
- Natural Light
- Can potentially deliver full 32,028 RSF 2nd floor.
Matterport 3D Tours
Select Tenants at This Property
- Floor
- Tenant Name
- Industry
- 1st
- Cad/Cam Consulting Service Inc
- Professional, Scientific, and Technical Services
- 2nd
- GRN Thousand Oaks
- Professional, Scientific, and Technical Services
- 2nd
- International Forming
- Construction
- 1st
- McKesson
- Retailer
- 1st
- South Coast Radiological Medical Group
- Health Care and Social Assistance
Park Overview
HATCHcampus @ Conejo Spectrum is a 14-acre campus catering to emerging STEM-based companies in the life sciences, including over 168,000 square feet of space dedicated across two buildings. HATCHcampus is centrally located along the emerging 101 Biotech Corridor within Thousand Oaks / Newbury Park and is surrounded by biotechnology anchors such as Amgen, Atara Biotherapeutics, and Takeda Pharmaceuticals. The campus setting includes outdoor space, hillside views, and proximity to hiking and mountain biking trails and is slated to include unique food and beverage programming options on campus. HATCHCampus@ConejoSpectrum offers convenient commuting options with just a five-minute drive to US-101/Ventura Freeway, the major east-west artery in the region, and a 13-minute drive to the Camarillo Commuter Rail, which services the Ventura County Line of the Metrolink. For business needs, the Oxnard Airport can be reached in less than 30 minutes. HATCHcampus @Conejo Spectrum is comprised of a 100,000 square-foot R&D facility at 1535 Rancho Conejo Blvd and a 63,000 square-foot two-story office building at 1525 Rancho Conejo Blvd. 1525 Rancho Conejo is a low-density two-story office building with wide hallways and spacious layouts to accommodate ongoing concerns in a post-COVID 19 office environment. The current vacant suites are tenant ready, and a combination of offices along the window lines and open floor plans allow for flexible workspace designs. It is an ideal space for digital healthcare, technology, law offices, venture capital, or similar industries that will benefit from proximity to other STEM-focused companies.
Park Brochure
About Thousand Oaks
Thousand Oaks is a community on the northwestern border of Los Angeles County with historic roots in ranching and agriculture. Residents enjoy the vast stretches natural land across the Conejo Valley and proximity to the beaches in Malibu. Today, the area is one of the largest flex-office neighborhoods in Ventura County.
The community was an early home to high-technology companies and still features a diverse industry. Among the firms located in Thousand Oaks are many pharmaceutical and medical device manufacturing companies, such as Amgen, Atara Biotherapeutics, and Implant Direct.
New development in Thousand Oaks has been limited. Neighborhood opposition to commercial real estate development creates supply constraints for some businesses looking to expand in the area. Yet the premium location near many specialized firms and a well-educated talent pool make this a highly sought-after location. More than half of the working-age population has attained a bachelor’s degree.
Demographics
Regional Accessibility
Leasing Agent
Andres Uribe, Vice President
Prior to joining Radius, Andres began his brokerage career at CBRE in 2015. Throughout his tenure, implementing a true business partner approach, Andres has worked closely with many of the region’s leading landlords and tenants and has been involved in several of the largest transactions in his local market.
Outside his professional life, Andres enjoys spending time with his wife and two young children, traveling, surfing and snowboarding.
In 2025, Andres was recognized as a 2025 Pacific Coast Business Times “40 Under 40 Honoree” noting his leadership and impact in the real estate industry.
About the Owner
Other Properties in the ASG REAL ESTATE, INC. Portfolio
Presented by
HATCHCampus@ConejoSpectrum | Thousand Oaks, CA 91320
Hmm, there seems to have been an error sending your message. Please try again.
Thanks! Your message was sent.















