Log In/Sign Up
Your email has been sent.
Highlights
- Class A medical office space under construction. Delivering summer of 2025
- Excellent visibility
- Tremendous accessibility to service the entire metro area via Rt. 60 and Rt. 288
- Asking rate $33.00/NNN with a generous tenant improvement allowance.
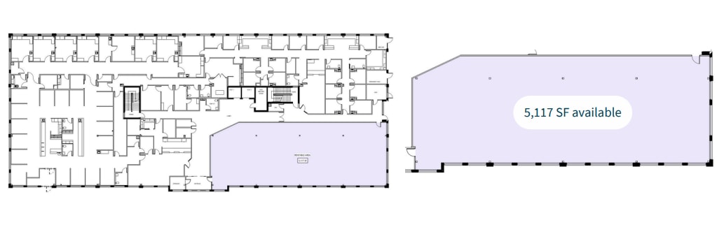
All Available Space(1)
Display Rental Rate as
- Space
- Size
- Term
- Rental Rate
- Space Use
- Build-Out
- Available
- Lease rate does not include utilities, property expenses or building services
| Space | Size | Term | Rental Rate | Space Use | Build-Out | Available |
| 2nd Floor | 4,919 SF | Negotiable | $33.00 /SF/YR $2.75 /SF/MO $162,327 /YR $13,527 /MO | Office/Medical | Shell Space | Now |
2nd Floor
| Size |
| 4,919 SF |
| Term |
| Negotiable |
| Rental Rate |
| $33.00 /SF/YR $2.75 /SF/MO $162,327 /YR $13,527 /MO |
| Space Use |
| Office/Medical |
| Build-Out |
| Shell Space |
| Available |
| Now |
1 of 1
Videos
Matterport 3D Exterior
Matterport 3D Tour
Photos
Street View
Street
Map
2nd Floor
| Size | 4,919 SF |
| Term | Negotiable |
| Rental Rate | $33.00 /SF/YR |
| Space Use | Office/Medical |
| Build-Out | Shell Space |
| Available | Now |
- Lease rate does not include utilities, property expenses or building services
Property Overview
The Premier Medical Office Destination in the Midlothian Area. Watkins Center is a premier location for medical office space. Immediate access to Route 60 and Route 288 offers convenience to residents all over the region. The nearby retail and restaurant amenities offer unparalleled convenience to both patients and staff.
- Natural Light
Property Facts
Building Type
Office
Year Built
2025
LoopNet Rating
4 Star
Building Height
2 Stories
Building Size
50,000 SF
Building Class
A
Typical Floor Size
25,000 SF
Parking
250 Surface Parking Spaces
1 1
Somewhat walkable
30/100
Exceptionally drivable
100/100
Not bikeable
10/100
1 of 9
Videos
Matterport 3D Exterior
Matterport 3D Tour
Photos
Street View
Street
Map
1 of 1
Presented by
15350 E West Rd
Already a member? Log In
Hmm, there seems to have been an error sending your message. Please try again.
Thanks! Your message was sent.





