Log In/Sign Up
Your email has been sent.
Investment Highlights
- Located Adjacent to the new Linder Industrial Machinery Facility.
- Urban Fringe Future Land Use (UF-3)
- Within Manatee County.
- SR 64 Frontage.
Executive Summary
Five acres of industrial land available for sale and located adjacent to the new Linde Industrial Machinery facility.
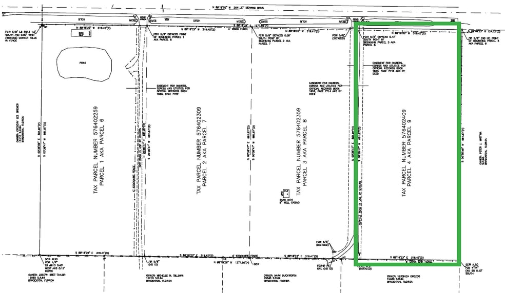
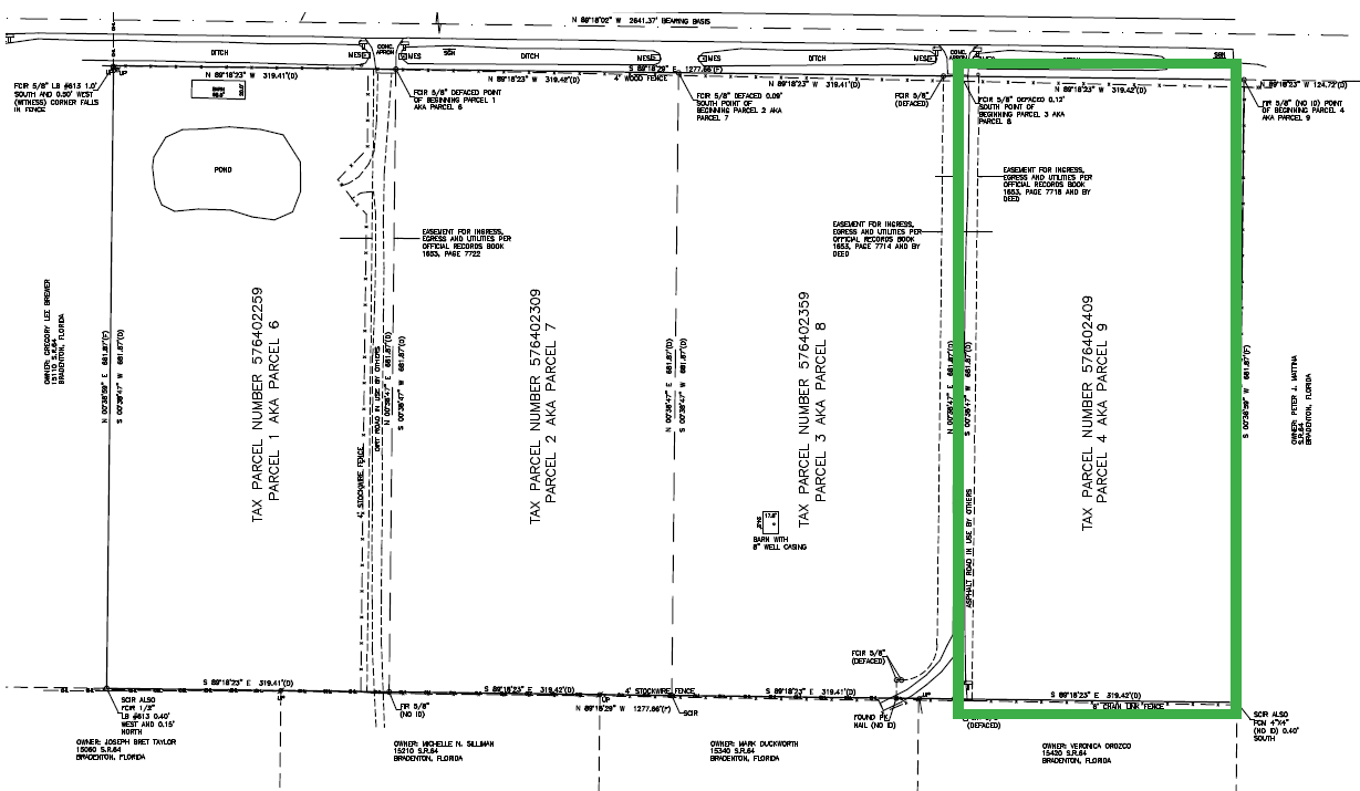
Property Facts
| Price | $3,300,000 | Property Type | Land |
| Sale Type | Investment | Property Subtype | Commercial |
| No. Lots | 1 | Total Lot Size | 5.00 AC |
| Zoning | UF-3 - Urban Fringe Future land use | ||
| Price | $3,300,000 |
| Sale Type | Investment |
| No. Lots | 1 |
| Property Type | Land |
| Property Subtype | Commercial |
| Total Lot Size | 5.00 AC |
| Zoning | UF-3 - Urban Fringe Future land use |
1 Lot Available
Lot
| Price | $3,300,000 | Lot Size | 5.00 AC |
| Price Per AC | $660,000.00 |
| Price | $3,300,000 |
| Price Per AC | $660,000.00 |
| Lot Size | 5.00 AC |
5 acres.
1 1
Property Taxes
| Parcel Number | 5764-0240-9 | Improvements Assessment | $0 |
| Land Assessment | $531,250 | Total Assessment | $531,250 |
Property Taxes
Parcel Number
5764-0240-9
Land Assessment
$531,250
Improvements Assessment
$0
Total Assessment
$531,250
1 of 3
Videos
Matterport 3D Exterior
Matterport 3D Tour
Photos
Street View
Street
Map
1 of 1
Presented by
15450 State Road 64 E
Already a member? Log In
Hmm, there seems to have been an error sending your message. Please try again.
Thanks! Your message was sent.
Your message has been sent!
Activate your LoopNet account now to track properties, get real-time alerts, save time on future inquiries, and more.


