Log In/Sign Up
Your email has been sent.
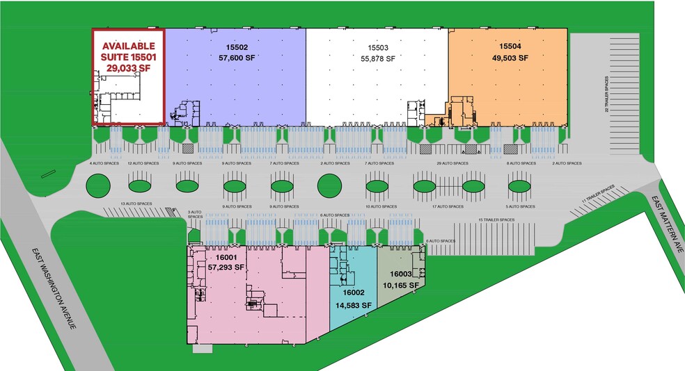
Wash. Ave. Ind. Portfolio 1550 E Washington Ave 29,033 SF of Industrial Space Available in Des Moines, IA 50316



Highlights
- 22’ Clear Height
- Finished office space
- Class I-IV sprinkler coverage (.365 GPM over 2,600 SF)
- Located in popular industrial park near I-80/35
Features
Clear Height
21’2”
Column Spacing
30’ x 40’
Exterior Dock Doors
48
Levelers
48
Cross Docks
Yes
Standard Parking Spaces
179
All Available Space(1)
Display Rental Rate as
- Space
- Size
- Term
- Rental Rate
- Space Use
- Build-Out
- Available
- Lease rate does not include utilities, property expenses or building services
- 2 Loading Docks
- Includes 5,000 SF of dedicated office space
| Space | Size | Term | Rental Rate | Space Use | Build-Out | Available |
| 1st Floor - 15501 | 29,033 SF | Negotiable | $4.95 /SF/YR $0.41 /SF/MO $143,713 /YR $11,976 /MO | Industrial | Full Build-Out | 30 Days |
1st Floor - 15501
| Size |
| 29,033 SF |
| Term |
| Negotiable |
| Rental Rate |
| $4.95 /SF/YR $0.41 /SF/MO $143,713 /YR $11,976 /MO |
| Space Use |
| Industrial |
| Build-Out |
| Full Build-Out |
| Available |
| 30 Days |
1st Floor - 15501
| Size | 29,033 SF |
| Term | Negotiable |
| Rental Rate | $4.95 /SF/YR |
| Space Use | Industrial |
| Build-Out | Full Build-Out |
| Available | 30 Days |
- Lease rate does not include utilities, property expenses or building services
- Includes 5,000 SF of dedicated office space
- 2 Loading Docks
Warehouse Facility Facts
Building Size
192,466 SF
Lot Size
20.00 AC
Year Built
1986
Construction
Masonry
Heating
Gas
Zoning
M
1 1
Fairly walkable
40/100
Exceptionally drivable
90/100
Limited public transit
30/100
Moderately bikeable
60/100
1 of 7
Videos
Matterport 3D Exterior
Matterport 3D Tour
Photos
Street View
Street
Map
1 of 1
Presented by
Wash. Ave. Ind. Portfolio | 1550 E Washington Ave
Already a member? Log In
Hmm, there seems to have been an error sending your message. Please try again.
Thanks! Your message was sent.
