Log In/Sign Up
Your email has been sent.
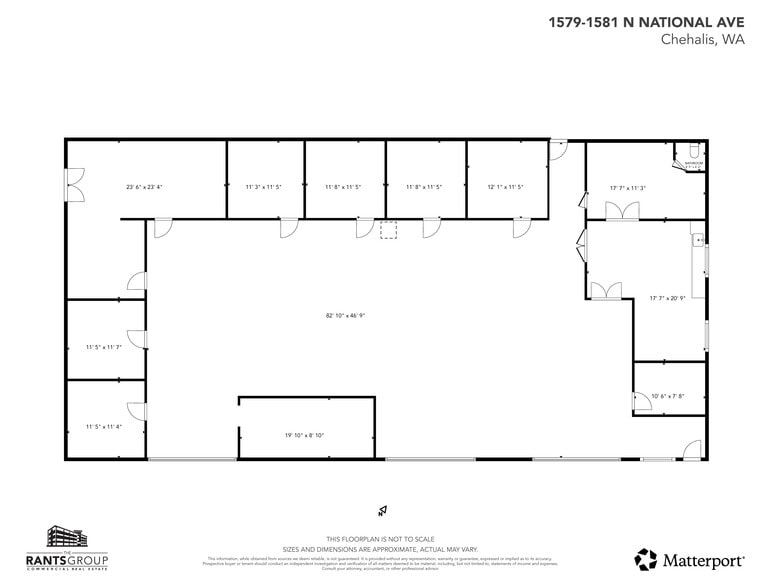
1579-1581 N National Ave - 3 Parcels 1579 N National Ave 14,264 SF Industrial Building Chehalis, WA 98532 $2,399,000 ($168.19/SF)



Investment Highlights
- partially fenced site
- yard space
- warehouse space
Executive Summary
Two warehouses totaling 12,960 sq ft and an adjacent recently updated office building with 1,304 sq ft, plus a grandfathered billboard currently generating $1,600 per month in rental revenue. The 2.2-acre property is conveniently located off of I-5 exit 79 with excellent visibility on National Avenue. Currently occupied by Heritage Restoration, the partially fenced site with rail access is ideal for contractors or any business requiring warehouse space, yard space, and office/admin space in one location. (Parcels: 005615002003, 005615001000, & 005615002004).
Note: Warehouses/billboard are available for purchase separately (parcels 005615002003 & 005615002004) for $2,199,000.
Note: Warehouses/billboard are available for purchase separately (parcels 005615002003 & 005615002004) for $2,199,000.
Property Facts
Amenities
- Fenced Lot
- Security System
- Signage
- Wheelchair Accessible
- Reception
- Monument Signage
- Air Conditioning
- Breakroom
Utilities
- Lighting
- Gas
- Water
- Heating
1 1
Fairly walkable
40/100
Exceptionally drivable
100/100
Limited public transit
30/100
Fairly bikeable
40/100
Property Taxes
| Parcel Number | 005615-002-002 | Improvements Assessment | $126,200 |
| Land Assessment | $262,700 | Total Assessment | $388,900 |
Property Taxes
Parcel Number
005615-002-002
Land Assessment
$262,700
Improvements Assessment
$126,200
Total Assessment
$388,900
1 of 19
Videos
Matterport 3D Exterior
Matterport 3D Tour
Photos
Street View
Street
Map
1 of 1
Presented by
1579-1581 N National Ave - 3 Parcels | 1579 N National Ave
Already a member? Log In
Hmm, there seems to have been an error sending your message. Please try again.
Thanks! Your message was sent.
