Your email has been sent.
Highlights
- Located at the base of 96 newly built apartment buildings
- Steps from Union Street subway station with D, N, R service
- Positioned in the heart of Gowanus near Park Slope and Carroll Gardens
- Surrounded by high-traffic lifestyle and service tenants
- Flexible zoning supports a wide range of retail uses
All Available Spaces(5)
Display Rental Rate as
- Space
- Size
- Term
- Rental Rate
- Space Use
- Build-Out
- Available
Prime Retail Opportunity in Brooklyn's Newest Apartment Buildings
- Partially Built-Out as Standard Retail Space
- Located in-line with other retail
Prime Retail Opportunity in Brooklyn's Newest Apartment Buildings
- Partially Built-Out as Standard Retail Space
- Space B + Space C: 2,300 SF
- Located in-line with other retail
Prime Retail Opportunity in Brooklyn's Newest Apartment Buildings
- Partially Built-Out as Standard Retail Space
- Space B + Space C: 2,300 SF
- Located in-line with other retail
Prime Retail Opportunity in Brooklyn's Newest Apartment Buildings
- Partially Built-Out as Standard Retail Space
- Located in-line with other retail
Prime Retail Opportunity in Brooklyn's Newest Apartment Buildings
- Partially Built-Out as Standard Retail Space
- Located in-line with other retail
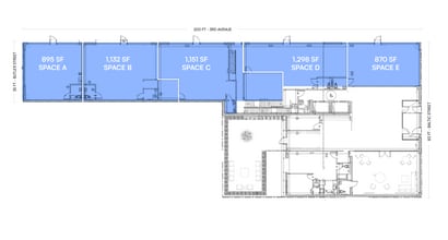
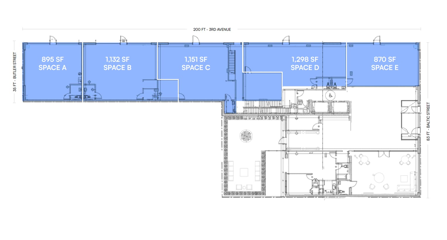
| Space | Size | Term | Rental Rate | Space Use | Build-Out | Available |
| 1st Floor, Ste A | 895 SF | Negotiable | Upon Request Upon Request Upon Request Upon Request | Retail | Partial Build-Out | Now |
| 1st Floor, Ste B | 1,132 SF | Negotiable | Upon Request Upon Request Upon Request Upon Request | Retail | Partial Build-Out | Now |
| 1st Floor, Ste C | 1,151 SF | Negotiable | Upon Request Upon Request Upon Request Upon Request | Retail | Partial Build-Out | Now |
| 1st Floor, Ste D | 1,298 SF | Negotiable | Upon Request Upon Request Upon Request Upon Request | Retail | Partial Build-Out | Now |
| 1st Floor, Ste E | 870 SF | Negotiable | Upon Request Upon Request Upon Request Upon Request | Retail | Partial Build-Out | Now |
1st Floor, Ste A
| Size |
| 895 SF |
| Term |
| Negotiable |
| Rental Rate |
| Upon Request Upon Request Upon Request Upon Request |
| Space Use |
| Retail |
| Build-Out |
| Partial Build-Out |
| Available |
| Now |
1st Floor, Ste B
| Size |
| 1,132 SF |
| Term |
| Negotiable |
| Rental Rate |
| Upon Request Upon Request Upon Request Upon Request |
| Space Use |
| Retail |
| Build-Out |
| Partial Build-Out |
| Available |
| Now |
1st Floor, Ste C
| Size |
| 1,151 SF |
| Term |
| Negotiable |
| Rental Rate |
| Upon Request Upon Request Upon Request Upon Request |
| Space Use |
| Retail |
| Build-Out |
| Partial Build-Out |
| Available |
| Now |
1st Floor, Ste D
| Size |
| 1,298 SF |
| Term |
| Negotiable |
| Rental Rate |
| Upon Request Upon Request Upon Request Upon Request |
| Space Use |
| Retail |
| Build-Out |
| Partial Build-Out |
| Available |
| Now |
1st Floor, Ste E
| Size |
| 870 SF |
| Term |
| Negotiable |
| Rental Rate |
| Upon Request Upon Request Upon Request Upon Request |
| Space Use |
| Retail |
| Build-Out |
| Partial Build-Out |
| Available |
| Now |
1st Floor, Ste A
| Size | 895 SF |
| Term | Negotiable |
| Rental Rate | Upon Request |
| Space Use | Retail |
| Build-Out | Partial Build-Out |
| Available | Now |
Prime Retail Opportunity in Brooklyn's Newest Apartment Buildings
- Partially Built-Out as Standard Retail Space
- Located in-line with other retail
1st Floor, Ste B
| Size | 1,132 SF |
| Term | Negotiable |
| Rental Rate | Upon Request |
| Space Use | Retail |
| Build-Out | Partial Build-Out |
| Available | Now |
Prime Retail Opportunity in Brooklyn's Newest Apartment Buildings
- Partially Built-Out as Standard Retail Space
- Located in-line with other retail
- Space B + Space C: 2,300 SF
1st Floor, Ste C
| Size | 1,151 SF |
| Term | Negotiable |
| Rental Rate | Upon Request |
| Space Use | Retail |
| Build-Out | Partial Build-Out |
| Available | Now |
Prime Retail Opportunity in Brooklyn's Newest Apartment Buildings
- Partially Built-Out as Standard Retail Space
- Located in-line with other retail
- Space B + Space C: 2,300 SF
1st Floor, Ste D
| Size | 1,298 SF |
| Term | Negotiable |
| Rental Rate | Upon Request |
| Space Use | Retail |
| Build-Out | Partial Build-Out |
| Available | Now |
Prime Retail Opportunity in Brooklyn's Newest Apartment Buildings
- Partially Built-Out as Standard Retail Space
- Located in-line with other retail
1st Floor, Ste E
| Size | 870 SF |
| Term | Negotiable |
| Rental Rate | Upon Request |
| Space Use | Retail |
| Build-Out | Partial Build-Out |
| Available | Now |
Prime Retail Opportunity in Brooklyn's Newest Apartment Buildings
- Partially Built-Out as Standard Retail Space
- Located in-line with other retail
Property Facts
| Total Space Available | 5,346 SF | Apartment Style | Mid-Rise |
| No. Units | 92 | Building Size | 68,808 SF |
| Property Type | Multifamily | Year Built | 2026 |
| Property Subtype | Apartment |
| Total Space Available | 5,346 SF |
| No. Units | 92 |
| Property Type | Multifamily |
| Property Subtype | Apartment |
| Apartment Style | Mid-Rise |
| Building Size | 68,808 SF |
| Year Built | 2026 |
About the Property
Located in the Gowanus neighborhood of Brooklyn between Baltic St & Butler St near the Union St subway station. Nearest Transit: D, N, & R trains at Union St and the B103, B37, & B65 bus lines. Nearby tenants include CubeSmart, Brooklyn Car and Van Rentals, Gowanus Fitness, Threes Brewing, Petri Plumbing, Heating Cooling & Drain Cleaning, Luna's Tire Shop 2, ZeroSpace, Wafels & Dinges Warehouse, Gemini and Scorpio Loft, UpFit Training Academy Brooklyn, Herboganic, Mirrors Collective, and more!
Nearby Major Retailers













