Log In/Sign Up
Your email has been sent.
Highlights
- Two miles from Interstate 49.
- Easy access to major highways and nearby amenities.
Features
Drive In Bays
9
Standard Parking Spaces
88
All Available Space(1)
Display Rental Rate as
- Space
- Size
- Term
- Rental Rate
- Space Use
- Build-Out
- Available
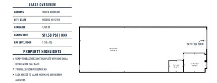
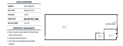
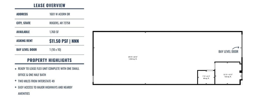
Ready to lease flex unit complete with one small office and one half bath.
- Lease rate does not include utilities, property expenses or building services
- Private Restrooms
- 1 Drive Bay
| Space | Size | Term | Rental Rate | Space Use | Build-Out | Available |
| 1st Floor - 1601 | 1,760 SF | Negotiable | $11.50 /SF/YR $0.96 /SF/MO $20,240 /YR $1,687 /MO | Flex | Full Build-Out | Now |
1st Floor - 1601
| Size |
| 1,760 SF |
| Term |
| Negotiable |
| Rental Rate |
| $11.50 /SF/YR $0.96 /SF/MO $20,240 /YR $1,687 /MO |
| Space Use |
| Flex |
| Build-Out |
| Full Build-Out |
| Available |
| Now |
1 of 5
Videos
Matterport 3D Exterior
Matterport 3D Tour
Photos
Street View
Street
Map
1st Floor - 1601
| Size | 1,760 SF |
| Term | Negotiable |
| Rental Rate | $11.50 /SF/YR |
| Space Use | Flex |
| Build-Out | Full Build-Out |
| Available | Now |
Ready to lease flex unit complete with one small office and one half bath.
- Lease rate does not include utilities, property expenses or building services
- 1 Drive Bay
- Private Restrooms
Distribution Facility Facts
Building Size
18,854 SF
Lot Size
1.05 AC
Year Built
1995
Construction
Metal
Zoning
Commercial - Commercial
Select Tenants
- Floor
- Tenant Name
- Industry
- 1st
- Complete Aqua Care
- Services
- 1st
- Fili's Auto Care
- -
- 1st
- Heritage Holdings of NWA, LLC
- Services
- 1st
- Hodge Western Corp
- Construction
- 1st
- Iron Performance NWA
- Services
- 1st
- ITG Communications, LLC
- Services
- 1st
- Lonestar Electric Inc
- Utilities
- 1st
- Missions Screen Printing
- Manufacturing
- 1st
- PS Higgins Poultry Services Inc
- Agriculture, Forestry, Fishing and Hunting
- 1st
- Wilson Home Services
- Construction
Somewhat walkable
30/100
Exceptionally drivable
90/100
Fairly bikeable
40/100
1 of 8
Videos
Matterport 3D Exterior
Matterport 3D Tour
Photos
Street View
Street
Map
Presented by
1601 Acorn Dr
Already a member? Log In
Hmm, there seems to have been an error sending your message. Please try again.
Thanks! Your message was sent.







