Log In/Sign Up
Your email has been sent.
Highlights
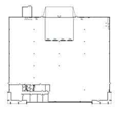
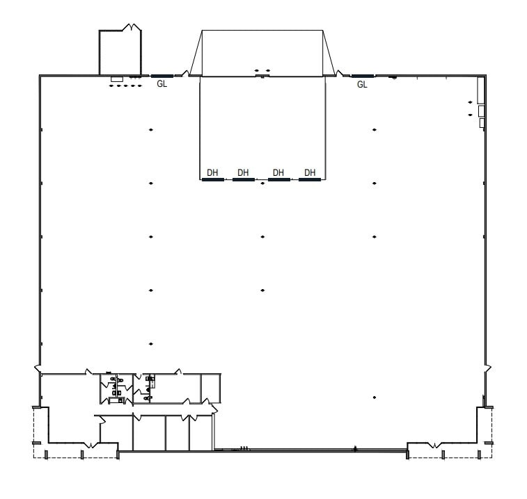
- Freestanding Building
- Heavy Power - 1,200 Amps
- Immediate Access to 5, 605, 105, and 91 Freeways
- High Image Building
- 4 Dock High and 2 Ground Level Loading Positions
Features
Clear Height
21’
Drive In Bays
2
Exterior Dock Doors
4
Standard Parking Spaces
50
All Available Space(1)
Display Rental Rate as
- Space
- Size
- Term
- Rental Rate
- Space Use
- Build-Out
- Available
Call to show.the co-broker commission is 4%
- Lease rate does not include utilities, property expenses or building services
- 2 Drive Ins
- Includes 2,872 SF of dedicated office space
- 4 Loading Docks
| Space | Size | Term | Rental Rate | Space Use | Build-Out | Available |
| 1st Floor | 33,800 SF | Negotiable | $13.08 /SF/YR $1.09 /SF/MO $442,104 /YR $36,842 /MO | Industrial | Full Build-Out | 90 Days |
1st Floor
| Size |
| 33,800 SF |
| Term |
| Negotiable |
| Rental Rate |
| $13.08 /SF/YR $1.09 /SF/MO $442,104 /YR $36,842 /MO |
| Space Use |
| Industrial |
| Build-Out |
| Full Build-Out |
| Available |
| 90 Days |
1 of 1
Videos
Matterport 3D Exterior
Matterport 3D Tour
Photos
Street View
Street
Map
1st Floor
| Size | 33,800 SF |
| Term | Negotiable |
| Rental Rate | $13.08 /SF/YR |
| Space Use | Industrial |
| Build-Out | Full Build-Out |
| Available | 90 Days |
Call to show.the co-broker commission is 4%
- Lease rate does not include utilities, property expenses or building services
- Includes 2,872 SF of dedicated office space
- 2 Drive Ins
- 4 Loading Docks
Warehouse Facility Facts
Building Size
33,800 SF
Lot Size
1.70 AC
Year Built
1979
Construction
Reinforced Concrete
Power Supply
Amps: 1,200 Volts: 277-480 Phase: 3 Wire: 4
Zoning
ADP-1
Fairly walkable
50/100
Exceptionally drivable
100/100
Limited public transit
30/100
Moderately bikeable
60/100
1 of 6
Videos
Matterport 3D Exterior
Matterport 3D Tour
Photos
Street View
Street
Map
Presented by
Bldg 7 | 16021 Arthur St
Already a member? Log In
Hmm, there seems to have been an error sending your message. Please try again.
Thanks! Your message was sent.






