Your email has been sent.
1617 Hi Line Park Dallas, TX 75207 2,344 - 35,205 SF of Space Available



Park Highlights
- Positioned along Hi Line Drive—steps from the Virgin Hotel and the new Hi Line Connector trail—the Center offers unmatched walkability and visibility
- Capture stunning skyline views from the Ronald Kirk Pedestrian Bridge and Trinity Overlook, just minutes away.
- Take advantage of nearby green spaces such as Klyde Warren Park and Reverchon Park for outdoor meetings and team breaks.
- Enjoy direct access to scenic trails like the Katy Trail and Trinity Strand, perfect for walking or biking from the Design District.
Park Facts
| Total Space Available | 35,205 SF | Park Type | Office Park |
| Min. Divisible | 2,344 SF | Cross Streets | Oak Lawn / Slocum Street |
| Total Space Available | 35,205 SF |
| Min. Divisible | 2,344 SF |
| Park Type | Office Park |
| Cross Streets | Oak Lawn / Slocum Street |
Display Rental Rate as
- Space
- Size
- Term
- Rental Rate
- Space Use
- Condition
- Available
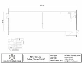
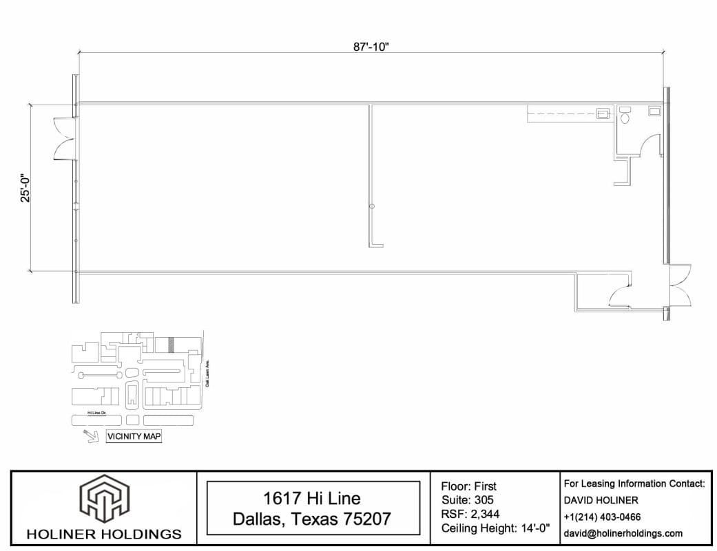
Suite 305 offers a practical and efficient footprint with clean sightlines and flexible display walls. Located steps from The Seam and surrounded by prominent design brands, the suite benefits from steady circulation and easy accessibility. A well-balanced layout makes it an ideal fit for furnishings, textiles, accessories, or a boutique showroom seeking maximum visibility with minimal build-out needs.
- Space is in Excellent Condition
- Fits 6 - 19 People
| Space | Size | Term | Rental Rate | Space Use | Condition | Available |
| 1st Floor, Ste 305 | 2,344 SF | Negotiable | Upon Request Upon Request Upon Request Upon Request | Retail | - | Now |
1617 Hi Line Dr - 1st Floor - Ste 305
- Space
- Size
- Term
- Rental Rate
- Space Use
- Condition
- Available
Long and light-filled, Suite 410 features a narrow showroom layout that draws in soft illumination from a neighboring walkway. Its linear configuration creates a warm and inviting environment suited for product display and client interaction. Positioned across from The Seam along shaded brick paths, this suite blends charm, intimacy, and a strategic location within one of Dallas’s most design-driven corridors.
- Lease rate does not include utilities, property expenses or building services
- Space is in Excellent Condition
- Located in-line with other retail
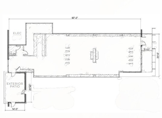
Suite 470 offers 6,235 SF of flexible, well-proportioned space ideal for retail or showroom use. Positioned near The Seam and surrounded by strong design-driven neighbors, the suite combines an open floorplate with multiple offices, strong sightlines, and direct restroom access. Its frontage and depth make merchandising intuitive, creating a versatile footprint for a range of display or workspace needs.
- Space is in Excellent Condition
- Fits 16 - 51 People
| Space | Size | Term | Rental Rate | Space Use | Condition | Available |
| 1st Floor, Ste 410 | 2,861 SF | Negotiable | Upon Request Upon Request Upon Request Upon Request | Retail | Full Build-Out | Now |
| 1st Floor, Ste 470 | 6,253 SF | Negotiable | Upon Request Upon Request Upon Request Upon Request | Retail | - | Now |
1617 Hi Line Dr - 1st Floor - Ste 410
1617 Hi Line Dr - 1st Floor - Ste 470
- Space
- Size
- Term
- Rental Rate
- Space Use
- Condition
- Available
Showroom, Luxury Retail, or F&B. Parking
- Lease rate does not include utilities, property expenses or building services
- Space is in Excellent Condition
- Fits 13 - 127 People
- Private Restrooms
| Space | Size | Term | Rental Rate | Space Use | Condition | Available |
| 1st Floor, Ste 700 | 5,000-15,823 SF | Negotiable | Upon Request Upon Request Upon Request Upon Request | Office/Retail | Full Build-Out | Now |
1617 Hi Line Dr - 1st Floor - Ste 700
- Space
- Size
- Term
- Rental Rate
- Space Use
- Condition
- Available
Tucked beside the renowned Tango Room steakhouse, Suite 240 enjoys steady pedestrian flow and a richly atmospheric setting. Located in the quieter, more refined rear portion of the Center, where views of Carbone’s greenery and glow add ambiance, the space offers a boutique feel with thoughtful proportions. It’s a perfect canvas for a materials showroom, curated furnishings concept, or gallery aiming to marry visibility with vibe.
- Lease rate does not include utilities, property expenses or building services
- Space is in Excellent Condition
| Space | Size | Term | Rental Rate | Space Use | Condition | Available |
| 1st Floor - 240 | 3,606 SF | Negotiable | Upon Request Upon Request Upon Request Upon Request | Flex | Full Build-Out | Now |
1617 Hi Line Dr - 1st Floor - 240
- Space
- Size
- Term
- Rental Rate
- Space Use
- Condition
- Available
Suite 305 offers a practical and efficient footprint with clean sightlines and flexible display walls. Located steps from The Seam and surrounded by prominent design brands, the suite benefits from steady circulation and easy accessibility. A well-balanced layout makes it an ideal fit for furnishings, textiles, accessories, or a boutique showroom seeking maximum visibility with minimal build-out needs.
- Space is in Excellent Condition
- Fits 6 - 19 People
| Space | Size | Term | Rental Rate | Space Use | Condition | Available |
| 1st Floor, Ste 305 | 2,344 SF | Negotiable | Upon Request Upon Request Upon Request Upon Request | Retail | - | Now |
1617 Hi Line Dr - 1st Floor - Ste 305
- Space
- Size
- Term
- Rental Rate
- Space Use
- Condition
- Available
Long and light-filled, Suite 410 features a narrow showroom layout that draws in soft illumination from a neighboring walkway. Its linear configuration creates a warm and inviting environment suited for product display and client interaction. Positioned across from The Seam along shaded brick paths, this suite blends charm, intimacy, and a strategic location within one of Dallas’s most design-driven corridors.
- Lease rate does not include utilities, property expenses or building services
- Space is in Excellent Condition
- Located in-line with other retail
With sleek frontage and a clean, modern footprint, Suite 440 sits directly across from The Seam and benefits from convenient storefront parking. Its well-proportioned layout lends itself to a versatile retail or showroom concept, while its prominent corner-like visibility makes it especially inviting to walk-in clients and designers. An ideal fit for a contemporary home, textile, or lifestyle brand looking to plug into the Center’s energy.
- Lease rate does not include utilities, property expenses or building services
- Space is in Excellent Condition
Suite 470 offers 6,235 SF of flexible, well-proportioned space ideal for retail or showroom use. Positioned near The Seam and surrounded by strong design-driven neighbors, the suite combines an open floorplate with multiple offices, strong sightlines, and direct restroom access. Its frontage and depth make merchandising intuitive, creating a versatile footprint for a range of display or workspace needs.
- Space is in Excellent Condition
- Fits 16 - 51 People
| Space | Size | Term | Rental Rate | Space Use | Condition | Available |
| 1st Floor, Ste 410 | 2,861 SF | Negotiable | Upon Request Upon Request Upon Request Upon Request | Retail | Full Build-Out | Now |
| 1st Floor - 440 | 4,318 SF | Negotiable | Upon Request Upon Request Upon Request Upon Request | Flex | Full Build-Out | Now |
| 1st Floor, Ste 470 | 6,253 SF | Negotiable | Upon Request Upon Request Upon Request Upon Request | Retail | - | Now |
1617 Hi Line Dr - 1st Floor - Ste 410
1617 Hi Line Dr - 1st Floor - 440
1617 Hi Line Dr - 1st Floor - Ste 470
- Space
- Size
- Term
- Rental Rate
- Space Use
- Condition
- Available
Showroom, Luxury Retail, or F&B. Parking
- Lease rate does not include utilities, property expenses or building services
- Space is in Excellent Condition
- Fits 13 - 127 People
- Private Restrooms
| Space | Size | Term | Rental Rate | Space Use | Condition | Available |
| 1st Floor, Ste 700 | 5,000-15,823 SF | Negotiable | Upon Request Upon Request Upon Request Upon Request | Office/Retail | Full Build-Out | Now |
1617 Hi Line Dr - 1st Floor - Ste 700
1617 Hi Line Dr - 1st Floor - 240
| Size | 3,606 SF |
| Term | Negotiable |
| Rental Rate | Upon Request |
| Space Use | Flex |
| Condition | Full Build-Out |
| Available | Now |
Tucked beside the renowned Tango Room steakhouse, Suite 240 enjoys steady pedestrian flow and a richly atmospheric setting. Located in the quieter, more refined rear portion of the Center, where views of Carbone’s greenery and glow add ambiance, the space offers a boutique feel with thoughtful proportions. It’s a perfect canvas for a materials showroom, curated furnishings concept, or gallery aiming to marry visibility with vibe.
- Lease rate does not include utilities, property expenses or building services
- Space is in Excellent Condition
1617 Hi Line Dr - 1st Floor - Ste 305
| Size | 2,344 SF |
| Term | Negotiable |
| Rental Rate | Upon Request |
| Space Use | Retail |
| Condition | - |
| Available | Now |
Suite 305 offers a practical and efficient footprint with clean sightlines and flexible display walls. Located steps from The Seam and surrounded by prominent design brands, the suite benefits from steady circulation and easy accessibility. A well-balanced layout makes it an ideal fit for furnishings, textiles, accessories, or a boutique showroom seeking maximum visibility with minimal build-out needs.
- Space is in Excellent Condition
- Fits 6 - 19 People
1617 Hi Line Dr - 1st Floor - Ste 410
| Size | 2,861 SF |
| Term | Negotiable |
| Rental Rate | Upon Request |
| Space Use | Retail |
| Condition | Full Build-Out |
| Available | Now |
Long and light-filled, Suite 410 features a narrow showroom layout that draws in soft illumination from a neighboring walkway. Its linear configuration creates a warm and inviting environment suited for product display and client interaction. Positioned across from The Seam along shaded brick paths, this suite blends charm, intimacy, and a strategic location within one of Dallas’s most design-driven corridors.
- Lease rate does not include utilities, property expenses or building services
- Located in-line with other retail
- Space is in Excellent Condition
1617 Hi Line Dr - 1st Floor - 440
| Size | 4,318 SF |
| Term | Negotiable |
| Rental Rate | Upon Request |
| Space Use | Flex |
| Condition | Full Build-Out |
| Available | Now |
With sleek frontage and a clean, modern footprint, Suite 440 sits directly across from The Seam and benefits from convenient storefront parking. Its well-proportioned layout lends itself to a versatile retail or showroom concept, while its prominent corner-like visibility makes it especially inviting to walk-in clients and designers. An ideal fit for a contemporary home, textile, or lifestyle brand looking to plug into the Center’s energy.
- Lease rate does not include utilities, property expenses or building services
- Space is in Excellent Condition
1617 Hi Line Dr - 1st Floor - Ste 470
| Size | 6,253 SF |
| Term | Negotiable |
| Rental Rate | Upon Request |
| Space Use | Retail |
| Condition | - |
| Available | Now |
Suite 470 offers 6,235 SF of flexible, well-proportioned space ideal for retail or showroom use. Positioned near The Seam and surrounded by strong design-driven neighbors, the suite combines an open floorplate with multiple offices, strong sightlines, and direct restroom access. Its frontage and depth make merchandising intuitive, creating a versatile footprint for a range of display or workspace needs.
- Space is in Excellent Condition
- Fits 16 - 51 People
1617 Hi Line Dr - 1st Floor - Ste 700
| Size | 5,000-15,823 SF |
| Term | Negotiable |
| Rental Rate | Upon Request |
| Space Use | Office/Retail |
| Condition | Full Build-Out |
| Available | Now |
Showroom, Luxury Retail, or F&B. Parking
- Lease rate does not include utilities, property expenses or building services
- Fits 13 - 127 People
- Space is in Excellent Condition
- Private Restrooms
Select Tenants at This Property
- Floor
- Tenant Name
- Industry
- 1st
- Artistic Tile
- Manufacturing
- 1st
- Bulthaup Corp
- Construction
- 1st
- Dahlgren Duck & Associates
- Services
- 1st
- Exquisite Surfaces
- Construction
- 1st
- Renaissance Tile & Bath
- Construction
- 1st
- TKO Associates
- -
Park Overview
Unlock Opportunity in the Dallas Design District Join a curated collection of best-in-class showrooms, galleries, and lifestyle brands in one of the most dynamic design destinations in the country. The Dallas Design District offers a rare mix of legacy prestige and modern momentum — where historic warehouses meet cutting-edge design, and a growing community of top-tier tenants thrives. HN Capital Partners is re imagining the District with a long-term vision focused on quality, place-making, and sustained investment. We are thoughtful about our tenant mix, deliberate in our leasing strategy, and committed to creating a destination that supports creativity, commerce, and culture. With a limited number of showrooms currently available, now is the time to join a neighborhood that values both tradition and transformation. Spaces range from 2,000 to 20,000+ square feet, with flexible terms and tailored buildout options available. Whether you’re an established brand or an emerging name in design, we’d love to talk about how you can grow in the Design District.
Contact the Leasing Agent
1617 Hi Line Park | Dallas, TX 75207










