Your email has been sent.
Thousand Oaks Tower 16414 San Pedro Ave 873 - 24,362 SF of Office Space Available in San Antonio, TX 78232



HIGHLIGHTS
- Under New Ownership (Improvements On the Way)
- On Site Cafe, Conference Room, Property Management, and Leasing
- Ready to Move In Spaces Available
- Prominent Location Near Airport, Stone Oak, Wurzbach, Loop 1604
- Food Trucks, Free Coffee/Tea, Community Events Coming Soon
- Each Suite Features Spectacular Surrounding Views
ALL AVAILABLE SPACES(6)
Display Rental Rate as
- SPACE
- SIZE
- TERM
- RENTAL RATE
- SPACE USE
- CONDITION
- AVAILABLE
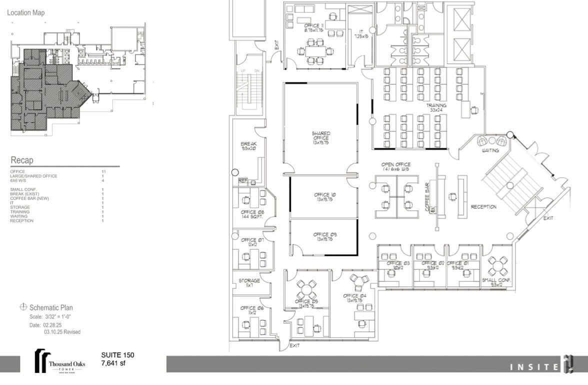
Suite 150 is a ready to move in office on the first floor near the main entrance of the building featuring an impressive reception lobby and over fifteen (15) private offices with conference rooms and break areas. Fully glassed entrances with high ceilings throughout space.
- Rate includes utilities, building services and property expenses
- 17 Private Offices
- Space is in Excellent Condition
- Reception Area
- Security System
- High Ceilings
- After Hours HVAC Available
- Smoke Detector
- High Ceilings with Glass Facade
- Conference Rooms & Meeting Spaces
- Impressive Reception Lobby
- Fully Built-Out as Standard Office
- 2 Conference Rooms
- Central Air and Heating
- Print/Copy Room
- Corner Space
- Natural Light
- Accent Lighting
- Near First Floor Main Entrance
- Over Fifteen (15) Built Out Offices
- Former Marketing Company HQ
- Rate includes utilities, building services and property expenses
Suite 500 is a ready to move in space with impressive corner views. Freshly built out, the four (4) private offices, kitchenette, and large conference room is perfect for small to medium sized businesses.
- Rate includes utilities, building services and property expenses
- Office intensive layout
- 1 Conference Room
- Plug & Play
- Reception Area
- Corner Space
- Natural Light
- Wheelchair Accessible
- Newly Built Out Finishes(May 2025)
- Impressive Conference Room
- Reception Area and Waiting Room
- Fully Built-Out as Standard Office
- Partitioned Offices
- Space is in Excellent Condition
- Central Air Conditioning
- Print/Copy Room
- Secure Storage
- Smoke Detector
- Corner Views on a High Floor
- High End Kitchenette and Shared Break Area
- Four (4) Private Offices
This office suite features private offices, break room with kitchenette, reception, open plan office space, and entrance right off the sixth floor elevator. High end finishes throughout with windowed views along the private offices.
- Rate includes utilities, building services and property expenses
- Office intensive layout
- Central Air Conditioning
- Natural Light
- Emergency Lighting
- Entrance Right Off the Sixth Floor Elevator
- Private Offices & Conference Rooms
- Fully Built-Out as Standard Office
- Partitioned Offices
- Reception Area
- After Hours HVAC Available
- High Office Floor with Spectacular Views
- Open Office Area for Work Stations/Cubicles
- Rate includes utilities, building services and property expenses
Suite 10000 offers a full-floor lease atop North San Antonio’s premier office building, featuring stunning views and a private elevator landing. This high-end space includes eight (8) offices, two (2) training rooms, an executive conference room, lounge and reception areas, ADA restrooms, server rooms, and access to top-tier building amenities—perfect for companies looking to impress.
- Rate includes utilities, building services and property expenses
- 8 Private Offices
- Space is in Excellent Condition
- Central Air and Heating
- Elevator Access
- Private Restrooms
- Corner Space
- Secure Storage
- After Hours HVAC Available
- Smoke Detector
- Eight (8) Private Offices with Room for More
- Full Top Floor with Private Elevator Landing
- Multiple Reception, Lobbies, and Lounges
- Fully Built-Out as Standard Office
- 1 Conference Room
- Plug & Play
- Reception Area
- Print/Copy Room
- Security System
- Drop Ceilings
- Natural Light
- Accent Lighting
- Surrounding Views of North San Antonio
- Ready to Move In with High End Finishes
- Two (2) Large Training Rooms
| Space | Size | Term | Rental Rate | Space Use | Condition | Available |
| 1st Floor, Ste 150 | 7,641 SF | Negotiable | $28.00 /SF/YR $2.33 /SF/MO $213,948 /YR $17,829 /MO | Office | Full Build-Out | Now |
| 3rd Floor, Ste 335 | 873 SF | Negotiable | $28.00 /SF/YR $2.33 /SF/MO $24,444 /YR $2,037 /MO | Office | - | Now |
| 5th Floor, Ste 500 | 1,533 SF | Negotiable | $28.00 /SF/YR $2.33 /SF/MO $42,924 /YR $3,577 /MO | Office | Full Build-Out | Now |
| 6th Floor, Ste 635 | 3,111 SF | Negotiable | $28.00 /SF/YR $2.33 /SF/MO $87,108 /YR $7,259 /MO | Office | Full Build-Out | Now |
| 9th Floor, Ste 950 | 900-4,092 SF | Negotiable | $28.00 /SF/YR $2.33 /SF/MO $114,576 /YR $9,548 /MO | Office | - | June 30, 2026 |
| 10th Floor, Ste 10000 | 7,112 SF | Negotiable | $29.00 /SF/YR $2.42 /SF/MO $206,248 /YR $17,187 /MO | Office | Full Build-Out | January 01, 2026 |
1st Floor, Ste 150
| Size |
| 7,641 SF |
| Term |
| Negotiable |
| Rental Rate |
| $28.00 /SF/YR $2.33 /SF/MO $213,948 /YR $17,829 /MO |
| Space Use |
| Office |
| Condition |
| Full Build-Out |
| Available |
| Now |
3rd Floor, Ste 335
| Size |
| 873 SF |
| Term |
| Negotiable |
| Rental Rate |
| $28.00 /SF/YR $2.33 /SF/MO $24,444 /YR $2,037 /MO |
| Space Use |
| Office |
| Condition |
| - |
| Available |
| Now |
5th Floor, Ste 500
| Size |
| 1,533 SF |
| Term |
| Negotiable |
| Rental Rate |
| $28.00 /SF/YR $2.33 /SF/MO $42,924 /YR $3,577 /MO |
| Space Use |
| Office |
| Condition |
| Full Build-Out |
| Available |
| Now |
6th Floor, Ste 635
| Size |
| 3,111 SF |
| Term |
| Negotiable |
| Rental Rate |
| $28.00 /SF/YR $2.33 /SF/MO $87,108 /YR $7,259 /MO |
| Space Use |
| Office |
| Condition |
| Full Build-Out |
| Available |
| Now |
9th Floor, Ste 950
| Size |
| 900-4,092 SF |
| Term |
| Negotiable |
| Rental Rate |
| $28.00 /SF/YR $2.33 /SF/MO $114,576 /YR $9,548 /MO |
| Space Use |
| Office |
| Condition |
| - |
| Available |
| June 30, 2026 |
10th Floor, Ste 10000
| Size |
| 7,112 SF |
| Term |
| Negotiable |
| Rental Rate |
| $29.00 /SF/YR $2.42 /SF/MO $206,248 /YR $17,187 /MO |
| Space Use |
| Office |
| Condition |
| Full Build-Out |
| Available |
| January 01, 2026 |
1st Floor, Ste 150
| Size | 7,641 SF |
| Term | Negotiable |
| Rental Rate | $28.00 /SF/YR |
| Space Use | Office |
| Condition | Full Build-Out |
| Available | Now |
Suite 150 is a ready to move in office on the first floor near the main entrance of the building featuring an impressive reception lobby and over fifteen (15) private offices with conference rooms and break areas. Fully glassed entrances with high ceilings throughout space.
- Rate includes utilities, building services and property expenses
- Fully Built-Out as Standard Office
- 17 Private Offices
- 2 Conference Rooms
- Space is in Excellent Condition
- Central Air and Heating
- Reception Area
- Print/Copy Room
- Security System
- Corner Space
- High Ceilings
- Natural Light
- After Hours HVAC Available
- Accent Lighting
- Smoke Detector
- Near First Floor Main Entrance
- High Ceilings with Glass Facade
- Over Fifteen (15) Built Out Offices
- Conference Rooms & Meeting Spaces
- Former Marketing Company HQ
- Impressive Reception Lobby
3rd Floor, Ste 335
| Size | 873 SF |
| Term | Negotiable |
| Rental Rate | $28.00 /SF/YR |
| Space Use | Office |
| Condition | - |
| Available | Now |
- Rate includes utilities, building services and property expenses
5th Floor, Ste 500
| Size | 1,533 SF |
| Term | Negotiable |
| Rental Rate | $28.00 /SF/YR |
| Space Use | Office |
| Condition | Full Build-Out |
| Available | Now |
Suite 500 is a ready to move in space with impressive corner views. Freshly built out, the four (4) private offices, kitchenette, and large conference room is perfect for small to medium sized businesses.
- Rate includes utilities, building services and property expenses
- Fully Built-Out as Standard Office
- Office intensive layout
- Partitioned Offices
- 1 Conference Room
- Space is in Excellent Condition
- Plug & Play
- Central Air Conditioning
- Reception Area
- Print/Copy Room
- Corner Space
- Secure Storage
- Natural Light
- Smoke Detector
- Wheelchair Accessible
- Corner Views on a High Floor
- Newly Built Out Finishes(May 2025)
- High End Kitchenette and Shared Break Area
- Impressive Conference Room
- Four (4) Private Offices
- Reception Area and Waiting Room
6th Floor, Ste 635
| Size | 3,111 SF |
| Term | Negotiable |
| Rental Rate | $28.00 /SF/YR |
| Space Use | Office |
| Condition | Full Build-Out |
| Available | Now |
This office suite features private offices, break room with kitchenette, reception, open plan office space, and entrance right off the sixth floor elevator. High end finishes throughout with windowed views along the private offices.
- Rate includes utilities, building services and property expenses
- Fully Built-Out as Standard Office
- Office intensive layout
- Partitioned Offices
- Central Air Conditioning
- Reception Area
- Natural Light
- After Hours HVAC Available
- Emergency Lighting
- High Office Floor with Spectacular Views
- Entrance Right Off the Sixth Floor Elevator
- Open Office Area for Work Stations/Cubicles
- Private Offices & Conference Rooms
9th Floor, Ste 950
| Size | 900-4,092 SF |
| Term | Negotiable |
| Rental Rate | $28.00 /SF/YR |
| Space Use | Office |
| Condition | - |
| Available | June 30, 2026 |
- Rate includes utilities, building services and property expenses
10th Floor, Ste 10000
| Size | 7,112 SF |
| Term | Negotiable |
| Rental Rate | $29.00 /SF/YR |
| Space Use | Office |
| Condition | Full Build-Out |
| Available | January 01, 2026 |
Suite 10000 offers a full-floor lease atop North San Antonio’s premier office building, featuring stunning views and a private elevator landing. This high-end space includes eight (8) offices, two (2) training rooms, an executive conference room, lounge and reception areas, ADA restrooms, server rooms, and access to top-tier building amenities—perfect for companies looking to impress.
- Rate includes utilities, building services and property expenses
- Fully Built-Out as Standard Office
- 8 Private Offices
- 1 Conference Room
- Space is in Excellent Condition
- Plug & Play
- Central Air and Heating
- Reception Area
- Elevator Access
- Print/Copy Room
- Private Restrooms
- Security System
- Corner Space
- Drop Ceilings
- Secure Storage
- Natural Light
- After Hours HVAC Available
- Accent Lighting
- Smoke Detector
- Surrounding Views of North San Antonio
- Eight (8) Private Offices with Room for More
- Ready to Move In with High End Finishes
- Full Top Floor with Private Elevator Landing
- Two (2) Large Training Rooms
- Multiple Reception, Lobbies, and Lounges
PROPERTY OVERVIEW
Thouand Oaks Tower is a ten story office building located in the heart of North Central San Antonio. A short commute in the most sought after employee submarket in the entire city with easy access to HWY 281, Loop 1604, and Wurzbach Parkway. A large lot with four story garage provides abudnant parking for large workforces and customers. The property is under new ownership with a strong commitment to improve the tenant and community experience with refreshed common areas, ready to move in spaces, and modern amenities for the future of workspaces.
- Banking
- Bus Line
- Conferencing Facility
- Food Court
- Food Service
- Property Manager on Site
- Security System
- Signage
- Central Heating
- Natural Light
- Air Conditioning
- Smoke Detector
PROPERTY FACTS
Presented by
Thousand Oaks Tower | 16414 San Pedro Ave
Hmm, there seems to have been an error sending your message. Please try again.
Thanks! Your message was sent.











