Enter your email to login or create a free account
This feature is unavailable at the moment.
We apologize, but the feature you are trying to access is currently unavailable. We are aware of this issue and our team is working hard to resolve the matter.
Please check back in a few minutes. We apologize for the inconvenience.
- LoopNet Team
16609 E 110th Ave
Puyallup, WA 98374
South Hill Contractors Yard/Warehouse/Office · Property For Lease

Property Overview
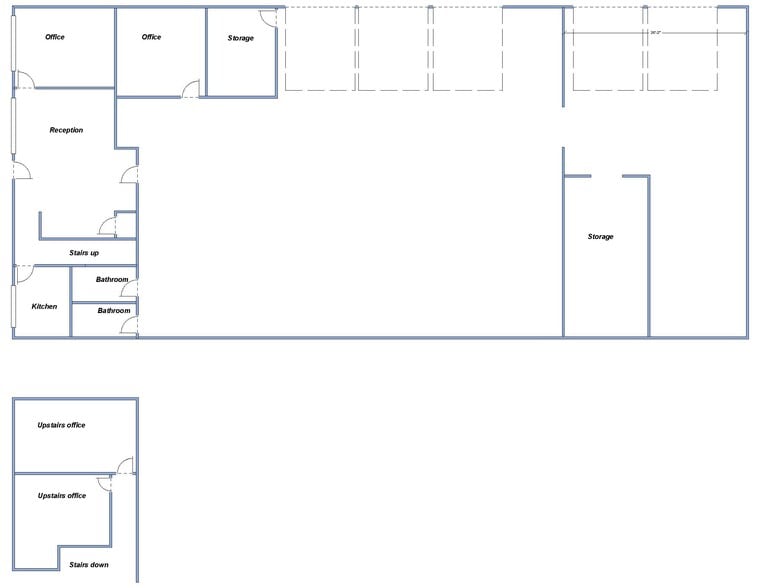
Warehouse, yard and office available to Lease! Warehouse is approximately 4,076 square feet with five 10' x 12' grade level doors and a 12' clear span ceiling height. Main warehouse is heated with a couple of rooms for tool or equipment storage (see floor plan). Two story office is heated and air conditioned. The office area is approximately 1,416 square feet configured with a reception area, 4 private offices, kitchen/break room, and 2 restrooms. A fenced, secured yard area is included, along with ample additional parking. Well located property with easy access to Meridian going north to Hwy 512, or west on 176th towards Frederickson. Hard to find yard area with warehouse. This 1.10 acre site is level with the street and measures approximately 160' in width and 300' +/- in depth.
Property Facts
| Property Type | Industrial | Rentable Building Area | 5,492 SF |
| Property Subtype | Warehouse | Year Built/Renovated | 1977/1988 |
| Property Type | Industrial |
| Property Subtype | Warehouse |
| Rentable Building Area | 5,492 SF |
| Year Built/Renovated | 1977/1988 |
Features and Amenities
- 24 Hour Access
- Fenced Lot
- Mezzanine
- Signage
- Reception
- Storage Space
- Air Conditioning
Utilities
- Water
- Sewer
- Heating
Attachments
| South Hill Warehouse Office Yard Lease Brochure |
Listing ID: 38477407
Date on Market: 11/17/2025
Last Updated:
Address: 16609 E 110th Ave, Puyallup, WA 98374
The South Hill Industrial Property at 16609 E 110th Ave, Puyallup, WA 98374 is no longer being advertised on LoopNet.com. Contact the broker for information on availability.
INDUSTRIAL PROPERTIES IN NEARBY NEIGHBORHOODS
- Downtown Puyallup Commercial Real Estate Properties
- South Hill Commercial Real Estate Properties
- East Fife Commercial Real Estate Properties
- Frederickson Commercial Real Estate Properties
- Midland Commercial Real Estate Properties
- Summit Puyallup Commercial Real Estate Properties
- Eastside Commercial Real Estate Properties
- Elk Plain Commercial Real Estate Properties
NEARBY LISTINGS
- 10305 196th Street Ct E, Graham WA
- 1002 39th Ave SW, Puyallup WA
- 12815 Canyon Rd E, Puyallup WA
- 13018 Canyon Road East, Puyallup WA
- 14706 Meridian Ave E, Puyallup WA
- 3806 9th St SW, Puyallup WA
- 13819 Meridian Ave E, Puyallup WA
- 3705-3831 S Meridian, Puyallup WA
- 9805-9915 224th St E, Graham WA
- 19313 Meridian Ave E, Graham WA
- 13909 Meridian Ave E, Puyallup WA
- 1015 39th Ave SE, Puyallup WA
- 12314 Meridian E, Puyallup WA
- 12020 Meridian Ave S, Puyallup WA
- 13018 Canyon Rd E, Puyallup WA
