Your email has been sent.
South County Distribution Center Chula Vista, CA 91911 8,184 - 128,055 SF of Industrial Space Available



PARK FACTS
| Total Space Available | 128,055 SF | Park Type | Industrial Park |
| Max. Contiguous | 45,402 SF |
| Total Space Available | 128,055 SF |
| Max. Contiguous | 45,402 SF |
| Park Type | Industrial Park |
ALL AVAILABLE SPACES(5)
Display Rental Rate as
- SPACE
- SIZE
- TERM
- RENTAL RATE
- SPACE USE
- CONDITION
- AVAILABLE
Asking Rent - Call broker, NNNs = ±$0.44 PSF/Month.
- Lease rate does not include utilities, property expenses or building services
- 2 Drive Ins
- Reception Area
- Potential to secure a portion of the parking area
- Includes 2,560 SF of dedicated office space
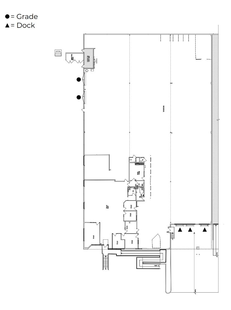
- 3 Loading Docks
- 22'-26’ Clear Height
- 200 amps 277/480V
This industrial suite is located in Chula Vista, CA. Comprising of 48,869 SF of warehousing space with a fenced in yard. (EXPANDABLE)
- Lease rate does not include utilities, property expenses or building services
- 2 Drive Ins
- 6 Loading Docks
- Reception Area
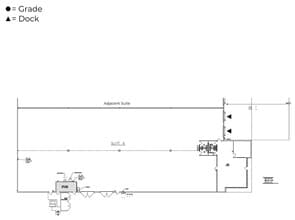
- 6 Docks, 2 grade level doors
- Located in Chula Vista, CA
- 700 amps 120/208V 600 amps 277/480V
- Includes 4,887 SF of dedicated office space
- Space is in Excellent Condition
- Partitioned Offices
- Natural Light
- 22'-26' clear height
- 10,000 SF Fenced Yard
| Space | Size | Term | Rental Rate | Space Use | Condition | Available |
| 1st Floor - A | 25,600 SF | Negotiable | $10.20 /SF/YR $0.85 /SF/MO $261,120 /YR $21,760 /MO | Industrial | Full Build-Out | Now |
| 1st Floor - C&D | 48,869 SF | Negotiable | $9.00 /SF/YR $0.75 /SF/MO $439,821 /YR $36,652 /MO | Industrial | Full Build-Out | Now |
1670 Brandywine Ave - 1st Floor - A
1670 Brandywine Ave - 1st Floor - C&D
- SPACE
- SIZE
- TERM
- RENTAL RATE
- SPACE USE
- CONDITION
- AVAILABLE
Call broker, NNNs = ±$0.42 PSF/Month.
- Lease rate does not include utilities, property expenses or building services
- 2 Drive Ins
- 2 Loading Docks
- 22'-26’ Clear Height
- Includes 875 SF of dedicated office space
- Can be combined with additional space(s) for up to 45,402 SF of adjacent space
- Reception Area
- 1600 amps at 277/480V for 1690-A&B combined
Call broker, NNNs = ±$0.42 PSF/Month.
- Lease rate does not include utilities, property expenses or building services
- 2 Loading Docks
- 22'-26’ Clear Height
- Can be combined with additional space(s) for up to 45,402 SF of adjacent space
- Reception Area
- 1600 amps at 277/480V for 1690-A&B combined
| Space | Size | Term | Rental Rate | Space Use | Condition | Available |
| 1st Floor - A | 17,518 SF | Negotiable | $10.20 /SF/YR $0.85 /SF/MO $178,684 /YR $14,890 /MO | Industrial | Full Build-Out | Now |
| 1st Floor - B | 27,884 SF | Negotiable | $10.20 /SF/YR $0.85 /SF/MO $284,417 /YR $23,701 /MO | Industrial | Full Build-Out | Now |
1690 Brandywine Ave - 1st Floor - A
1690 Brandywine Ave - 1st Floor - B
- SPACE
- SIZE
- TERM
- RENTAL RATE
- SPACE USE
- CONDITION
- AVAILABLE
This industrial suite is located in Chula Vista, CA. Comprising of 8,184 SF of office and warehousing space. Available 11/1/2025, potentially sooner.
- Lease rate does not include utilities, property expenses or building services
- 1 Drive Bay
- 2 Loading Docks
- 22'-26’ Clear Height
- Includes 1,367 SF of dedicated office space
- Space is in Excellent Condition
- Reception Area
- 120 amps at 208V
| Space | Size | Term | Rental Rate | Space Use | Condition | Available |
| 1st Floor - B | 8,184 SF | Negotiable | $13.80 /SF/YR $1.15 /SF/MO $112,939 /YR $9,412 /MO | Industrial | Full Build-Out | Now |
1675 Brandywine Ave - 1st Floor - B
1670 Brandywine Ave - 1st Floor - A
| Size | 25,600 SF |
| Term | Negotiable |
| Rental Rate | $10.20 /SF/YR |
| Space Use | Industrial |
| Condition | Full Build-Out |
| Available | Now |
Asking Rent - Call broker, NNNs = ±$0.44 PSF/Month.
- Lease rate does not include utilities, property expenses or building services
- Includes 2,560 SF of dedicated office space
- 2 Drive Ins
- 3 Loading Docks
- Reception Area
- 22'-26’ Clear Height
- Potential to secure a portion of the parking area
- 200 amps 277/480V
1670 Brandywine Ave - 1st Floor - C&D
| Size | 48,869 SF |
| Term | Negotiable |
| Rental Rate | $9.00 /SF/YR |
| Space Use | Industrial |
| Condition | Full Build-Out |
| Available | Now |
This industrial suite is located in Chula Vista, CA. Comprising of 48,869 SF of warehousing space with a fenced in yard. (EXPANDABLE)
- Lease rate does not include utilities, property expenses or building services
- Includes 4,887 SF of dedicated office space
- 2 Drive Ins
- Space is in Excellent Condition
- 6 Loading Docks
- Partitioned Offices
- Reception Area
- Natural Light
- 6 Docks, 2 grade level doors
- 22'-26' clear height
- Located in Chula Vista, CA
- 10,000 SF Fenced Yard
- 700 amps 120/208V 600 amps 277/480V
1690 Brandywine Ave - 1st Floor - A
| Size | 17,518 SF |
| Term | Negotiable |
| Rental Rate | $10.20 /SF/YR |
| Space Use | Industrial |
| Condition | Full Build-Out |
| Available | Now |
Call broker, NNNs = ±$0.42 PSF/Month.
- Lease rate does not include utilities, property expenses or building services
- Includes 875 SF of dedicated office space
- 2 Drive Ins
- Can be combined with additional space(s) for up to 45,402 SF of adjacent space
- 2 Loading Docks
- Reception Area
- 22'-26’ Clear Height
- 1600 amps at 277/480V for 1690-A&B combined
1690 Brandywine Ave - 1st Floor - B
| Size | 27,884 SF |
| Term | Negotiable |
| Rental Rate | $10.20 /SF/YR |
| Space Use | Industrial |
| Condition | Full Build-Out |
| Available | Now |
Call broker, NNNs = ±$0.42 PSF/Month.
- Lease rate does not include utilities, property expenses or building services
- Can be combined with additional space(s) for up to 45,402 SF of adjacent space
- 2 Loading Docks
- Reception Area
- 22'-26’ Clear Height
- 1600 amps at 277/480V for 1690-A&B combined
1675 Brandywine Ave - 1st Floor - B
| Size | 8,184 SF |
| Term | Negotiable |
| Rental Rate | $13.80 /SF/YR |
| Space Use | Industrial |
| Condition | Full Build-Out |
| Available | Now |
This industrial suite is located in Chula Vista, CA. Comprising of 8,184 SF of office and warehousing space. Available 11/1/2025, potentially sooner.
- Lease rate does not include utilities, property expenses or building services
- Includes 1,367 SF of dedicated office space
- 1 Drive Bay
- Space is in Excellent Condition
- 2 Loading Docks
- Reception Area
- 22'-26’ Clear Height
- 120 amps at 208V
Presented by
South County Distribution Center | Chula Vista, CA 91911
Hmm, there seems to have been an error sending your message. Please try again.
Thanks! Your message was sent.












