Your email has been sent.
1700 Shaw Ave 17,000 SF of Flex Space Available in Cleveland, OH 44112



Highlights
- 17,000 SF of adaptable flex space – ideal for lab use, light industrial, office, or storage.
- Exclusive 30,000 SF outdoor gated parking.
- Competitive lease rates – affordable alternative to downtown Cleveland pricing
- 10.5’ ceiling height – suitable for a variety of business operations.
- 10x15 built-in safe – providing secure storage for valuables, documents, or specialized equipment.
- Excellent accessibility – just 10 miles from I-271, with easy connections to I-90 and US-322
Features
All Available Space(1)
Display Rental Rate as
- Space
- Size
- Term
- Rental Rate
- Space Use
- Build-Out
- Available
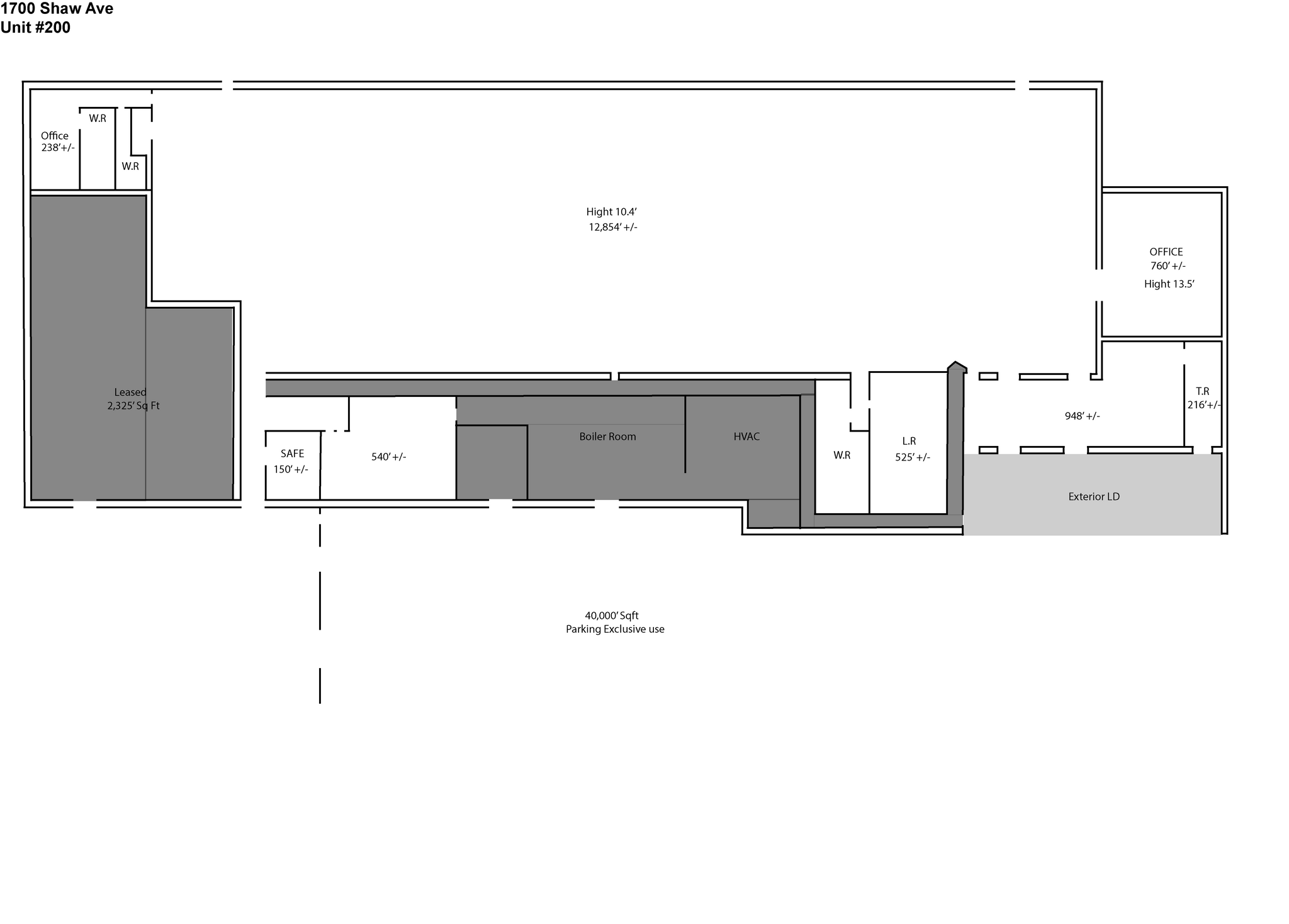
Affordable & Secure Flex Space – Prime Access to Cleveland 1700 Shaw Ave, East Cleveland, OH – Unit 200 A rare opportunity to lease 17,000 SF of versatile flex space with exclusive outdoor parking and built-in secure storage. Located just minutes from downtown Cleveland, this property offers cost-effective leasing without sacrificing convenience. With easy access to I-271, I-90, and US-322, businesses benefit from seamless connectivity to Cleveland’s core and surrounding markets. Property Highlights: • 17,000 SF of adaptable flex space – ideal for lab use, light industrial, office, or storage • 10.5’ ceiling height – suitable for a variety of business operations • Exclusive 30,000 SF outdoor parking. • 10x15 built-in safe – providing secure storage for valuables, documents, or specialized equipment • Competitive lease rates – affordable alternative to downtown Cleveland pricing • Excellent accessibility – just 10 miles from I-271, with easy connections to I-90 and US-322 This property is an ideal solution for businesses seeking affordable, functional, and secure space in a strategic location. Contact us today to schedule a tour or discuss leasing options.
- Lease rate does not include utilities, property expenses or building services
| Space | Size | Term | Rental Rate | Space Use | Build-Out | Available |
| 1st Floor - 200 | 17,000 SF | Negotiable | $4.25 /SF/YR $0.35 /SF/MO $72,250 /YR $6,021 /MO | Flex | Partial Build-Out | Now |
1st Floor - 200
| Size |
| 17,000 SF |
| Term |
| Negotiable |
| Rental Rate |
| $4.25 /SF/YR $0.35 /SF/MO $72,250 /YR $6,021 /MO |
| Space Use |
| Flex |
| Build-Out |
| Partial Build-Out |
| Available |
| Now |
1st Floor - 200
| Size | 17,000 SF |
| Term | Negotiable |
| Rental Rate | $4.25 /SF/YR |
| Space Use | Flex |
| Build-Out | Partial Build-Out |
| Available | Now |
Affordable & Secure Flex Space – Prime Access to Cleveland 1700 Shaw Ave, East Cleveland, OH – Unit 200 A rare opportunity to lease 17,000 SF of versatile flex space with exclusive outdoor parking and built-in secure storage. Located just minutes from downtown Cleveland, this property offers cost-effective leasing without sacrificing convenience. With easy access to I-271, I-90, and US-322, businesses benefit from seamless connectivity to Cleveland’s core and surrounding markets. Property Highlights: • 17,000 SF of adaptable flex space – ideal for lab use, light industrial, office, or storage • 10.5’ ceiling height – suitable for a variety of business operations • Exclusive 30,000 SF outdoor parking. • 10x15 built-in safe – providing secure storage for valuables, documents, or specialized equipment • Competitive lease rates – affordable alternative to downtown Cleveland pricing • Excellent accessibility – just 10 miles from I-271, with easy connections to I-90 and US-322 This property is an ideal solution for businesses seeking affordable, functional, and secure space in a strategic location. Contact us today to schedule a tour or discuss leasing options.
- Lease rate does not include utilities, property expenses or building services
Property Overview
Affordable & Secure Flex Space – Prime Access to Cleveland 1700 Shaw Ave, East Cleveland, OH – Unit 200 A rare opportunity to lease 17,000 SF of versatile flex space with exclusive outdoor area and built-in secure storage. Located just minutes from downtown Cleveland, this property offers cost-effective leasing without sacrificing convenience. With easy access to I-271, I-90, and US-322, businesses benefit from seamless connectivity to Cleveland’s core and surrounding markets. Property Highlights: • 17,000 SF of adaptable flex space – ideal for lab use, light industrial, office, or storage. • 10.5’ ceiling height – suitable for a variety of business operations. • Exclusive 30,000 SF outdoor gated parking. • 10x15 built-in safe – providing secure storage for valuables, documents, or specialized equipment. • Competitive lease rates – affordable alternative to downtown Cleveland pricing • Excellent accessibility – just 10 miles from I-271, with easy connections to I-90 and US-322 This property is an ideal solution for businesses seeking affordable, functional, and secure space in a strategic location. Contact us today to schedule a tour or discuss leasing options.
Property Facts
Presented by
1700 Shaw
1700 Shaw Ave
Hmm, there seems to have been an error sending your message. Please try again.
Thanks! Your message was sent.



