Your email has been sent.
171 King St E 2,115 SF of Retail Space Available in Toronto, ON M5A 1J4


HIGHLIGHTS
- Over 27 Feet of Frontage on King Street East
- Large glass façade with great exposure and branding opportunity
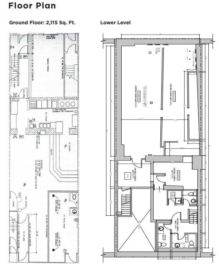
- Lower level washrooms facilities in place
- Accessible shipping and receiving laneway in the rear with double door access to ground floor plus direct access to lower level
- Space is currently being renovated and restored by the landlord to vanilla shell condition
- Hydro service of 200 amps
SPACE AVAILABILITY (1)
Display Rental Rate as
- SPACE
- SIZE
- TERM
- RENTAL RATE
- RENT TYPE
| Space | Size | Term | Rental Rate | Rent Type | ||
| 1st Floor | 2,115 SF | 5-10 Years | $28.53 USD/SF/YR $2.38 USD/SF/MO $60,345 USD/YR $5,029 USD/MO | Triple Net (NNN) |
1st Floor
Accessible shipping and receiving laneway in the rear with double door access to ground floor plus direct access to lower level. Large glass façade with great exposure and branding opportunity. Space is currently being renovated and restored by the landlord to vanilla shell condition.
- Lease rate does not include utilities, property expenses or building services
- Located in-line with other retail
- Over 27 feet of frontage on King Street East.
- Lower level washrooms facilities in place.
- Hydro service of 200 amps
Rent Types
The rent amount and type that the tenant (lessee) will be responsible to pay to the landlord (lessor) throughout the lease term is negotiated prior to both parties signing a lease agreement. The rent type will vary depending upon the services provided. For example, triple net rents are typically lower than full service rents due to additional expenses the tenant is required to pay in addition to the base rent. Contact the listing broker for a full understanding of any associated costs or additional expenses for each rent type.
1. Full Service: A rental rate that includes normal building standard services as provided by the landlord within a base year rental.
2. Double Net (NN): Tenant pays for only two of the building expenses; the landlord and tenant determine the specific expenses prior to signing the lease agreement.
3. Triple Net (NNN): A lease in which the tenant is responsible for all expenses associated with their proportional share of occupancy of the building.
4. Modified Gross: Modified Gross is a general type of lease rate where typically the tenant will be responsible for their proportional share of one or more of the expenses. The landlord will pay the remaining expenses. See the below list of common Modified Gross rental rate structures: 4. Plus All Utilities: A type of Modified Gross Lease where the tenant is responsible for their proportional share of utilities in addition to the rent. 4. Plus Cleaning: A type of Modified Gross Lease where the tenant is responsible for their proportional share of cleaning in addition to the rent. 4. Plus Electric: A type of Modified Gross Lease where the tenant is responsible for their proportional share of the electrical cost in addition to the rent. 4. Plus Electric & Cleaning: A type of Modified Gross Lease where the tenant is responsible for their proportional share of the electrical and cleaning cost in addition to the rent. 4. Plus Utilities and Char: A type of Modified Gross Lease where the tenant is responsible for their proportional share of the utilities and cleaning cost in addition to the rent. 4. Industrial Gross: A type of Modified Gross lease where the tenant pays one or more of the expenses in addition to the rent. The landlord and tenant determine these prior to signing the lease agreement.
5. Tenant Electric: The landlord pays for all services and the tenant is responsible for their usage of lights and electrical outlets in the space they occupy.
6. Negotiable or Upon Request: Used when the leasing contact does not provide the rent or service type.
7. TBD: To be determined; used for buildings for which no rent or service type is known, commonly utilized when the buildings are not yet built.
SELECT TENANTS AT 171 KING ST E, TORONTO, ON M5A 1J4
- TENANT
- DESCRIPTION
- CAN LOCATIONS
- REACH
- Hiro Sushi
- Retailer
- 1
- -
| TENANT | DESCRIPTION | CAN LOCATIONS | REACH |
| Hiro Sushi | Retailer | 1 | - |
PROPERTY FACTS
| Total Space Available | 2,115 SF | Gross Leasable Area | 5,849 SF |
| Property Type | Retail | Year Built | 1885 |
| Property Subtype | Storefront Retail/Residential |
| Total Space Available | 2,115 SF |
| Property Type | Retail |
| Property Subtype | Storefront Retail/Residential |
| Gross Leasable Area | 5,849 SF |
| Year Built | 1885 |
ABOUT THE PROPERTY
171 King Street East provides an excellent opportunity to secure a distinct storefront along the most desirable portion of the booming King Street East node. The space is surrounded by residential & office density, with strong pedestrian foot traffic and direct access to multiple lines of TTC transit. Situated in the heart of the King St Design District, the location is adjacent to George Brown College, the St Lawrence Market, the Financial Core and massive new residential developments. The area is defined by a strong mix of working professionals, students, and design oriented shoppers, with continuous strong pedestrian and vehicular traffic. Neighboring tenants include Bar Ardo, Velvet Lane, Second Cup, Wine Rack, F45 Fitness, Starbucks, Neo Coffee Bar, Cora Breakfast, St Lawrence Market, EQ3, Design Within Reach, Tim Hortons and numerous high end showrooms.
NEARBY MAJOR RETAILERS
Presented by
171 King St E
Hmm, there seems to have been an error sending your message. Please try again.
Thanks! Your message was sent.


