Your email has been sent.
Highlights
- Prime Visibility
- New Retail Development!
Space Availability (1)
Display Rental Rate as
- Space
- Size
- Term
- Rental Rate
- Rent Type
| Space | Size | Term | Rental Rate | Rent Type | ||
| 1st Floor | 1,250-10,000 SF | 5-15 Years | Upon Request Upon Request Upon Request Upon Request | Triple Net (NNN) |
1737 Bonds Ranch Rd - 1st Floor
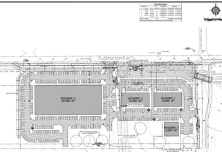
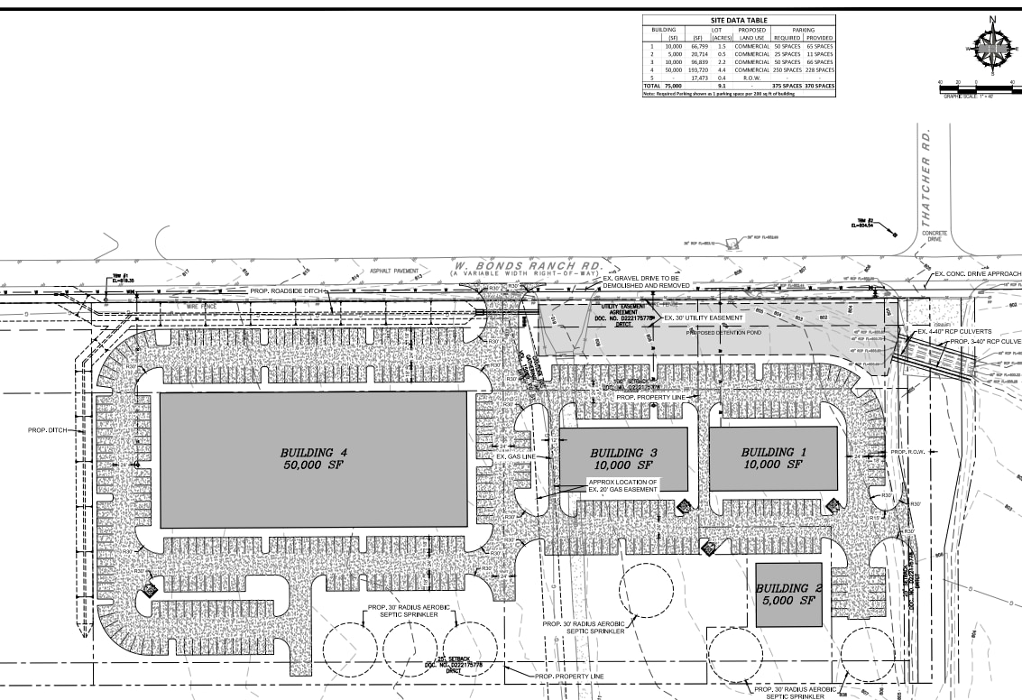
Great exposure in rapidly expanding N. Fort Worth. New retail development on West Bonds Ranch Road. Retail, Medical, Restaurant. Endcaps available; drive through available. Design is for series of 5,000-12,000 sf retail buildings. Would allow up to 40,000 sf user in new build.
- Lease rate does not include utilities, property expenses or building services
- Located in-line with other retail
- Drive Thru
Rent Types
The rent amount and type that the tenant (lessee) will be responsible to pay to the landlord (lessor) throughout the lease term is negotiated prior to both parties signing a lease agreement. The rent type will vary depending upon the services provided. For example, triple net rents are typically lower than full service rents due to additional expenses the tenant is required to pay in addition to the base rent. Contact the listing broker for a full understanding of any associated costs or additional expenses for each rent type.
1. Full Service: A rental rate that includes normal building standard services as provided by the landlord within a base year rental.
2. Double Net (NN): Tenant pays for only two of the building expenses; the landlord and tenant determine the specific expenses prior to signing the lease agreement.
3. Triple Net (NNN): A lease in which the tenant is responsible for all expenses associated with their proportional share of occupancy of the building.
4. Modified Gross: Modified Gross is a general type of lease rate where typically the tenant will be responsible for their proportional share of one or more of the expenses. The landlord will pay the remaining expenses. See the below list of common Modified Gross rental rate structures: 4. Plus All Utilities: A type of Modified Gross Lease where the tenant is responsible for their proportional share of utilities in addition to the rent. 4. Plus Cleaning: A type of Modified Gross Lease where the tenant is responsible for their proportional share of cleaning in addition to the rent. 4. Plus Electric: A type of Modified Gross Lease where the tenant is responsible for their proportional share of the electrical cost in addition to the rent. 4. Plus Electric & Cleaning: A type of Modified Gross Lease where the tenant is responsible for their proportional share of the electrical and cleaning cost in addition to the rent. 4. Plus Utilities and Char: A type of Modified Gross Lease where the tenant is responsible for their proportional share of the utilities and cleaning cost in addition to the rent. 4. Industrial Gross: A type of Modified Gross lease where the tenant pays one or more of the expenses in addition to the rent. The landlord and tenant determine these prior to signing the lease agreement.
5. Tenant Electric: The landlord pays for all services and the tenant is responsible for their usage of lights and electrical outlets in the space they occupy.
6. Negotiable or Upon Request: Used when the leasing contact does not provide the rent or service type.
7. TBD: To be determined; used for buildings for which no rent or service type is known, commonly utilized when the buildings are not yet built.
Property Facts
| Total Space Available | 10,000 SF | Center Properties | 1 |
| Min. Divisible | 1,250 SF | Gross Leasable Area | 10,000 SF |
| Center Type | Lifestyle Center | Year Built | 2026 |
| Stores | 0 |
| Total Space Available | 10,000 SF |
| Min. Divisible | 1,250 SF |
| Center Type | Lifestyle Center |
| Stores | 0 |
| Center Properties | 1 |
| Gross Leasable Area | 10,000 SF |
| Year Built | 2026 |
About the Property
New retail development on W Bonds Ranch Road. Corner of Bonds Ranch and Thatcher (which will be 4 way intersection with stop light) and traveling west.
Presented by
1737 Bonds Ranch Rd
Hmm, there seems to have been an error sending your message. Please try again.
Thanks! Your message was sent.





