Log In/Sign Up
Your email has been sent.
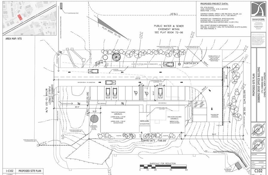
1751 Dobbins Dr 0.46 Acres of Commercial Land Offered at $975,000 in Chapel Hill, NC 27514



Investment Highlights
- Highly visible site...43,000 daily trips per day coming into Chapel Hill less than a mile from I-40.
- Approved site plan & building by Town of Chapel Hill ready for construction permit submittal.
Executive Summary
This highly visible property on Hwy 15-501 coming into Chapel Hill has an approved site plan for 7165 sf professional office building by Town of Chapel Hill ready for submission for construction permits. Perfect branding opportunity for professional desiring the eyes of 43,000 cars passing on average each day. Property is located less than a mile from I-40 on the right side driving into Chapel Hill near Wegman's, Lowes, UNC Health, 5th Third Bank, & the Parkline Building. Price includes materials already on site for the underground stormwater detention system. See brochure for full site plan, elevations, & proposed floor plans which can be adjusted to suit users needs.
Taxes & Operating Expenses (Actual - 2025) Click Here to Access |
Annual | Annual Per AC |
|---|---|---|
| Taxes |
-
|
-
|
| Operating Expenses |
-
|
-
|
| Total Expenses |
$99,999
|
$9.99
|
Taxes & Operating Expenses (Actual - 2025) Click Here to Access
| Taxes | |
|---|---|
| Annual | - |
| Annual Per AC | - |
| Operating Expenses | |
|---|---|
| Annual | - |
| Annual Per AC | - |
| Total Expenses | |
|---|---|
| Annual | $99,999 |
| Annual Per AC | $9.99 |
Property Facts
1 Lot Available
Lot
| Price | $975,000 | Lot Size | 0.46 AC |
| Price Per AC | $2,119,565.22 |
| Price | $975,000 |
| Price Per AC | $2,119,565.22 |
| Lot Size | 0.46 AC |
High visibility .46 acre lot located on service road adjacent to Hwy 15-501-Fordham Blvd (43,000 daily trips) coming into Chapel Hill from I-40.
Description
Previously developed lot. Has current approved site plans for office use. Water and sewer available nearby. High traffic count- approx. 43,000 daily.
Fairly walkable
50/100
Exceptionally drivable
90/100
Limited public transit
30/100
Fairly bikeable
50/100
Property Taxes
| Parcel Number | 9799586643 | Improvements Assessment | $0 |
| Land Assessment | $480,900 | Total Assessment | $480,900 |
Property Taxes
Parcel Number
9799586643
Land Assessment
$480,900
Improvements Assessment
$0
Total Assessment
$480,900
1 of 4
Videos
Matterport 3D Exterior
Matterport 3D Tour
Photos
Street View
Street
Map
Presented by
1751 Dobbins Dr
Already a member? Log In
Hmm, there seems to have been an error sending your message. Please try again.
Thanks! Your message was sent.

