Log In/Sign Up
Your email has been sent.
1755 Rollins Rd
Burlingame, CA 94010
Goodman Commerce Center Burlingame · Industrial Property for Lease
·
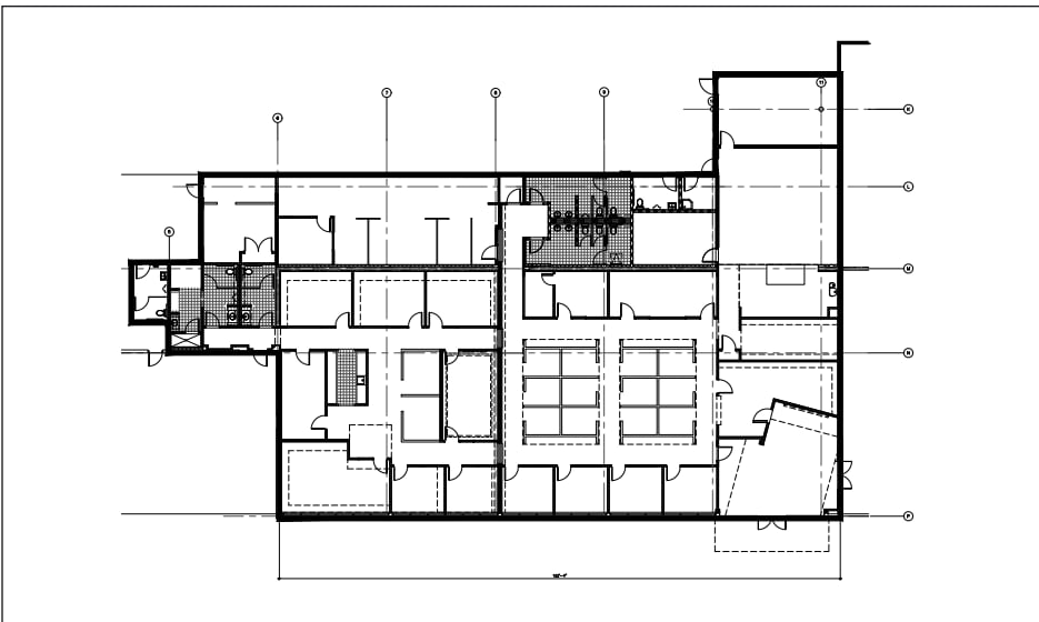
83,791 SF


Sublease Highlights
- Excellent Access to Millbrae Ave and Broadway Ave North and South Highway 101 Exits
- Fire Sprinkler System Motion Sensored Warehouse Lights and Skylights.
- Transit 1/2 mile(10 minute) walk to Millbrae Caltran/Bart/ Samtrans Transit Center
Features
Clear Height
16’
Drive In Bays
1
Standard Parking Spaces
85
Warehouse Facility Facts
Building Size
83,791 SF
Lot Size
2.93 AC
Year Built
1970
Construction
Masonry
Water
City Water
Sewer
City Sewer
Power Supply
Amps: 1,200 Volts: 600 Phase: 3
Zoning
RRMU - Manufacturing
1 of 23
Videos
Matterport 3D Exterior
Matterport 3D Tour
Photos
Street View
Street
Map
