Log In/Sign Up
Your email has been sent.
1777 Smith Ave 4,858 SF Industrial Building San Jose, CA 95112 $1,349,000 ($277.69/SF)



Investment Highlights
- Location
- location, Wharehouse space and value
- Location
Executive Summary
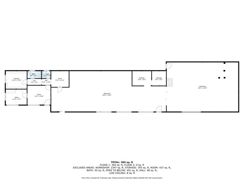
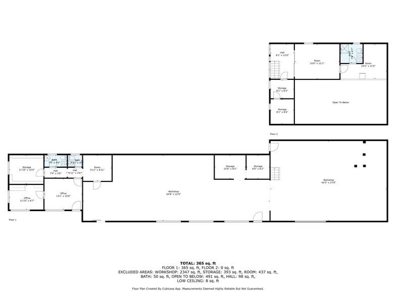
Price reduced, Seller is motivated. Great opportunity! Includes 3 offices, 2 bathrooms, plenty of parking in a great location. There is a mezzanine, roll up doors, 16’ celilings.
Taxes & Operating Expenses (Actual - 2024) Click Here to Access |
Annual | Annual Per SF |
|---|---|---|
| Taxes |
-
|
-
|
| Operating Expenses |
-
|
-
|
| Total Expenses |
$99,999
|
$9.99
|
Taxes & Operating Expenses (Actual - 2024) Click Here to Access
| Taxes | |
|---|---|
| Annual | - |
| Annual Per SF | - |
| Operating Expenses | |
|---|---|
| Annual | - |
| Annual Per SF | - |
| Total Expenses | |
|---|---|
| Annual | $99,999 |
| Annual Per SF | $9.99 |
Property Facts
| Price | $1,349,000 | Rentable Building Area | 4,858 SF |
| Price Per SF | $277.69 | No. Stories | 1 |
| Sale Type | Owner User | Year Built | 1959 |
| Property Type | Industrial | Parking Ratio | 2.06/1,000 SF |
| Property Subtype | Service | Clear Ceiling Height | 16’ |
| Building Class | C | No. Drive In / Grade-Level Doors | 1 |
| Lot Size | 0.18 AC | Opportunity Zone |
Yes
|
| Zoning | HI | ||
| Price | $1,349,000 |
| Price Per SF | $277.69 |
| Sale Type | Owner User |
| Property Type | Industrial |
| Property Subtype | Service |
| Building Class | C |
| Lot Size | 0.18 AC |
| Rentable Building Area | 4,858 SF |
| No. Stories | 1 |
| Year Built | 1959 |
| Parking Ratio | 2.06/1,000 SF |
| Clear Ceiling Height | 16’ |
| No. Drive In / Grade-Level Doors | 1 |
| Opportunity Zone |
Yes |
| Zoning | HI |
1 1
Property Taxes
| Parcel Number | 477-26-064 | Improvements Assessment | $27,115 (2025) |
| Land Assessment | $350,857 (2025) | Total Assessment | $377,972 (2025) |
Property Taxes
Parcel Number
477-26-064
Land Assessment
$350,857 (2025)
Improvements Assessment
$27,115 (2025)
Total Assessment
$377,972 (2025)
1 of 16
Videos
Matterport 3D Exterior
Matterport 3D Tour
Photos
Street View
Street
Map
1 of 1
Presented by
David Lyng & Associates
1777 Smith Ave
Already a member? Log In
Hmm, there seems to have been an error sending your message. Please try again.
Thanks! Your message was sent.
Your message has been sent!
Activate your LoopNet account now to track properties, get real-time alerts, save time on future inquiries, and more.
