Your email has been sent.
Highlights
- Move-in ready small office spaces
- Excellent location: 1 minute to I-25, Short walk to Light Rail, 5 minutes to Cherry Creek, Walk to nearby restaurants, retail, and hotels
- On-site management with 24/7 building access
- No pass-throughs on operating expenses
- Renovated lobby and conference rooms
- Surface parking for $35/month (unreserved)
All Available Spaces(9)
Display Rental Rate as
- Space
- Size
- Term
- Rental Rate
- Space Use
- Build-Out
- Available
Move-in ready small suites • No pass throughs on operating expenses • 24 hour building access • 1 minute to I-25 • Short walk to Light Rail • Renovated lobby • On-site management • Conference rooms • 5 minutes to Cherry Creek • Walk to Restaurants, Retail, and Hotels • Parking $35/ month for surface unreserved spaces
- Rate includes utilities, building services and property expenses
- 4 Private Offices
- Fully Built-Out as Law Office
- 1 Conference Room
Move-in ready small suites • No pass throughs on operating expenses • 24 hour building access • 1 minute to I-25 • Short walk to Light Rail • Renovated lobby • On-site management • Conference rooms • 5 minutes to Cherry Creek • Walk to Restaurants, Retail, and Hotels • Parking $35/ month for surface unreserved spaces
- Rate includes utilities, building services and property expenses
3 large offices with a reception area and sink
- Rate includes utilities, building services and property expenses
1 large room, available August 1, 2025
- Rate includes utilities, building services and property expenses
2 offices with reception area
- Rate includes utilities, building services and property expenses
- 1 Private Office
- Fully Built-Out as Standard Office
Office intensive. Great corporate suite
- Rate includes utilities, building services and property expenses
- Fully Built-Out as Standard Office
- Rate includes utilities, building services and property expenses
- 1 Private Office
- Fully Built-Out as Standard Office
2 large offices with reception
- Rate includes utilities, building services and property expenses
- 2 Private Offices
- Fully Built-Out as Standard Office
2 large offices with reception
- Rate includes utilities, building services and property expenses
- 2 Private Offices
- Fully Built-Out as Standard Office
| Space | Size | Term | Rental Rate | Space Use | Build-Out | Available |
| 1st Floor, Ste 185 | 1,788 SF | Negotiable | $23.04 /SF/YR $1.92 /SF/MO $41,196 /YR $3,433 /MO | Office | Full Build-Out | Now |
| 2nd Floor, Ste 200 | 2,588 SF | Negotiable | $23.04 /SF/YR $1.92 /SF/MO $59,628 /YR $4,969 /MO | Office | - | Now |
| 2nd Floor, Ste 271 | 888 SF | Negotiable | $23.04 /SF/YR $1.92 /SF/MO $20,460 /YR $1,705 /MO | Office | - | 30 Days |
| 4th Floor, Ste 403 | 323 SF | Negotiable | $23.04 /SF/YR $1.92 /SF/MO $7,442 /YR $620.16 /MO | Office | Shell Space | Now |
| 4th Floor, Ste 465 | 626 SF | Negotiable | $23.04 /SF/YR $1.92 /SF/MO $14,423 /YR $1,202 /MO | Office | Full Build-Out | Now |
| 5th Floor, Ste 500 | 5,435 SF | Negotiable | $23.04 /SF/YR $1.92 /SF/MO $125,222 /YR $10,435 /MO | Office | Full Build-Out | Now |
| 6th Floor, Ste 695 | 530 SF | Negotiable | $23.04 /SF/YR $1.92 /SF/MO $12,211 /YR $1,018 /MO | Office | Full Build-Out | Now |
| 7th Floor, Ste 702 | 872 SF | Negotiable | $23.04 /SF/YR $1.92 /SF/MO $20,091 /YR $1,674 /MO | Office | Full Build-Out | Now |
| 7th Floor, Ste 790 | 675 SF | Negotiable | $23.04 /SF/YR $1.92 /SF/MO $15,552 /YR $1,296 /MO | Office | Full Build-Out | Now |
1st Floor, Ste 185
| Size |
| 1,788 SF |
| Term |
| Negotiable |
| Rental Rate |
| $23.04 /SF/YR $1.92 /SF/MO $41,196 /YR $3,433 /MO |
| Space Use |
| Office |
| Build-Out |
| Full Build-Out |
| Available |
| Now |
2nd Floor, Ste 200
| Size |
| 2,588 SF |
| Term |
| Negotiable |
| Rental Rate |
| $23.04 /SF/YR $1.92 /SF/MO $59,628 /YR $4,969 /MO |
| Space Use |
| Office |
| Build-Out |
| - |
| Available |
| Now |
2nd Floor, Ste 271
| Size |
| 888 SF |
| Term |
| Negotiable |
| Rental Rate |
| $23.04 /SF/YR $1.92 /SF/MO $20,460 /YR $1,705 /MO |
| Space Use |
| Office |
| Build-Out |
| - |
| Available |
| 30 Days |
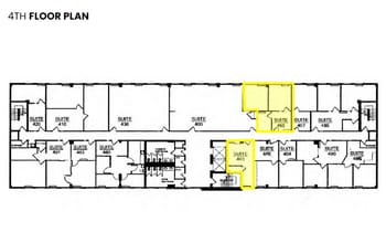
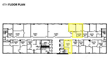
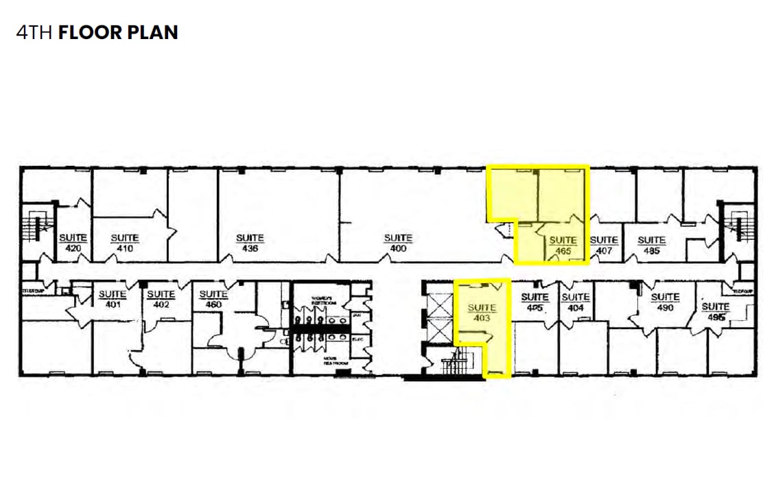
4th Floor, Ste 403
| Size |
| 323 SF |
| Term |
| Negotiable |
| Rental Rate |
| $23.04 /SF/YR $1.92 /SF/MO $7,442 /YR $620.16 /MO |
| Space Use |
| Office |
| Build-Out |
| Shell Space |
| Available |
| Now |
4th Floor, Ste 465
| Size |
| 626 SF |
| Term |
| Negotiable |
| Rental Rate |
| $23.04 /SF/YR $1.92 /SF/MO $14,423 /YR $1,202 /MO |
| Space Use |
| Office |
| Build-Out |
| Full Build-Out |
| Available |
| Now |
5th Floor, Ste 500
| Size |
| 5,435 SF |
| Term |
| Negotiable |
| Rental Rate |
| $23.04 /SF/YR $1.92 /SF/MO $125,222 /YR $10,435 /MO |
| Space Use |
| Office |
| Build-Out |
| Full Build-Out |
| Available |
| Now |
6th Floor, Ste 695
| Size |
| 530 SF |
| Term |
| Negotiable |
| Rental Rate |
| $23.04 /SF/YR $1.92 /SF/MO $12,211 /YR $1,018 /MO |
| Space Use |
| Office |
| Build-Out |
| Full Build-Out |
| Available |
| Now |
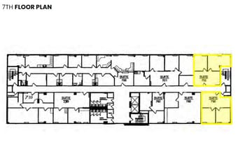
7th Floor, Ste 702
| Size |
| 872 SF |
| Term |
| Negotiable |
| Rental Rate |
| $23.04 /SF/YR $1.92 /SF/MO $20,091 /YR $1,674 /MO |
| Space Use |
| Office |
| Build-Out |
| Full Build-Out |
| Available |
| Now |
7th Floor, Ste 790
| Size |
| 675 SF |
| Term |
| Negotiable |
| Rental Rate |
| $23.04 /SF/YR $1.92 /SF/MO $15,552 /YR $1,296 /MO |
| Space Use |
| Office |
| Build-Out |
| Full Build-Out |
| Available |
| Now |
1st Floor, Ste 185
| Size | 1,788 SF |
| Term | Negotiable |
| Rental Rate | $23.04 /SF/YR |
| Space Use | Office |
| Build-Out | Full Build-Out |
| Available | Now |
Move-in ready small suites • No pass throughs on operating expenses • 24 hour building access • 1 minute to I-25 • Short walk to Light Rail • Renovated lobby • On-site management • Conference rooms • 5 minutes to Cherry Creek • Walk to Restaurants, Retail, and Hotels • Parking $35/ month for surface unreserved spaces
- Rate includes utilities, building services and property expenses
- Fully Built-Out as Law Office
- 4 Private Offices
- 1 Conference Room
2nd Floor, Ste 200
| Size | 2,588 SF |
| Term | Negotiable |
| Rental Rate | $23.04 /SF/YR |
| Space Use | Office |
| Build-Out | - |
| Available | Now |
Move-in ready small suites • No pass throughs on operating expenses • 24 hour building access • 1 minute to I-25 • Short walk to Light Rail • Renovated lobby • On-site management • Conference rooms • 5 minutes to Cherry Creek • Walk to Restaurants, Retail, and Hotels • Parking $35/ month for surface unreserved spaces
- Rate includes utilities, building services and property expenses
2nd Floor, Ste 271
| Size | 888 SF |
| Term | Negotiable |
| Rental Rate | $23.04 /SF/YR |
| Space Use | Office |
| Build-Out | - |
| Available | 30 Days |
3 large offices with a reception area and sink
- Rate includes utilities, building services and property expenses
4th Floor, Ste 403
| Size | 323 SF |
| Term | Negotiable |
| Rental Rate | $23.04 /SF/YR |
| Space Use | Office |
| Build-Out | Shell Space |
| Available | Now |
1 large room, available August 1, 2025
- Rate includes utilities, building services and property expenses
4th Floor, Ste 465
| Size | 626 SF |
| Term | Negotiable |
| Rental Rate | $23.04 /SF/YR |
| Space Use | Office |
| Build-Out | Full Build-Out |
| Available | Now |
2 offices with reception area
- Rate includes utilities, building services and property expenses
- Fully Built-Out as Standard Office
- 1 Private Office
5th Floor, Ste 500
| Size | 5,435 SF |
| Term | Negotiable |
| Rental Rate | $23.04 /SF/YR |
| Space Use | Office |
| Build-Out | Full Build-Out |
| Available | Now |
Office intensive. Great corporate suite
- Rate includes utilities, building services and property expenses
- Fully Built-Out as Standard Office
6th Floor, Ste 695
| Size | 530 SF |
| Term | Negotiable |
| Rental Rate | $23.04 /SF/YR |
| Space Use | Office |
| Build-Out | Full Build-Out |
| Available | Now |
- Rate includes utilities, building services and property expenses
- Fully Built-Out as Standard Office
- 1 Private Office
7th Floor, Ste 702
| Size | 872 SF |
| Term | Negotiable |
| Rental Rate | $23.04 /SF/YR |
| Space Use | Office |
| Build-Out | Full Build-Out |
| Available | Now |
2 large offices with reception
- Rate includes utilities, building services and property expenses
- Fully Built-Out as Standard Office
- 2 Private Offices
7th Floor, Ste 790
| Size | 675 SF |
| Term | Negotiable |
| Rental Rate | $23.04 /SF/YR |
| Space Use | Office |
| Build-Out | Full Build-Out |
| Available | Now |
2 large offices with reception
- Rate includes utilities, building services and property expenses
- Fully Built-Out as Standard Office
- 2 Private Offices
Property Overview
Bellaire Place offers small office suites with no pass-throughs on operating expenses. Enjoy 24/7 access, a renovated lobby, on-site management, and conference rooms. Located 1 minute from I-25 and a short walk to the Light Rail, the building is surrounded by restaurants, retail, and hotels. Just 5 minutes from Cherry Creek, it’s ideal for businesses on the go.
- Conferencing Facility
- Property Manager on Site
Property Facts
Contact the Leasing Agent
1780 S Bellaire St



















