Your email has been sent.
HIGHLIGHTS
- Prime Tribeca location near Hudson and Greenwich Streets
- Loft-style event space with prep kitchen and exposed beams
- Flexible lease terms and all uses considered, including pop-ups
- Turnkey restaurant with skylight, wine cave, and lounge
- Full-floor and half-floor office lofts with private restrooms
ALL AVAILABLE SPACES(4)
Display Rental Rate as
- SPACE
- SIZE
- TERM
- RENTAL RATE
- SPACE USE
- CONDITION
- AVAILABLE
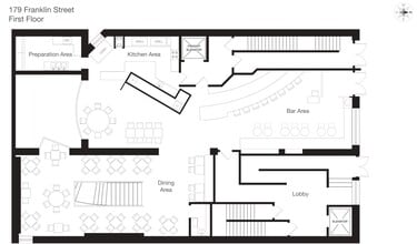
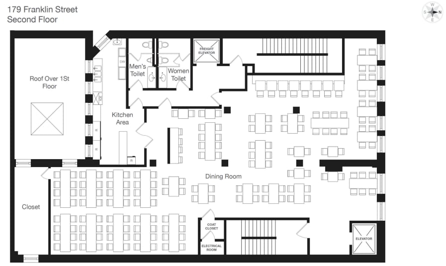
179 Franklin street offers a flagship location opportunity with availability of n 2,376 to a total of 22,000 rentable square feet including a retail space with selling lower level, full floor loft event space and 1.5 floors of loft office space. The ground and lower levels are currently configured as a turn-key restaurant. The main dining room, vented kitchen and bar comprise the upper level. The lower level, connected via a grand staircase, features another dining area, 40' long wine room, climate controlled wine and cheese cave, lounge and men and women's rest rooms. All used considered including restaurant use showrooms, fitness, education and medical, etc. Pop-up use is also welcome. The 2nd floor is currently a loft event space with 11’ ceilings, wood beams, prep kitchen with dishwasher and warming ovens, and renovated bathrooms. The 3rd floor is currently a loft office space with 4 office/conference rooms, wet pantry, large open work space and private renovated bathrooms. The 4th half floor office has two offices and an open work space. This space shares a men’s and women’s room with one other office. Inquire within for rents. Spaces can be rented individually or together.
- Partially Built-Out as Standard Retail Space
- Space is in Excellent Condition
- Central Air Conditioning
- Ventilation - Venting
- Restaurant space of LL and 1st Floor for $40,000
- Located in-line with other retail
- Can be combined with additional space(s) for up to 19,008 SF of adjacent space
- Plug & Play
- Spaces can be rented individually or together.
- As Is, No Key Money for Restaurant Space
179 Franklin street offers a flagship location opportunity with availability of n 2,376 to a total of 22,000 rentable square feet including a retail space with selling lower level, full floor loft event space and 1.5 floors of loft office space. The ground and lower levels are currently configured as a turn-key restaurant. The main dining room, vented kitchen and bar comprise the upper level. The lower level, connected via a grand staircase, features another dining area, 40' long wine room, climate controlled wine and cheese cave, lounge and men and women's rest rooms. All used considered including restaurant use showrooms, fitness, education and medical, etc. Pop-up use is also welcome. The 2nd floor is currently a loft event space with 11’ ceilings, wood beams, prep kitchen with dishwasher and warming ovens, and renovated bathrooms. The 3rd floor is currently a loft office space with 4 office/conference rooms, wet pantry, large open work space and private renovated bathrooms. The 4th half floor office has two offices and an open work space. This space shares a men’s and women’s room with one other office. Inquire within for rents. Spaces can be rented individually or together.
- Partially Built-Out as Standard Retail Space
- Space is in Excellent Condition
- Central Air Conditioning
- Ventilation - Venting
- Restaurant space of LL and 1st Floor for $40,000
- Located in-line with other retail
- Can be combined with additional space(s) for up to 19,008 SF of adjacent space
- Plug & Play
- Spaces can be rented individually or together.
- As Is, No Key Money for Restaurant Space
Rare opportunity to occupy a full floor of this boutique loft building on lovely Franklin Street. Enjoy south and north exposures, approx. 11' ceilings, exposed brick walls, wood beamed ceilings and original loft details. The floor is currently set up as an event space with an open layout, several seating areas and bar/lounge. There is a fully operational prep kitchen and two renovated bathrooms that are private to the floor. A freight elevator is also available. Space is offered "as is" for immediate possession. Owner will consider short and long term rentals. Close to the 1/2/3 trains, Greenwich Hotel and located in the absolute prime part of TriBeCa. This space is uniquely qualified to handle pop-up uses, event spaces, and temporary opportunities. Please reach out to discuss various options. For additional information please see: https://www.bhsusa.com/manhattan/downtown/179-franklin-street-2/rental/22554183 179 Franklin street offers a flagship location opportunity with availability of n 2,376 to a total of 22,000 rentable square feet including a retail space with selling lower level, full floor loft event space and 1.5 floors of loft office space. The ground and lower levels are currently configured as a turn-key restaurant. The main dining room, vented kitchen and bar comprise the upper level. The lower level, connected via a grand staircase, features another dining area, 40' long wine room, climate controlled wine and cheese cave, lounge and men and women's rest rooms. All used considered including restaurant use showrooms, fitness, education and medical, etc. Pop-up use is also welcome. The 2nd floor is currently a loft event space with 11’ ceilings, wood beams, prep kitchen with dishwasher and warming ovens, and renovated bathrooms. The 3rd floor is currently a loft office space with 4 office/conference rooms, wet pantry, large open work space and private renovated bathrooms. The 4th half floor office has two offices and an open work space. This space shares a men’s and women’s room with one other office. Inquire within for rents. Spaces can be rented individually or together.
- Listed rate may not include certain utilities, building services and property expenses
- Open Floor Plan Layout
- Finished Ceilings: 11’ - 12’
- Can be combined with additional space(s) for up to 19,008 SF of adjacent space
- Kitchen
- High Ceilings
- After Hours HVAC Available
- Hardwood Floors
- two renovated bathrooms
- Fully Built-Out as Standard Retail Space
- Fits 12 - 39 People
- Space is in Excellent Condition
- Central Air and Heating
- Elevator Access
- Natural Light
- Open-Plan
- fully operational prep kitchen
- Spaces can be rented individually or together.
Rare opportunity to occupy a full floor of this boutique loft building on lovely Franklin Street. Enjoy south and north exposures, approx. 11' ceilings, exposed brick walls, wood beamed ceilings and original loft details. For additional information please see: https://www.bhsusa.com/manhattan/downtown/179-franklin-street-3fl/rental/22761577 There is very little loss factor on the 3rd floor where the space makes up almost the entire footprint of the building. The current set up has a large windowed conference room, two smaller conference rooms, mammoth open work space, reception area, windowed back office, kitchen and private bathrooms. 179 Franklin street offers a flagship location opportunity with availability of n 2,376 to a total of 22,000 rentable square feet including a retail space with selling lower level, full floor loft event space and 1.5 floors of loft office space. The ground and lower levels are currently configured as a turn-key restaurant. The main dining room, vented kitchen and bar comprise the upper level. The lower level, connected via a grand staircase, features another dining area, 40' long wine room, climate controlled wine and cheese cave, lounge and men and women's rest rooms. All used considered including restaurant use showrooms, fitness, education and medical, etc. Pop-up use is also welcome. The 2nd floor is currently a loft event space with 11’ ceilings, wood beams, prep kitchen with dishwasher and warming ovens, and renovated bathrooms. The 3rd floor is currently a loft office space with 4 office/conference rooms, wet pantry, large open work space and private renovated bathrooms. The 4th half floor office has two offices and an open work space. This space shares a men’s and women’s room with one other office. Inquire within for rents. Spaces can be rented individually or together. All office spaces have central A/C and heat. We are also offering the a partial 4th floor office should you need more space. There is a passenger elevator and a freight that can be used for move-ins. Located on a prime TriBeCa block with restaurant Thalassa just below. Moments to the 1/2/3 train.
- Listed rate may not include certain utilities, building services and property expenses
- Mostly Open Floor Plan Layout
- 1 Private Office
- Finished Ceilings: 11’
- Can be combined with additional space(s) for up to 19,008 SF of adjacent space
- Kitchen
- Great South and North Exposure
- Partially Built-Out as Standard Office
- Fits 12 - 39 People
- 3 Conference Rooms
- Space is in Excellent Condition
- Reception Area
- Private Restrooms
- Spaces can be rented individually or together.
| Space | Size | Term | Rental Rate | Space Use | Condition | Available |
| Lower Level | 4,752 SF | Negotiable | Upon Request Upon Request Upon Request Upon Request | Retail | Partial Build-Out | Now |
| 1st Floor | 4,752 SF | Negotiable | Upon Request Upon Request Upon Request Upon Request | Retail | Partial Build-Out | Now |
| 2nd Floor | 4,752 SF | Negotiable | $50.51 /SF/YR $4.21 /SF/MO $240,024 /YR $20,002 /MO | Office/Retail | Full Build-Out | Now |
| 3rd Floor | 4,752 SF | Negotiable | $50.51 /SF/YR $4.21 /SF/MO $240,024 /YR $20,002 /MO | Office | Partial Build-Out | Now |
Lower Level
| Size |
| 4,752 SF |
| Term |
| Negotiable |
| Rental Rate |
| Upon Request Upon Request Upon Request Upon Request |
| Space Use |
| Retail |
| Condition |
| Partial Build-Out |
| Available |
| Now |
1st Floor
| Size |
| 4,752 SF |
| Term |
| Negotiable |
| Rental Rate |
| Upon Request Upon Request Upon Request Upon Request |
| Space Use |
| Retail |
| Condition |
| Partial Build-Out |
| Available |
| Now |
2nd Floor
| Size |
| 4,752 SF |
| Term |
| Negotiable |
| Rental Rate |
| $50.51 /SF/YR $4.21 /SF/MO $240,024 /YR $20,002 /MO |
| Space Use |
| Office/Retail |
| Condition |
| Full Build-Out |
| Available |
| Now |
3rd Floor
| Size |
| 4,752 SF |
| Term |
| Negotiable |
| Rental Rate |
| $50.51 /SF/YR $4.21 /SF/MO $240,024 /YR $20,002 /MO |
| Space Use |
| Office |
| Condition |
| Partial Build-Out |
| Available |
| Now |
Lower Level
| Size | 4,752 SF |
| Term | Negotiable |
| Rental Rate | Upon Request |
| Space Use | Retail |
| Condition | Partial Build-Out |
| Available | Now |
179 Franklin street offers a flagship location opportunity with availability of n 2,376 to a total of 22,000 rentable square feet including a retail space with selling lower level, full floor loft event space and 1.5 floors of loft office space. The ground and lower levels are currently configured as a turn-key restaurant. The main dining room, vented kitchen and bar comprise the upper level. The lower level, connected via a grand staircase, features another dining area, 40' long wine room, climate controlled wine and cheese cave, lounge and men and women's rest rooms. All used considered including restaurant use showrooms, fitness, education and medical, etc. Pop-up use is also welcome. The 2nd floor is currently a loft event space with 11’ ceilings, wood beams, prep kitchen with dishwasher and warming ovens, and renovated bathrooms. The 3rd floor is currently a loft office space with 4 office/conference rooms, wet pantry, large open work space and private renovated bathrooms. The 4th half floor office has two offices and an open work space. This space shares a men’s and women’s room with one other office. Inquire within for rents. Spaces can be rented individually or together.
- Partially Built-Out as Standard Retail Space
- Located in-line with other retail
- Space is in Excellent Condition
- Can be combined with additional space(s) for up to 19,008 SF of adjacent space
- Central Air Conditioning
- Plug & Play
- Ventilation - Venting
- Spaces can be rented individually or together.
- Restaurant space of LL and 1st Floor for $40,000
- As Is, No Key Money for Restaurant Space
1st Floor
| Size | 4,752 SF |
| Term | Negotiable |
| Rental Rate | Upon Request |
| Space Use | Retail |
| Condition | Partial Build-Out |
| Available | Now |
179 Franklin street offers a flagship location opportunity with availability of n 2,376 to a total of 22,000 rentable square feet including a retail space with selling lower level, full floor loft event space and 1.5 floors of loft office space. The ground and lower levels are currently configured as a turn-key restaurant. The main dining room, vented kitchen and bar comprise the upper level. The lower level, connected via a grand staircase, features another dining area, 40' long wine room, climate controlled wine and cheese cave, lounge and men and women's rest rooms. All used considered including restaurant use showrooms, fitness, education and medical, etc. Pop-up use is also welcome. The 2nd floor is currently a loft event space with 11’ ceilings, wood beams, prep kitchen with dishwasher and warming ovens, and renovated bathrooms. The 3rd floor is currently a loft office space with 4 office/conference rooms, wet pantry, large open work space and private renovated bathrooms. The 4th half floor office has two offices and an open work space. This space shares a men’s and women’s room with one other office. Inquire within for rents. Spaces can be rented individually or together.
- Partially Built-Out as Standard Retail Space
- Located in-line with other retail
- Space is in Excellent Condition
- Can be combined with additional space(s) for up to 19,008 SF of adjacent space
- Central Air Conditioning
- Plug & Play
- Ventilation - Venting
- Spaces can be rented individually or together.
- Restaurant space of LL and 1st Floor for $40,000
- As Is, No Key Money for Restaurant Space
2nd Floor
| Size | 4,752 SF |
| Term | Negotiable |
| Rental Rate | $50.51 /SF/YR |
| Space Use | Office/Retail |
| Condition | Full Build-Out |
| Available | Now |
Rare opportunity to occupy a full floor of this boutique loft building on lovely Franklin Street. Enjoy south and north exposures, approx. 11' ceilings, exposed brick walls, wood beamed ceilings and original loft details. The floor is currently set up as an event space with an open layout, several seating areas and bar/lounge. There is a fully operational prep kitchen and two renovated bathrooms that are private to the floor. A freight elevator is also available. Space is offered "as is" for immediate possession. Owner will consider short and long term rentals. Close to the 1/2/3 trains, Greenwich Hotel and located in the absolute prime part of TriBeCa. This space is uniquely qualified to handle pop-up uses, event spaces, and temporary opportunities. Please reach out to discuss various options. For additional information please see: https://www.bhsusa.com/manhattan/downtown/179-franklin-street-2/rental/22554183 179 Franklin street offers a flagship location opportunity with availability of n 2,376 to a total of 22,000 rentable square feet including a retail space with selling lower level, full floor loft event space and 1.5 floors of loft office space. The ground and lower levels are currently configured as a turn-key restaurant. The main dining room, vented kitchen and bar comprise the upper level. The lower level, connected via a grand staircase, features another dining area, 40' long wine room, climate controlled wine and cheese cave, lounge and men and women's rest rooms. All used considered including restaurant use showrooms, fitness, education and medical, etc. Pop-up use is also welcome. The 2nd floor is currently a loft event space with 11’ ceilings, wood beams, prep kitchen with dishwasher and warming ovens, and renovated bathrooms. The 3rd floor is currently a loft office space with 4 office/conference rooms, wet pantry, large open work space and private renovated bathrooms. The 4th half floor office has two offices and an open work space. This space shares a men’s and women’s room with one other office. Inquire within for rents. Spaces can be rented individually or together.
- Listed rate may not include certain utilities, building services and property expenses
- Fully Built-Out as Standard Retail Space
- Open Floor Plan Layout
- Fits 12 - 39 People
- Finished Ceilings: 11’ - 12’
- Space is in Excellent Condition
- Can be combined with additional space(s) for up to 19,008 SF of adjacent space
- Central Air and Heating
- Kitchen
- Elevator Access
- High Ceilings
- Natural Light
- After Hours HVAC Available
- Open-Plan
- Hardwood Floors
- fully operational prep kitchen
- two renovated bathrooms
- Spaces can be rented individually or together.
3rd Floor
| Size | 4,752 SF |
| Term | Negotiable |
| Rental Rate | $50.51 /SF/YR |
| Space Use | Office |
| Condition | Partial Build-Out |
| Available | Now |
Rare opportunity to occupy a full floor of this boutique loft building on lovely Franklin Street. Enjoy south and north exposures, approx. 11' ceilings, exposed brick walls, wood beamed ceilings and original loft details. For additional information please see: https://www.bhsusa.com/manhattan/downtown/179-franklin-street-3fl/rental/22761577 There is very little loss factor on the 3rd floor where the space makes up almost the entire footprint of the building. The current set up has a large windowed conference room, two smaller conference rooms, mammoth open work space, reception area, windowed back office, kitchen and private bathrooms. 179 Franklin street offers a flagship location opportunity with availability of n 2,376 to a total of 22,000 rentable square feet including a retail space with selling lower level, full floor loft event space and 1.5 floors of loft office space. The ground and lower levels are currently configured as a turn-key restaurant. The main dining room, vented kitchen and bar comprise the upper level. The lower level, connected via a grand staircase, features another dining area, 40' long wine room, climate controlled wine and cheese cave, lounge and men and women's rest rooms. All used considered including restaurant use showrooms, fitness, education and medical, etc. Pop-up use is also welcome. The 2nd floor is currently a loft event space with 11’ ceilings, wood beams, prep kitchen with dishwasher and warming ovens, and renovated bathrooms. The 3rd floor is currently a loft office space with 4 office/conference rooms, wet pantry, large open work space and private renovated bathrooms. The 4th half floor office has two offices and an open work space. This space shares a men’s and women’s room with one other office. Inquire within for rents. Spaces can be rented individually or together. All office spaces have central A/C and heat. We are also offering the a partial 4th floor office should you need more space. There is a passenger elevator and a freight that can be used for move-ins. Located on a prime TriBeCa block with restaurant Thalassa just below. Moments to the 1/2/3 train.
- Listed rate may not include certain utilities, building services and property expenses
- Partially Built-Out as Standard Office
- Mostly Open Floor Plan Layout
- Fits 12 - 39 People
- 1 Private Office
- 3 Conference Rooms
- Finished Ceilings: 11’
- Space is in Excellent Condition
- Can be combined with additional space(s) for up to 19,008 SF of adjacent space
- Reception Area
- Kitchen
- Private Restrooms
- Great South and North Exposure
- Spaces can be rented individually or together.
PROPERTY OVERVIEW
Located in the heart of Tribeca between Hudson and Greenwich Streets, 179 Franklin Street presents a rare opportunity to lease up to 21,384 rentable square feet across four architecturally distinct levels. This flexible, multi-use property is ideal for retail, office, event, or pop-up concepts, and can be leased in full or in part. With immediate possession available, ownership is open to all use types and lease structures. The ground and lower levels are currently configured as a turnkey restaurant, featuring a vented kitchen, bar, 13-foot ceilings, and a dramatic skylight. The lower level includes a 40-foot wine room, climate-controlled wine and cheese cave, lounge, and restrooms—making it ideal for hospitality or experiential retail. The second floor offers a loft-style event space with exposed wood beams, 11-foot ceilings, a prep kitchen, and renovated restrooms. The third floor is a full-floor office with four private rooms, a wet pantry, and open workspace, while the fourth floor provides a half-floor loft office with two offices and shared restrooms. Surrounded by some of Tribeca’s most iconic destinations—Tribeca Grill, Bubby’s, Mr. Chow, Frenchette, and Locanda Verde—this property benefits from strong foot traffic and a prestigious neighborhood identity. With up to 50 feet of frontage and proximity to major subway lines, it offers both visibility and accessibility in one of Manhattan’s most desirable enclaves.
- 24 Hour Access
- Bus Line
- Metro/Subway
PROPERTY FACTS
SELECT TENANTS
- FLOOR
- TENANT NAME
- INDUSTRY
- 4th
- George Makris
- -
- 5th
- iNECTA LLC
- Professional, Scientific, and Technical Services
- 3rd
- J F Moran Co Inc
- Transportation and Warehousing
- 5th
- Segal & Greenberg
- Professional, Scientific, and Technical Services
- 1st
- Thalassa Restaurant
- Retailer
Presented by
179 Franklin St
Hmm, there seems to have been an error sending your message. Please try again.
Thanks! Your message was sent.












