Your email has been sent.
HIGHLIGHTS
- These versatile office suites provide built-out spaces with large windows, 12’ ceilings, modern glass finishes, and mostly open layouts.
- The property is easily accessible, sitting within walking distance of the 1, 2, A, C, and E subway lines.
- Placed conveniently near beautiful outdoor spaces, including the Hudson River Park and James J Walker Park.
- Tenants benefit from 24-hour secure access, on-site property management, and five high-speed passenger elevators.
- Near numerous national retail locations, including Chopt, Chipotle, CAVA, Dunkin’, McDonald’s, Shake Shack, and more.
- Sitting at the gateway between the West Village and SoHo, the location places tenants near many of the city's top attractions and amenities.
ALL AVAILABLE SPACES(10)
Display Rental Rate as
- SPACE
- SIZE
- TERM
- RENTAL RATE
- SPACE USE
- CONDITION
- AVAILABLE
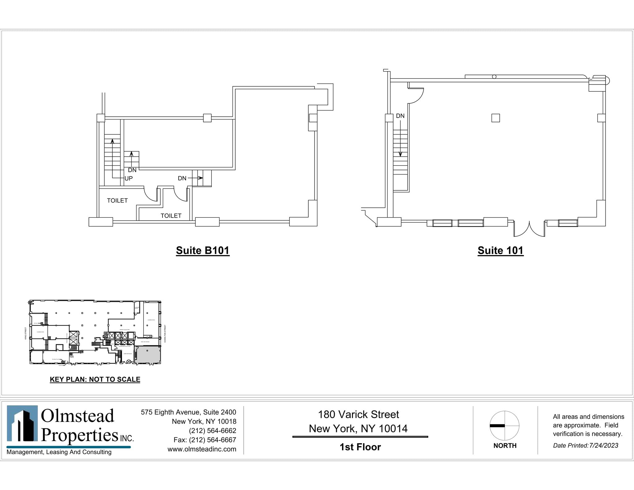
1st time available in over 20 yrs unique branding opportunity with over 190 feet of frontage on Varick and King St ceiling heights range from 12'- 16' exposure to 67,000 cars per day entrances on Varick and King St truly a one of a kind retail opportunity
currently occupied by a pizzeria/deli 1,000 sf basement
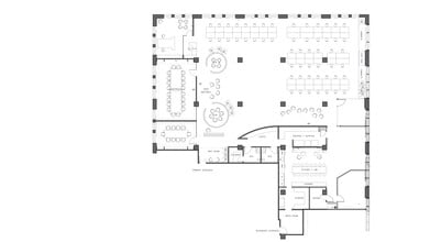
Customizable private lobby and elevator on Charlton St. Floors, 5, 6, 7 & part of 8 available up to 100,000 sf. One-of-a-kind opportunity for a building within a building with Signage on Charlton St. Center core building with great light and views on 4 sides. Owner managed for close to 100 yrs. On site leasing and management office. Located in the heart of Hudson Square with great access to transportation, dinning and amenities.
- Can be combined with additional space(s) for up to 90,156 SF of adjacent space
- Bright, center core floors
- Tree Lined Views
Customizable private lobby and elevator on Charlton St. Floors, 5, 6, 7 & part of 8 available up to 100,000 sf. One-of-a-kind opportunity for a building within a building with Signage on Charlton St. Center core building with great light and views on 4 sides. Owner managed for close to 100 yrs. On site leasing and management office. Located in the heart of Hudson Square with great access to transportation, dinning and amenities.
- Can be combined with additional space(s) for up to 90,156 SF of adjacent space
- Bright, center core floors
- Tree Lined Views
Customizable private lobby and elevator on Charlton St. Floors, 5, 6, 7 & part of 8 available up to 100,000 sf. One-of-a-kind opportunity for a building within a building with Signage on Charlton St. Center core building with great light and views on 4 sides. Owner managed for close to 100 yrs. On site leasing and management office. Located in the heart of Hudson Square with great access to transportation, dinning and amenities.
- Can be combined with additional space(s) for up to 90,156 SF of adjacent space
- Bright, center core floors
- Tree Lined Views
Customizable private lobby and elevator on Charlton St. Floors, 5, 6, 7 & part of 8 available up to 100,000 sf. One-of-a-kind opportunity for a building within a building with Signage on Charlton St. Center core building with great light and views on 4 sides. Owner managed for close to 100 yrs. On site leasing and management office. Located in the heart of Hudson Square with great access to transportation, dinning and amenities.
- Can be combined with additional space(s) for up to 90,156 SF of adjacent space
- Bright, center core floors
- Tree Lined Views
furnished and ready to go wet pantry in place owner will do work
wet pantry in place glass conference furnished
- Fits 4 - 12 People
great space, north, east and west exposures, fully built out, turn key, furnished, tenant controlled air cooled ac unit, bathrooms within space sublet through 11/30/29, will consider direct deals
- Space is in Excellent Condition
great eastern exposure, wet pantry in place open space, will do work
| Space | Size | Term | Rental Rate | Space Use | Condition | Available |
| Ground | 10,152 SF | Negotiable | Upon Request Upon Request Upon Request Upon Request | Retail | - | Now |
| Ground, Ste part ground floor | 1,200 SF | Negotiable | Upon Request Upon Request Upon Request Upon Request | Retail | - | 120 Days |
| 5th Floor, Ste 500 | 24,523 SF | Negotiable | Upon Request Upon Request Upon Request Upon Request | Office | - | Now |
| 6th Floor, Ste 600 | 25,000 SF | Negotiable | Upon Request Upon Request Upon Request Upon Request | Office | - | Now |
| 7th Floor, Ste 700 | 25,000 SF | Negotiable | Upon Request Upon Request Upon Request Upon Request | Office | - | Now |
| 8th Floor, Ste 800 | 15,633 SF | Negotiable | Upon Request Upon Request Upon Request Upon Request | Office | - | Now |
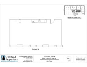
| 8th Floor, Ste 814 | 1,284 SF | Negotiable | Upon Request Upon Request Upon Request Upon Request | Office | - | Now |
| 9th Floor, Ste 912 | 1,444 SF | Negotiable | Upon Request Upon Request Upon Request Upon Request | Office | - | Now |
| 10th Floor, Ste 1001 | 11,166 SF | Negotiable | Upon Request Upon Request Upon Request Upon Request | Office | - | Now |
| 11th Floor, Ste 1126 | 2,335 SF | Negotiable | Upon Request Upon Request Upon Request Upon Request | Office | - | Now |
Ground
| Size |
| 10,152 SF |
| Term |
| Negotiable |
| Rental Rate |
| Upon Request Upon Request Upon Request Upon Request |
| Space Use |
| Retail |
| Condition |
| - |
| Available |
| Now |
Ground, Ste part ground floor
| Size |
| 1,200 SF |
| Term |
| Negotiable |
| Rental Rate |
| Upon Request Upon Request Upon Request Upon Request |
| Space Use |
| Retail |
| Condition |
| - |
| Available |
| 120 Days |
5th Floor, Ste 500
| Size |
| 24,523 SF |
| Term |
| Negotiable |
| Rental Rate |
| Upon Request Upon Request Upon Request Upon Request |
| Space Use |
| Office |
| Condition |
| - |
| Available |
| Now |
6th Floor, Ste 600
| Size |
| 25,000 SF |
| Term |
| Negotiable |
| Rental Rate |
| Upon Request Upon Request Upon Request Upon Request |
| Space Use |
| Office |
| Condition |
| - |
| Available |
| Now |
7th Floor, Ste 700
| Size |
| 25,000 SF |
| Term |
| Negotiable |
| Rental Rate |
| Upon Request Upon Request Upon Request Upon Request |
| Space Use |
| Office |
| Condition |
| - |
| Available |
| Now |
8th Floor, Ste 800
| Size |
| 15,633 SF |
| Term |
| Negotiable |
| Rental Rate |
| Upon Request Upon Request Upon Request Upon Request |
| Space Use |
| Office |
| Condition |
| - |
| Available |
| Now |
8th Floor, Ste 814
| Size |
| 1,284 SF |
| Term |
| Negotiable |
| Rental Rate |
| Upon Request Upon Request Upon Request Upon Request |
| Space Use |
| Office |
| Condition |
| - |
| Available |
| Now |
9th Floor, Ste 912
| Size |
| 1,444 SF |
| Term |
| Negotiable |
| Rental Rate |
| Upon Request Upon Request Upon Request Upon Request |
| Space Use |
| Office |
| Condition |
| - |
| Available |
| Now |
10th Floor, Ste 1001
| Size |
| 11,166 SF |
| Term |
| Negotiable |
| Rental Rate |
| Upon Request Upon Request Upon Request Upon Request |
| Space Use |
| Office |
| Condition |
| - |
| Available |
| Now |
11th Floor, Ste 1126
| Size |
| 2,335 SF |
| Term |
| Negotiable |
| Rental Rate |
| Upon Request Upon Request Upon Request Upon Request |
| Space Use |
| Office |
| Condition |
| - |
| Available |
| Now |
Ground
| Size | 10,152 SF |
| Term | Negotiable |
| Rental Rate | Upon Request |
| Space Use | Retail |
| Condition | - |
| Available | Now |
1st time available in over 20 yrs unique branding opportunity with over 190 feet of frontage on Varick and King St ceiling heights range from 12'- 16' exposure to 67,000 cars per day entrances on Varick and King St truly a one of a kind retail opportunity
Ground, Ste part ground floor
| Size | 1,200 SF |
| Term | Negotiable |
| Rental Rate | Upon Request |
| Space Use | Retail |
| Condition | - |
| Available | 120 Days |
currently occupied by a pizzeria/deli 1,000 sf basement
5th Floor, Ste 500
| Size | 24,523 SF |
| Term | Negotiable |
| Rental Rate | Upon Request |
| Space Use | Office |
| Condition | - |
| Available | Now |
Customizable private lobby and elevator on Charlton St. Floors, 5, 6, 7 & part of 8 available up to 100,000 sf. One-of-a-kind opportunity for a building within a building with Signage on Charlton St. Center core building with great light and views on 4 sides. Owner managed for close to 100 yrs. On site leasing and management office. Located in the heart of Hudson Square with great access to transportation, dinning and amenities.
- Can be combined with additional space(s) for up to 90,156 SF of adjacent space
- Tree Lined Views
- Bright, center core floors
6th Floor, Ste 600
| Size | 25,000 SF |
| Term | Negotiable |
| Rental Rate | Upon Request |
| Space Use | Office |
| Condition | - |
| Available | Now |
Customizable private lobby and elevator on Charlton St. Floors, 5, 6, 7 & part of 8 available up to 100,000 sf. One-of-a-kind opportunity for a building within a building with Signage on Charlton St. Center core building with great light and views on 4 sides. Owner managed for close to 100 yrs. On site leasing and management office. Located in the heart of Hudson Square with great access to transportation, dinning and amenities.
- Can be combined with additional space(s) for up to 90,156 SF of adjacent space
- Tree Lined Views
- Bright, center core floors
7th Floor, Ste 700
| Size | 25,000 SF |
| Term | Negotiable |
| Rental Rate | Upon Request |
| Space Use | Office |
| Condition | - |
| Available | Now |
Customizable private lobby and elevator on Charlton St. Floors, 5, 6, 7 & part of 8 available up to 100,000 sf. One-of-a-kind opportunity for a building within a building with Signage on Charlton St. Center core building with great light and views on 4 sides. Owner managed for close to 100 yrs. On site leasing and management office. Located in the heart of Hudson Square with great access to transportation, dinning and amenities.
- Can be combined with additional space(s) for up to 90,156 SF of adjacent space
- Tree Lined Views
- Bright, center core floors
8th Floor, Ste 800
| Size | 15,633 SF |
| Term | Negotiable |
| Rental Rate | Upon Request |
| Space Use | Office |
| Condition | - |
| Available | Now |
Customizable private lobby and elevator on Charlton St. Floors, 5, 6, 7 & part of 8 available up to 100,000 sf. One-of-a-kind opportunity for a building within a building with Signage on Charlton St. Center core building with great light and views on 4 sides. Owner managed for close to 100 yrs. On site leasing and management office. Located in the heart of Hudson Square with great access to transportation, dinning and amenities.
- Can be combined with additional space(s) for up to 90,156 SF of adjacent space
- Tree Lined Views
- Bright, center core floors
8th Floor, Ste 814
| Size | 1,284 SF |
| Term | Negotiable |
| Rental Rate | Upon Request |
| Space Use | Office |
| Condition | - |
| Available | Now |
furnished and ready to go wet pantry in place owner will do work
9th Floor, Ste 912
| Size | 1,444 SF |
| Term | Negotiable |
| Rental Rate | Upon Request |
| Space Use | Office |
| Condition | - |
| Available | Now |
wet pantry in place glass conference furnished
- Fits 4 - 12 People
10th Floor, Ste 1001
| Size | 11,166 SF |
| Term | Negotiable |
| Rental Rate | Upon Request |
| Space Use | Office |
| Condition | - |
| Available | Now |
great space, north, east and west exposures, fully built out, turn key, furnished, tenant controlled air cooled ac unit, bathrooms within space sublet through 11/30/29, will consider direct deals
- Space is in Excellent Condition
11th Floor, Ste 1126
| Size | 2,335 SF |
| Term | Negotiable |
| Rental Rate | Upon Request |
| Space Use | Office |
| Condition | - |
| Available | Now |
great eastern exposure, wet pantry in place open space, will do work
PROPERTY OVERVIEW
180 Varick Street offers a stunning Class-B office tower with a prime location at the gateway between Manhattans West Village and SoHo neighborhoods. Spanning 329,11 square feet across 17 stories, 180 Varick Street was built in 1929 and completed a full renovation in 2005. The building’s attractive art deco façade and entryway makes a notable statement that brings robust attention to the historic property. Tenants of the building enjoy access to quality amenities, including 24-hour secure access, on-site property management, five high-speed passenger elevators, and more. Capping the block where King and Charlon Streets meet Varick Street, the building is strategically placed near many of the area’s top amenities and recreation opportunities. Tenants can easily walk to several nearby national retailers, including Chipotle, Chopt, CAVA, Dunkin’, McDonald’s, and Shake Shack, as well as many popular local restaurants. The surrounding area also offers some of the city’s best outdoor spaces, with the Hudson River Park and James J Walker Park reachable in walking distance. The desirability of the area has made it a hot spot for corporate activity, including the nearby NYC HQ for Google with over 14,000 employees.
- 24 Hour Access
- Bio-Tech/ Lab Space
- Bus Line
- Food Service
- Metro/Subway
- Property Manager on Site
PROPERTY FACTS
SELECT TENANTS
- FLOOR
- TENANT NAME
- INDUSTRY
- GRND
- Arrojo Studio
- Services
- 17th
- BioLabs
- Real Estate
- 9th
- Grade New York
- Professional, Scientific, and Technical Services
- 10th
- Kettle
- Professional, Scientific, and Technical Services
- 4th
- Meyer Davis Studio Inc
- Professional, Scientific, and Technical Services
- 2nd
- Morgan Stanley
- Finance and Insurance
- 13th
- OMA
- -
- 9th
- Scholar
- Information
- 11th
- Thomas Phifer & Partners
- Professional, Scientific, and Technical Services
- 14th
- Whitehouse Post Productions
- Information
Presented by
180 Varick St
Hmm, there seems to have been an error sending your message. Please try again.
Thanks! Your message was sent.





















