Your email has been sent.
Airport Corporate Center 1801 Penn St 3,292 - 13,372 SF of Industrial Space Available in Melbourne, FL 32901



Highlights
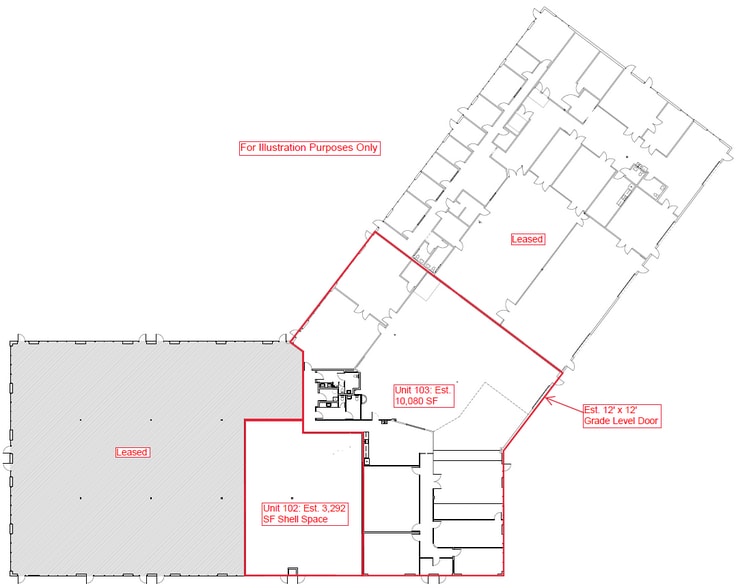
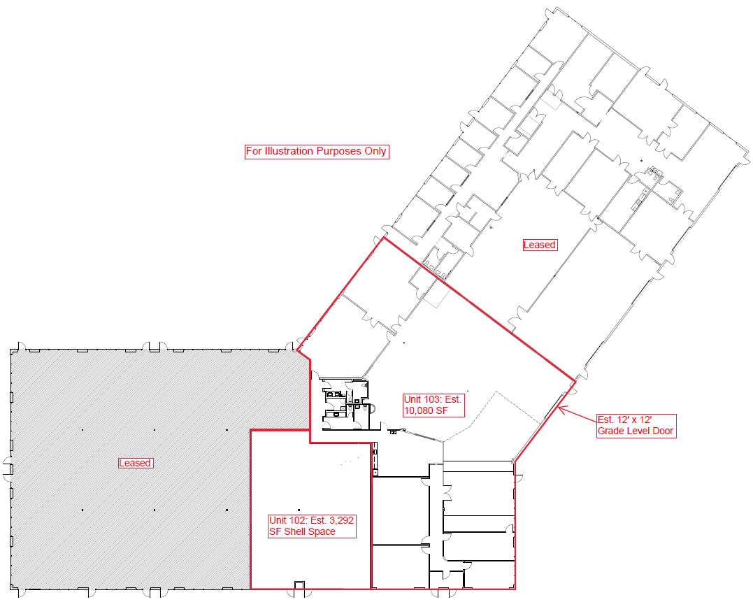
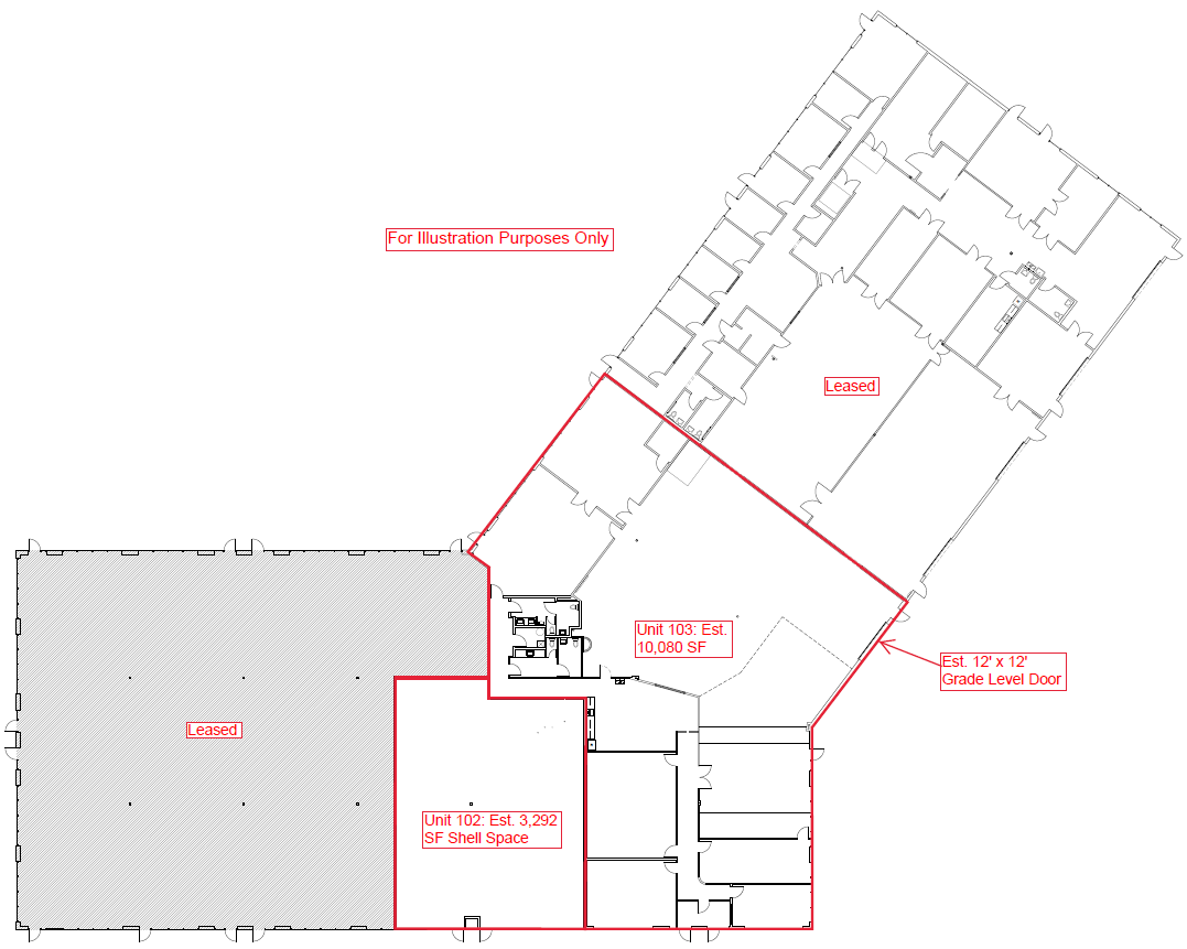
- Unit 102: 3,292 SF Shell Space. Dimensions 50' x 66' +/-. Est. 16' Clear Height.
- Units can be Leased Individually or Combined for 13,372 SF
- 108 Common Parking Spaces. Potential for Additional Parking (Call for Details)
- Unit 103: Est. 5,580 SF Office/Training Rooms + 4,500 SF Warehouse = 10,080 SF
- 103 is 100% HVAC & Fire Sprinklered. Est. 14' Drop Ceiling in Warehouse. One 12' x 12' +/- Grade Level Door
- Est. $5.15 PSF OPEX
Features
All Available Spaces(2)
Display Rental Rate as
- Space
- Size
- Term
- Rental Rate
- Space Use
- Build-Out
- Available
• Shell Space - Ready for Tenant Buildout! • Suitable for High-Tech / Office / Engineering / R&D Uses • Interior Dimensions Roughly 50' Wide x 66' Deep +/- • Concrete Floor and Exposed Ceiling Throughout • Lots of Windows/Sunlight along Northern Wall • Ceiling Height 16' +/- (Measured Floor to Bottom of Steel Truss) • Potential TI Allowance Subject to Lease Terms & Tenant Credit • Utilities: City of Melbourne Water/Sewer, FPL Electric • Estimated $5.15 PSF OPEX
- Lease rate does not include utilities, property expenses or building services
- Shell Space - Ready for Tenant Buildout!
- Concrete Floor & Exposed Ceiling Throughout
- Can be combined with additional space(s) for up to 13,372 SF of adjacent space
- Suitable for Hi-Tech / Office / Engineering / R&D
- Potential TI Allowance Subject to Tenant Credit
• Unit 103 is est. 5,580 SF Office/Storage/Training Rooms + 4,500 SF Warehouse = 10,080 SF Total. • 100% HVAC & Fire Sprinklered. Compressed Air Lines. • Warehouse Concrete Flooring and est. 14' Drop Ceiling Throughout. • One 12' x 12' +/- Grade Level Door. • City of Melbourne Water/Sewer, FPL Electric. • 108 Common Parking Spaces. Potential for Additional Parking (Call for Details). • Est. $5.15 PSF OPEX.
- Lease rate does not include utilities, property expenses or building services
- 1 Drive Bay
- Est. 5,580 SF Office/Training + 4,500 SF Warehouse
- Est. 14' to Drop Ceiling in Warehouse.
- 108 Common Parking Spaces. Potential for More
- Includes 5,580 SF of dedicated office space
- Can be combined with additional space(s) for up to 13,372 SF of adjacent space
- 100% HVAC & Fire Sprinklered. Compressed Air Lines
- One 12' x 12' +/- Grade Level Door
- Est. $5.15 PSF OPEX
| Space | Size | Term | Rental Rate | Space Use | Build-Out | Available |
| 1st Floor - 102 | 3,292 SF | Negotiable | $12.95 /SF/YR $1.08 /SF/MO $42,631 /YR $3,553 /MO | Industrial | - | Now |
| 1st Floor - 103 | 10,080 SF | Negotiable | $12.95 /SF/YR $1.08 /SF/MO $130,536 /YR $10,878 /MO | Industrial | - | 30 Days |
1st Floor - 102
| Size |
| 3,292 SF |
| Term |
| Negotiable |
| Rental Rate |
| $12.95 /SF/YR $1.08 /SF/MO $42,631 /YR $3,553 /MO |
| Space Use |
| Industrial |
| Build-Out |
| - |
| Available |
| Now |
1st Floor - 103
| Size |
| 10,080 SF |
| Term |
| Negotiable |
| Rental Rate |
| $12.95 /SF/YR $1.08 /SF/MO $130,536 /YR $10,878 /MO |
| Space Use |
| Industrial |
| Build-Out |
| - |
| Available |
| 30 Days |
1st Floor - 102
| Size | 3,292 SF |
| Term | Negotiable |
| Rental Rate | $12.95 /SF/YR |
| Space Use | Industrial |
| Build-Out | - |
| Available | Now |
• Shell Space - Ready for Tenant Buildout! • Suitable for High-Tech / Office / Engineering / R&D Uses • Interior Dimensions Roughly 50' Wide x 66' Deep +/- • Concrete Floor and Exposed Ceiling Throughout • Lots of Windows/Sunlight along Northern Wall • Ceiling Height 16' +/- (Measured Floor to Bottom of Steel Truss) • Potential TI Allowance Subject to Lease Terms & Tenant Credit • Utilities: City of Melbourne Water/Sewer, FPL Electric • Estimated $5.15 PSF OPEX
- Lease rate does not include utilities, property expenses or building services
- Can be combined with additional space(s) for up to 13,372 SF of adjacent space
- Shell Space - Ready for Tenant Buildout!
- Suitable for Hi-Tech / Office / Engineering / R&D
- Concrete Floor & Exposed Ceiling Throughout
- Potential TI Allowance Subject to Tenant Credit
1st Floor - 103
| Size | 10,080 SF |
| Term | Negotiable |
| Rental Rate | $12.95 /SF/YR |
| Space Use | Industrial |
| Build-Out | - |
| Available | 30 Days |
• Unit 103 is est. 5,580 SF Office/Storage/Training Rooms + 4,500 SF Warehouse = 10,080 SF Total. • 100% HVAC & Fire Sprinklered. Compressed Air Lines. • Warehouse Concrete Flooring and est. 14' Drop Ceiling Throughout. • One 12' x 12' +/- Grade Level Door. • City of Melbourne Water/Sewer, FPL Electric. • 108 Common Parking Spaces. Potential for Additional Parking (Call for Details). • Est. $5.15 PSF OPEX.
- Lease rate does not include utilities, property expenses or building services
- Includes 5,580 SF of dedicated office space
- 1 Drive Bay
- Can be combined with additional space(s) for up to 13,372 SF of adjacent space
- Est. 5,580 SF Office/Training + 4,500 SF Warehouse
- 100% HVAC & Fire Sprinklered. Compressed Air Lines
- Est. 14' to Drop Ceiling in Warehouse.
- One 12' x 12' +/- Grade Level Door
- 108 Common Parking Spaces. Potential for More
- Est. $5.15 PSF OPEX
Property Overview
Located in the heart of Melbourne approximately halfway between Nasa Boulevard & Hibiscus Boulevard. Easily accessible via nearby Interstate 95, US Highway 1, and US 192. Close proximity to the Melbourne International Airport, L3Harris, Northrop Grumman, and all of the other High-Tech, Engineering, and R&D employers in the area. Make this the future home for your business today!
Property Facts
Presented by
Airport Corporate Center | 1801 Penn St
Hmm, there seems to have been an error sending your message. Please try again.
Thanks! Your message was sent.






