Log In/Sign Up
Your email has been sent.
Southend Machine Building 1802 Pike St NW 24,300 SF Vacant Industrial Building Auburn, WA 98001 $6,600,000 ($271.60/SF)



INVESTMENT HIGHLIGHTS
- Ideally located just seconds from SR-167 in a cul-de-sac-style neighborhood in the heart of Auburn, and only minutes from SR-18 and I-5.
EXECUTIVE SUMMARY
Southend Machine is a rare 22,300 SF owner/ user manufacturing facility, ideally located just seconds from SR-167 in a cul-de-sac-style neighborhood in the heart of Auburn, and only minutes from SR-18 and I-5.
PROPERTY FACTS
| Price | $6,600,000 | Rentable Building Area | 24,300 SF |
| Price Per SF | $271.60 | No. Stories | 1 |
| Sale Type | Investment or Owner User | Year Built | 1989 |
| Property Type | Industrial | Parking Ratio | 1.44/1,000 SF |
| Property Subtype | Warehouse | Clear Ceiling Height | 18’ |
| Building Class | C | No. Dock-High Doors/Loading | 1 |
| Lot Size | 0.94 AC | No. Drive In / Grade-Level Doors | 6 |
| Zoning | M1, Auburn - Distribution and Light Manufacturing | ||
| Price | $6,600,000 |
| Price Per SF | $271.60 |
| Sale Type | Investment or Owner User |
| Property Type | Industrial |
| Property Subtype | Warehouse |
| Building Class | C |
| Lot Size | 0.94 AC |
| Rentable Building Area | 24,300 SF |
| No. Stories | 1 |
| Year Built | 1989 |
| Parking Ratio | 1.44/1,000 SF |
| Clear Ceiling Height | 18’ |
| No. Dock-High Doors/Loading | 1 |
| No. Drive In / Grade-Level Doors | 6 |
| Zoning | M1, Auburn - Distribution and Light Manufacturing |
UTILITIES
- Gas - Natural
- Water - City
- Sewer - City
- Heating
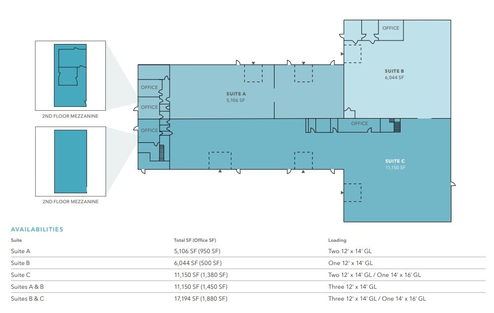
SPACE AVAILABILITY
- SPACE
- SIZE
- SPACE USE
- CONDITION
- AVAILABLE
2 GL Loading Doors
1 GL Loading Door
2 GL Loading Doors
| Space | Size | Space Use | Condition | Available |
| 1st Fl - A | 5,106 SF | Industrial | - | Now |
| 1st Fl - B | 6,044 SF | Industrial | - | Now |
| 1st Fl - C | 11,150 SF | Industrial | - | Now |
1st Fl - A
| Size |
| 5,106 SF |
| Space Use |
| Industrial |
| Condition |
| - |
| Available |
| Now |
1st Fl - B
| Size |
| 6,044 SF |
| Space Use |
| Industrial |
| Condition |
| - |
| Available |
| Now |
1st Fl - C
| Size |
| 11,150 SF |
| Space Use |
| Industrial |
| Condition |
| - |
| Available |
| Now |
1 of 1
VIDEOS
MATTERPORT 3D EXTERIOR
MATTERPORT 3D TOUR
PHOTOS
STREET VIEW
STREET
MAP
1st Fl - A
| Size | 5,106 SF |
| Space Use | Industrial |
| Condition | - |
| Available | Now |
2 GL Loading Doors
1st Fl - B
| Size | 6,044 SF |
| Space Use | Industrial |
| Condition | - |
| Available | Now |
1 GL Loading Door
1st Fl - C
| Size | 11,150 SF |
| Space Use | Industrial |
| Condition | - |
| Available | Now |
2 GL Loading Doors
1 1
PROPERTY TAXES
| Parcel Number | 030351-0130 | Improvements Assessment | $3,017,500 |
| Land Assessment | $693,100 | Total Assessment | $3,710,600 |
PROPERTY TAXES
Parcel Number
030351-0130
Land Assessment
$693,100
Improvements Assessment
$3,017,500
Total Assessment
$3,710,600
1 of 5
VIDEOS
MATTERPORT 3D EXTERIOR
MATTERPORT 3D TOUR
PHOTOS
STREET VIEW
STREET
MAP
1 of 1
Presented by
Southend Machine Building | 1802 Pike St NW
Already a member? Log In
Hmm, there seems to have been an error sending your message. Please try again.
Thanks! Your message was sent.


