Your email has been sent.
Orange Freeway Business Park 181 W Orangethorpe Ave 5,004 - 15,582 SF of Flex Space Available in Placentia, CA 92870



Highlights
- Insulated warehouse units with grade-level truck door and skylights
- Proximity to local universities, transportation and entertainment
- Immediate freeway access and visibility on Orangethorpe Avenue
Features
All Available Spaces(3)
Display Rental Rate as
- Space
- Size
- Term
- Rental Rate
- Space Use
- Build-Out
- Available
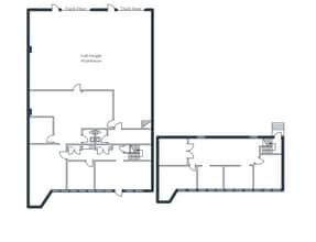
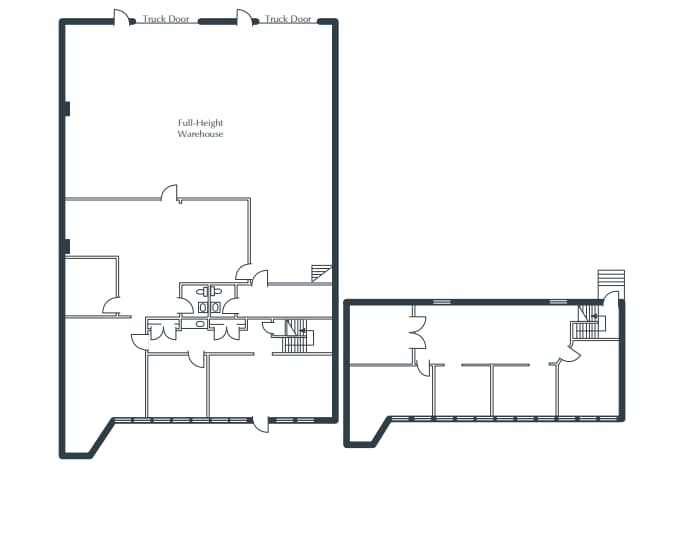
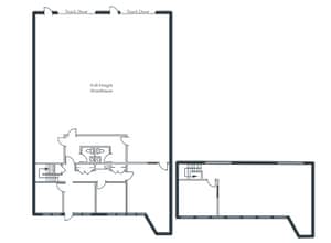
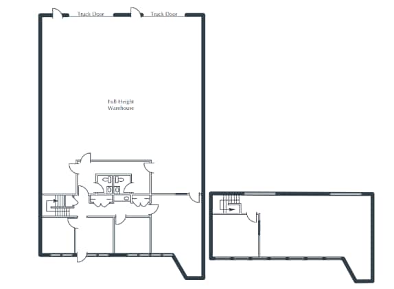
Reception - 5 Window Offices - 2 Interior Offices - 2 Restrooms - Truck Door- Coffee Bar - Phone Room - 3 Storage Closets - Large Open Work Area - 2 Ground-Level Truck Doors - Approximately 2,450 sq. ft. of Full-Height Warehouse - Part of a Professionally Managed Business Park
- Lease rate does not include utilities, property expenses or building services
- Reception Area
- 5 Window Offices - 2 Interior Offices
- 3 Storage Closets
- Includes 2,958 SF of dedicated office space
- Private Restrooms
- 2 Restrooms
Reception - 4 Window Offices - Interior Office - Conference Room - 2 Restrooms - Coffee Bar - Large Open Work Area - 2 Ground-Level Truck Doors - Approximately 1,920 sq. ft. of Full-Height Warehouse - Part of a Professionally Managed Business Park
- Lease rate does not include utilities, property expenses or building services
- Reception Area
- Coffee Bar
- Includes 3,084 SF of dedicated office space
- Private Restrooms
- 2 Ground-Level Truck Doors
Reception - 4 Window Offices - Interior Office - 2 Restrooms - Coffee Bar - 2 Storage Closets - Large Open Work Area - 2 Ground-Level Truck Doors - Approximately 2,000 sq. ft. of Full-Height Warehouse - Part of a Professionally Managed Business Park
- Lease rate does not include utilities, property expenses or building services
- Reception Area
- 2 Storage Closets
- 2 Ground-Level Truck Doors
- Includes 3,170 SF of dedicated office space
- Private Restrooms
- Large Open Work Area
| Space | Size | Term | Rental Rate | Space Use | Build-Out | Available |
| 1st Floor - A | 5,408 SF | 3 Years | $15.48 /SF/YR $1.29 /SF/MO $83,716 /YR $6,976 /MO | Flex | Full Build-Out | Now |
| 1st Floor - C | 5,004 SF | 3 Years | $15.48 /SF/YR $1.29 /SF/MO $77,462 /YR $6,455 /MO | Flex | - | July 01, 2026 |
| 1st Floor - D | 5,170 SF | 3 Years | $15.48 /SF/YR $1.29 /SF/MO $80,032 /YR $6,669 /MO | Flex | - | Now |
1st Floor - A
| Size |
| 5,408 SF |
| Term |
| 3 Years |
| Rental Rate |
| $15.48 /SF/YR $1.29 /SF/MO $83,716 /YR $6,976 /MO |
| Space Use |
| Flex |
| Build-Out |
| Full Build-Out |
| Available |
| Now |
1st Floor - C
| Size |
| 5,004 SF |
| Term |
| 3 Years |
| Rental Rate |
| $15.48 /SF/YR $1.29 /SF/MO $77,462 /YR $6,455 /MO |
| Space Use |
| Flex |
| Build-Out |
| - |
| Available |
| July 01, 2026 |
1st Floor - D
| Size |
| 5,170 SF |
| Term |
| 3 Years |
| Rental Rate |
| $15.48 /SF/YR $1.29 /SF/MO $80,032 /YR $6,669 /MO |
| Space Use |
| Flex |
| Build-Out |
| - |
| Available |
| Now |
1st Floor - A
| Size | 5,408 SF |
| Term | 3 Years |
| Rental Rate | $15.48 /SF/YR |
| Space Use | Flex |
| Build-Out | Full Build-Out |
| Available | Now |
Reception - 5 Window Offices - 2 Interior Offices - 2 Restrooms - Truck Door- Coffee Bar - Phone Room - 3 Storage Closets - Large Open Work Area - 2 Ground-Level Truck Doors - Approximately 2,450 sq. ft. of Full-Height Warehouse - Part of a Professionally Managed Business Park
- Lease rate does not include utilities, property expenses or building services
- Includes 2,958 SF of dedicated office space
- Reception Area
- Private Restrooms
- 5 Window Offices - 2 Interior Offices
- 2 Restrooms
- 3 Storage Closets
1st Floor - C
| Size | 5,004 SF |
| Term | 3 Years |
| Rental Rate | $15.48 /SF/YR |
| Space Use | Flex |
| Build-Out | - |
| Available | July 01, 2026 |
Reception - 4 Window Offices - Interior Office - Conference Room - 2 Restrooms - Coffee Bar - Large Open Work Area - 2 Ground-Level Truck Doors - Approximately 1,920 sq. ft. of Full-Height Warehouse - Part of a Professionally Managed Business Park
- Lease rate does not include utilities, property expenses or building services
- Includes 3,084 SF of dedicated office space
- Reception Area
- Private Restrooms
- Coffee Bar
- 2 Ground-Level Truck Doors
1st Floor - D
| Size | 5,170 SF |
| Term | 3 Years |
| Rental Rate | $15.48 /SF/YR |
| Space Use | Flex |
| Build-Out | - |
| Available | Now |
Reception - 4 Window Offices - Interior Office - 2 Restrooms - Coffee Bar - 2 Storage Closets - Large Open Work Area - 2 Ground-Level Truck Doors - Approximately 2,000 sq. ft. of Full-Height Warehouse - Part of a Professionally Managed Business Park
- Lease rate does not include utilities, property expenses or building services
- Includes 3,170 SF of dedicated office space
- Reception Area
- Private Restrooms
- 2 Storage Closets
- Large Open Work Area
- 2 Ground-Level Truck Doors
Property Overview
Orange Freeway Business Park is a 14 building diversified development consisting of 63 office/flex units totaling 186,500 square feet. The property offers great street visibility, plentiful parking and floor plans that are designed for maximum efficiency with space ranging from 1,940 square feet to a 13,811 square feet freestanding building. Features include extensive window lines, separately controlled HVAC, high-speed internet; private restroom(s), 10’x12’ truck door(s), 18’ clearance, yard storage, upscale interior finishes and some units have exterior truck wells. Orange Freeway Business Park is strategically located in North Orange County with excellent access to the 57, 91 and 5 freeways.
Property Facts
Presented by
Orange Freeway Business Park | 181 W Orangethorpe Ave
Hmm, there seems to have been an error sending your message. Please try again.
Thanks! Your message was sent.






