1840 Pickwick Ave | Glenview, IL 60026
This feature is unavailable at the moment.
We apologize, but the feature you are trying to access is currently unavailable. We are aware of this issue and our team is working hard to resolve the matter.
Please check back in a few minutes. We apologize for the inconvenience.
- LoopNet Team
This Industrial Property is no longer advertised on LoopNet.com.
1840 Pickwick Ave
Glenview, IL 60026
Industrial Property For Sale

PROPERTY FACTS
| Property Type | Industrial | Year Built/Renovated | 1965/2015 |
| Property Subtype | Warehouse | Parking Ratio | 2.64/1,000 SF |
| Building Class | B | Clear Ceiling Height | 10’6” |
| Lot Size | 0.85 AC | No. Dock-High Doors/Loading | 1 |
| Rentable Building Area | 15,129 SF | No. Drive In / Grade-Level Doors | 1 |
| No. Stories | 1 | ||
| Zoning | I - Industrial | ||
| Property Type | Industrial |
| Property Subtype | Warehouse |
| Building Class | B |
| Lot Size | 0.85 AC |
| Rentable Building Area | 15,129 SF |
| No. Stories | 1 |
| Year Built/Renovated | 1965/2015 |
| Parking Ratio | 2.64/1,000 SF |
| Clear Ceiling Height | 10’6” |
| No. Dock-High Doors/Loading | 1 |
| No. Drive In / Grade-Level Doors | 1 |
| Zoning | I - Industrial |
AMENITIES
- Signage
- Storage Space
- Air Conditioning
- Smoke Detector
UTILITIES
- Heating - Gas
ABOUT 1840 PICKWICK AVE , GLENVIEW, IL 60026
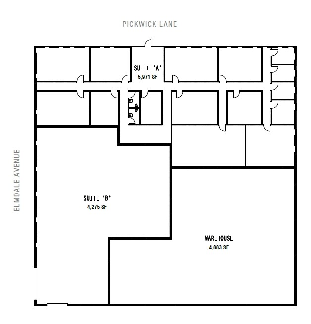
This property features an interior build out of about 50% of the building is office space and the other 50% is warehouse space. In 2015, the property had many updates including flooring and office space.
PROPERTY TAXES
| Parcel Number | 04-28-200-019-0000 | Improvements Assessment | $188,876 |
| Land Assessment | $75,544 | Total Assessment | $264,420 |
PROPERTY TAXES
Parcel Number
04-28-200-019-0000
Land Assessment
$75,544
Improvements Assessment
$188,876
Total Assessment
$264,420
Listing ID: 6962372
Date on Market: 4/27/2017
Last Updated:
Address: 1840 Pickwick Ave, Glenview, IL 60026
The Industrial Property at 1840 Pickwick Ave, Glenview, IL 60026 is no longer being advertised on LoopNet.com. Contact the broker for information on availability.
INDUSTRIAL PROPERTIES IN NEARBY NEIGHBORHOODS
NEARBY LISTINGS
- 600 Waukegan Rd, Northbrook IL
- 610-642 Anthony Trl, Northbrook IL
- 425 Huehl Rd, Northbrook IL
- 1765 Busse Hwy, Des Plaines IL
- 2230-2232 S Foster Ave, Wheeling IL
- 250-252 Chaddick Dr, Wheeling IL
- 852 Feehanville Dr, Mount Prospect IL
- 851 Feehanville Dr, Mount Prospect IL
- 8150 Lehigh Ave, Morton Grove IL
- 1628 Rand Rd, Des Plaines IL
- 301-363 N Third Ave, Des Plaines IL
- 717-727 1st Ave, Des Plaines IL
- 1031 S Noel Ave, Wheeling IL
- 8130 River Dr, Morton Grove IL
- 441 N 3rd Ave, Des Plaines IL
1 of 1
VIDEOS
MATTERPORT 3D EXTERIOR
MATTERPORT 3D TOUR
PHOTOS
STREET VIEW
STREET
MAP

Link copied
Your LoopNet account has been created!
Thank you for your feedback.
Please Share Your Feedback
We welcome any feedback on how we can improve LoopNet to better serve your needs.X
{{ getErrorText(feedbackForm.starRating, "rating") }}
255 character limit ({{ remainingChars() }} charactercharacters remainingover)
{{ getErrorText(feedbackForm.msg, "rating") }}
{{ getErrorText(feedbackForm.fname, "first name") }}
{{ getErrorText(feedbackForm.lname, "last name") }}
{{ getErrorText(feedbackForm.phone, "phone number") }}
{{ getErrorText(feedbackForm.phonex, "phone extension") }}
{{ getErrorText(feedbackForm.email, "email address") }}
You can provide feedback any time using the Help button at the top of the page.