Your email has been sent.
185 York St - 185 York Street 0.07 Acres of Commercial Land Offered at $550,501 USD in Ottawa, ON K1N 5T7



Investment Highlights
- Prime Location in Ottawa's Byward Market
- Steps to Rideau Center, LRT Station, Ottawa University, Restaurants
- Part of Ottawa's ByWard Market Public Realm Plan
- Permitted uses include low-rise, mid-rise, and high-rise apartment dwellings
Executive Summary
Property Facts Under Contract
1 Lot Available
Lot
| Price | $550,501 USD | Lot Size | 0.07 AC |
| Price Per AC | $7,472,626.46 USD |
| Price | $550,501 USD |
| Price Per AC | $7,472,626.46 USD |
| Lot Size | 0.07 AC |
Missing Middle development lot permitting low- to high-rise residential and limited ground-floor commercial uses (e.g., retail, office, cafe) within mixed-use buildings.
Description
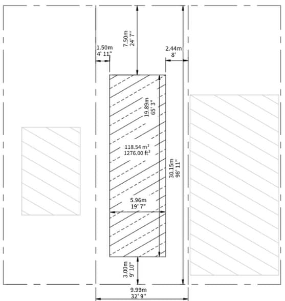
Prime development site in Ottawa's ByWard Market. 185 York Street offers exceptional zoning flexibility with current R5S S77 zoning and future N6B S77 designation under Ottawa's New Zoning By-law. Permitted uses include low-rise, mid-rise, and high-rise apartment dwellings, with the ability to build up to 6 storeys (21.4 m height) by-right. A clean Phase 1 Environmental Site Assessment from 2022 is on file. Previously approved minor variances for lot width and area help streamline development without the need for public consultation. The property measures approximately 33 x 99 feet (3,209 sq ft). Ideally located steps to the Rideau Centre, University of Ottawa, Parliament Hill, O-Train station, and the ByWard Market, this site is well suited for boutique urban residential projects, purpose-built rentals, or luxury multi-unit development. Ground-floor commercial uses are permitted, including retail, office, or café-style activation, making it attractive for mixed-use development. Situated on York Street, slated for transformation into a pedestrian-priority shared promenade between 2025 and 2027 as part of the ByWard Market Public Realm Plan, the property offers strong exposure and long-term upside. No demolition required, providing immediate time and cost savings. Buyers to complete their own due diligence regarding development potential, building code compliance, and site planning. A rare opportunity to secure a premium lot in one of Ottawa's most vibrant downtown locations.
Presented by
185 York St - 185 York Street
Hmm, there seems to have been an error sending your message. Please try again.
Thanks! Your message was sent.
