Log In/Sign Up
Your email has been sent.
Highlights
- Building renovations underway
- Building signage available
- 53,000 vehicles per day
- Prime highway visibility on I-44
- Monument signage available
- Immediate proximity to Fenton Logistic Park
All Available Spaces(2)
Display Rental Rate as
- Space
- Size
- Term
- Rental Rate
- Space Use
- Build-Out
- Available
- Rate includes utilities, building services and property expenses
- Fits 8 - 71 People
- Fully Built-Out as Standard Office
- Space is in Excellent Condition
- Rate includes utilities, building services and property expenses
- Fits 7 - 22 People
| Space | Size | Term | Rental Rate | Space Use | Build-Out | Available |
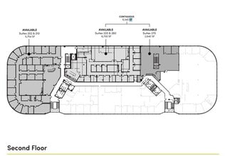
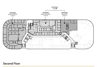
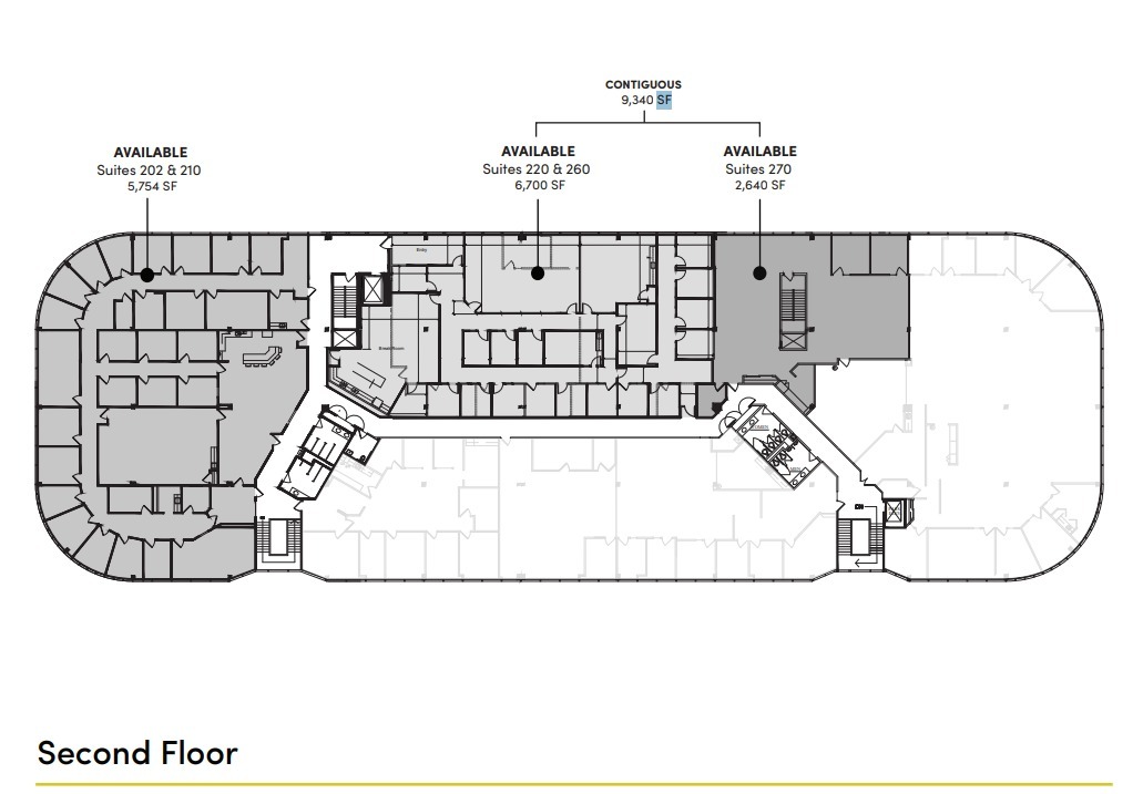
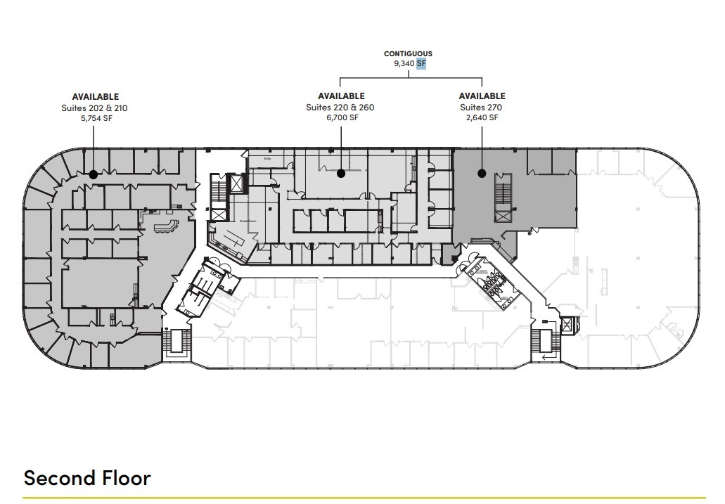
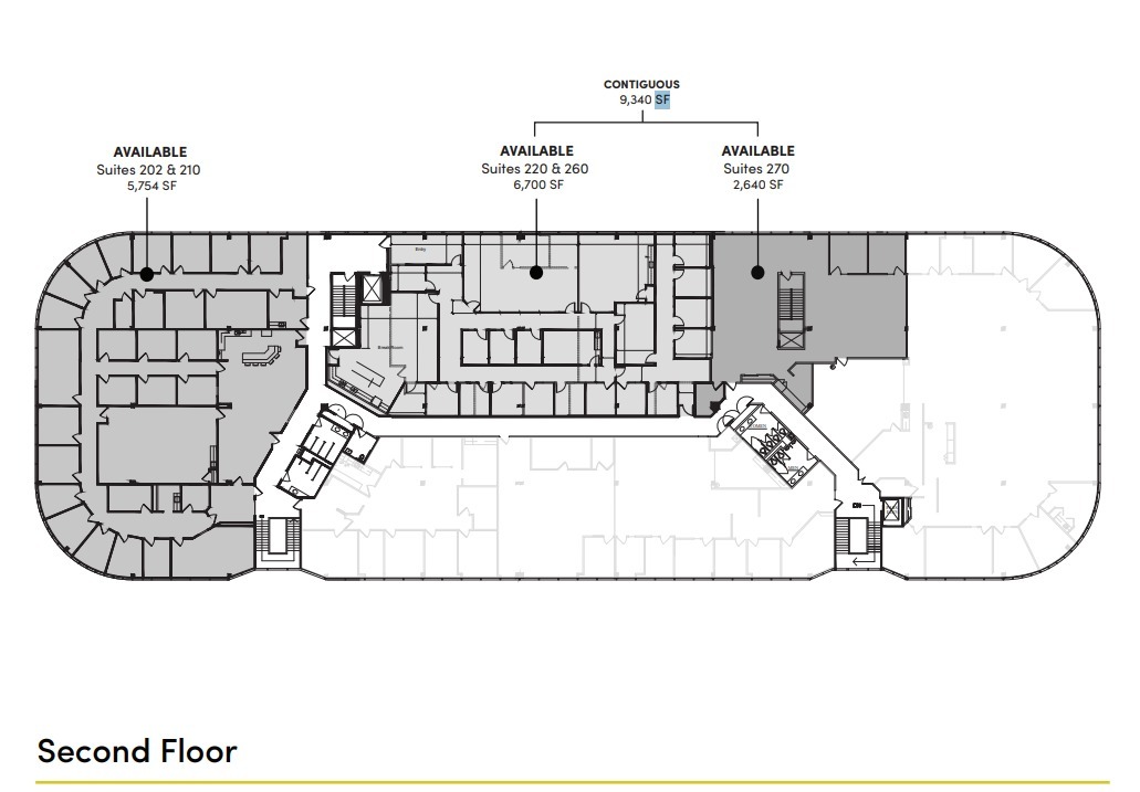
| 2nd Floor, Ste 202 & 210 | 3,000-8,754 SF | Negotiable | $20.00 /SF/YR $1.67 /SF/MO $175,080 /YR $14,590 /MO | Office | Full Build-Out | 30 Days |
| 2nd Floor, Ste 270 | 2,640 SF | Negotiable | $20.00 /SF/YR $1.67 /SF/MO $52,800 /YR $4,400 /MO | Office | - | Now |
2nd Floor, Ste 202 & 210
| Size |
| 3,000-8,754 SF |
| Term |
| Negotiable |
| Rental Rate |
| $20.00 /SF/YR $1.67 /SF/MO $175,080 /YR $14,590 /MO |
| Space Use |
| Office |
| Build-Out |
| Full Build-Out |
| Available |
| 30 Days |
2nd Floor, Ste 270
| Size |
| 2,640 SF |
| Term |
| Negotiable |
| Rental Rate |
| $20.00 /SF/YR $1.67 /SF/MO $52,800 /YR $4,400 /MO |
| Space Use |
| Office |
| Build-Out |
| - |
| Available |
| Now |
1 of 1
Videos
Matterport 3D Exterior
Matterport 3D Tour
Photos
Street View
Street
Map
2nd Floor, Ste 202 & 210
| Size | 3,000-8,754 SF |
| Term | Negotiable |
| Rental Rate | $20.00 /SF/YR |
| Space Use | Office |
| Build-Out | Full Build-Out |
| Available | 30 Days |
- Rate includes utilities, building services and property expenses
- Fully Built-Out as Standard Office
- Fits 8 - 71 People
- Space is in Excellent Condition
1 of 1
Videos
Matterport 3D Exterior
Matterport 3D Tour
Photos
Street View
Street
Map
2nd Floor, Ste 270
| Size | 2,640 SF |
| Term | Negotiable |
| Rental Rate | $20.00 /SF/YR |
| Space Use | Office |
| Build-Out | - |
| Available | Now |
- Rate includes utilities, building services and property expenses
- Fits 7 - 22 People
Property Overview
Building renovations underway. Prime highway visibility on I-44. Building signage available. Monument signage available. 53,000 vehicles per day. Fiber optic internet served. Dock loading. 4:1,000 parking ratio. Immediate proximity to Fenton Logistic Park
- Restaurant
- Security System
- Signage
Property Facts
Building Type
Office
Year Built
1984
Building Height
2 Stories
Building Size
65,320 SF
Building Class
B
Typical Floor Size
32,660 SF
Unfinished Ceiling Height
8’
Parking
248 Surface Parking Spaces
Surface Tandem Parking
Covered Parking
Covered Tandem Parking
Reserved Parking
1 1
Fairly walkable
40/100
Exceptionally drivable
100/100
Fairly bikeable
40/100
1 of 3
Videos
Matterport 3D Exterior
Matterport 3D Tour
Photos
Street View
Street
Map
1 of 1
Presented by
Intertech Bldg | 1855-1859 Bowles Ave
Already a member? Log In
Hmm, there seems to have been an error sending your message. Please try again.
Thanks! Your message was sent.






