Your email has been sent.
Highlights
- Located at the Langley/Surrey border with access to Highway 15 and Fraser Highway
- Two-story office component with private office and open plan
- Professionally managed complex with site security and shared waste facilities
- Three grade-level doors and dock loading for flexible logistics
- Durable concrete tilt-up construction with 3-phase power and overhead heaters
Features
All Available Spaces(3)
Display Rental Rate as
- Space
- Size
- Term
- Rental Rate
- Space Use
- Build-Out
- Available
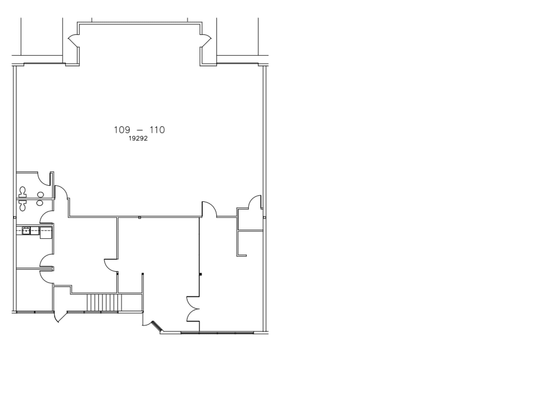
This 3,927 square foot warehouse unit has multiple office areas/showroom, a kitchen, 2 washrooms and 2 grade overhead doors. Come join Willowbrook Business Centre today!
- Lease rate does not include utilities, property expenses or building services
- Fits 16 - 49 People
- 3 Drive Ins
Wide open 6,124 sq. ft. warehouse with dock and 3 grade doors. 2 story office component with 2 washrooms, one private office and the rest open plan, in a well managed, clean industrial complex at the Langley/Surrey border. Hurry, this one will go fast!
- Lease rate does not include utilities, property expenses or building services
- 3 Drive Ins
- Includes 1,661 SF of dedicated office space
- Fits 16 - 49 People
This 2,087 sq. ft. warehouse unit features an office/reception area on the first floor and 2 offices (840 sq. ft.). The warehouse (1,247 sq. ft.) has a grade level door. Additionally, there is an open mezzanine (840 sq. ft.) with plumbing for a sink. Room may be available on the pylon sign. Come join the Willowbrook Business Centre today!
- Lease rate does not include utilities, property expenses or building services
- 1 Drive Bay
- Includes 840 SF of dedicated office space
- Fits 6 - 17 People
| Space | Size | Term | Rental Rate | Space Use | Build-Out | Available |
| 1st Floor - 109-110 | 3,927 SF | 1-10 Years | $15.46 USD/SF/YR $1.29 USD/SF/MO $60,692 USD/YR $5,058 USD/MO | Industrial | Full Build-Out | Now |
| 1st Floor - 305-307 | 6,124 SF | 1-10 Years | $14.72 USD/SF/YR $1.23 USD/SF/MO $90,140 USD/YR $7,512 USD/MO | Industrial | Full Build-Out | Now |
| 1st Floor - 314 | 2,087 SF | 1-10 Years | $15.46 USD/SF/YR $1.29 USD/SF/MO $32,255 USD/YR $2,688 USD/MO | Industrial | Full Build-Out | Now |
1st Floor - 109-110
| Size |
| 3,927 SF |
| Term |
| 1-10 Years |
| Rental Rate |
| $15.46 USD/SF/YR $1.29 USD/SF/MO $60,692 USD/YR $5,058 USD/MO |
| Space Use |
| Industrial |
| Build-Out |
| Full Build-Out |
| Available |
| Now |
1st Floor - 305-307
| Size |
| 6,124 SF |
| Term |
| 1-10 Years |
| Rental Rate |
| $14.72 USD/SF/YR $1.23 USD/SF/MO $90,140 USD/YR $7,512 USD/MO |
| Space Use |
| Industrial |
| Build-Out |
| Full Build-Out |
| Available |
| Now |
1st Floor - 314
| Size |
| 2,087 SF |
| Term |
| 1-10 Years |
| Rental Rate |
| $15.46 USD/SF/YR $1.29 USD/SF/MO $32,255 USD/YR $2,688 USD/MO |
| Space Use |
| Industrial |
| Build-Out |
| Full Build-Out |
| Available |
| Now |
1st Floor - 109-110
| Size | 3,927 SF |
| Term | 1-10 Years |
| Rental Rate | $15.46 USD/SF/YR |
| Space Use | Industrial |
| Build-Out | Full Build-Out |
| Available | Now |
This 3,927 square foot warehouse unit has multiple office areas/showroom, a kitchen, 2 washrooms and 2 grade overhead doors. Come join Willowbrook Business Centre today!
- Lease rate does not include utilities, property expenses or building services
- 3 Drive Ins
- Fits 16 - 49 People
1st Floor - 305-307
| Size | 6,124 SF |
| Term | 1-10 Years |
| Rental Rate | $14.72 USD/SF/YR |
| Space Use | Industrial |
| Build-Out | Full Build-Out |
| Available | Now |
Wide open 6,124 sq. ft. warehouse with dock and 3 grade doors. 2 story office component with 2 washrooms, one private office and the rest open plan, in a well managed, clean industrial complex at the Langley/Surrey border. Hurry, this one will go fast!
- Lease rate does not include utilities, property expenses or building services
- Includes 1,661 SF of dedicated office space
- 3 Drive Ins
- Fits 16 - 49 People
1st Floor - 314
| Size | 2,087 SF |
| Term | 1-10 Years |
| Rental Rate | $15.46 USD/SF/YR |
| Space Use | Industrial |
| Build-Out | Full Build-Out |
| Available | Now |
This 2,087 sq. ft. warehouse unit features an office/reception area on the first floor and 2 offices (840 sq. ft.). The warehouse (1,247 sq. ft.) has a grade level door. Additionally, there is an open mezzanine (840 sq. ft.) with plumbing for a sink. Room may be available on the pylon sign. Come join the Willowbrook Business Centre today!
- Lease rate does not include utilities, property expenses or building services
- Includes 840 SF of dedicated office space
- 1 Drive Bay
- Fits 6 - 17 People
Property Overview
Constructed with durable concrete tilt-up design, the facility is equipped with 3-phase power, overhead heaters in the warehouse, site security, and a common garbage compactor. Ample on-site parking supports both staff and logistics needs. The CD zoning allows for a range of industrial and commercial uses, making this space suitable for distribution, light manufacturing, or hybrid office-warehouse operations. Located near Cloverdale and Langley City retail amenities, the property offers quick access to 192nd Street, Highway 15, Highway 10/Langley Bypass, 200th Street, and Fraser Highway. This strategic location ensures connectivity across the Lower Mainland and positions tenants for operational efficiency and visibility
Warehouse Facility Facts
Presented by
19292 60th Ave
Hmm, there seems to have been an error sending your message. Please try again.
Thanks! Your message was sent.











