Your email has been sent.
Park Highlights
- Situated at 19707–19845 Cabot Blvd, Hayward, CA 94544, with easy access to major highways and business amenities
- Ability to expand within business park
- All units feature new carpet, LVT flooring, fresh paint, and LED lighting
- Call brokers for more information
Park Facts
| Total Space Available | 11,565 SF | Cross Streets | W Winton Ave |
| Park Type | Industrial Park |
| Total Space Available | 11,565 SF |
| Park Type | Industrial Park |
| Cross Streets | W Winton Ave |
Display Rental Rate as
- Space
- Size
- Term
- Rental Rate
- Space Use
- Build-Out
- Available
Suite 19723 spans 3,493 square feet with 973 square feet of office space. It includes a private office and an open area, providing a functional layout for light industrial or distribution use. The suite is equipped with one grade-level door and has been updated with modern finishes. Like the others, it features new flooring, paint, and lighting. This unit is also available now for immediate occupancy.
- Includes 973 SF of dedicated office space
- Private Restrooms
- Tenants have the ability to expand in the future
- 1 Drive Bay
- 200 Amps of Power (To be verified by Tenant)
| Space | Size | Term | Rental Rate | Space Use | Build-Out | Available |
| 1st Floor - 19723 | 3,493 SF | Negotiable | Upon Request Upon Request Upon Request Upon Request | Industrial | Partial Build-Out | 30 Days |
19707-19743 Cabot Blvd - 1st Floor - 19723
- Space
- Size
- Term
- Rental Rate
- Space Use
- Build-Out
- Available
Suite 19723 spans 3,493 square feet with 973 square feet of office space. It includes a private office and an open area, providing a functional layout for light industrial or distribution use. The suite is equipped with one grade-level door and has been updated with modern finishes. Like the others, it features new flooring, paint, and lighting. This unit is also available now for immediate occupancy.
- Includes 973 SF of dedicated office space
- Private Restrooms
- Tenants have the ability to expand in the future
- 1 Drive Bay
- 200 Amps of Power (To be verified by Tenant)
| Space | Size | Term | Rental Rate | Space Use | Build-Out | Available |
| 1st Floor - 19723 | 3,493 SF | Negotiable | Upon Request Upon Request Upon Request Upon Request | Industrial | Partial Build-Out | 30 Days |
19707-19743 Cabot Blvd - 1st Floor - 19723
- Space
- Size
- Term
- Rental Rate
- Space Use
- Build-Out
- Available
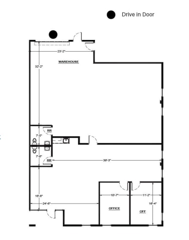
This unit features approximately 4,590 square feet, comprised of 3,348 square feet of warehouse space and 1,095 square feet of office area. It offers one drive-in door and is contiguous with Suite 19813, making it possible to combine both suites for a larger footprint. The space boasts a 14-foot clear height, 200-amp electrical service (to be verified by the tenant), and the opportunity to expand within the business park, providing a unique solution for growing companies.
- Includes 1,095 SF of dedicated office space
- Private Restrooms
- Tenants have the ability to expand in the future
- 1 Drive Bay
- 200 Amps of Power (To be verified by Tenant)
Suite 19833 offers 3,482 square feet of space, including 420 square feet of office area. It features a reception area and one grade-level door, making it ideal for businesses that require a welcoming front office and functional warehouse space. The suite will be available on February 1, 2026. It has been updated with new finishes and is part of a professionally managed industrial park. This unit is a strong fit for companies seeking a compact yet efficient layout.
- Includes 420 SF of dedicated office space
- High Ceilings
- Tenants have the ability to expand in the future
- 1 Drive Bay
- 200 Amps of Power (To be verified by Tenant)
| Space | Size | Term | Rental Rate | Space Use | Build-Out | Available |
| 1st Floor - 19821 | 4,590 SF | Negotiable | Upon Request Upon Request Upon Request Upon Request | Flex | Partial Build-Out | 30 Days |
| 1st Floor - 19833 | 3,482 SF | Negotiable | Upon Request Upon Request Upon Request Upon Request | Flex | Partial Build-Out | 30 Days |
19809-19845 Cabot Blvd - 1st Floor - 19821
19809-19845 Cabot Blvd - 1st Floor - 19833
19707-19743 Cabot Blvd - 1st Floor - 19723
| Size | 3,493 SF |
| Term | Negotiable |
| Rental Rate | Upon Request |
| Space Use | Industrial |
| Build-Out | Partial Build-Out |
| Available | 30 Days |
Suite 19723 spans 3,493 square feet with 973 square feet of office space. It includes a private office and an open area, providing a functional layout for light industrial or distribution use. The suite is equipped with one grade-level door and has been updated with modern finishes. Like the others, it features new flooring, paint, and lighting. This unit is also available now for immediate occupancy.
- Includes 973 SF of dedicated office space
- 1 Drive Bay
- Private Restrooms
- 200 Amps of Power (To be verified by Tenant)
- Tenants have the ability to expand in the future
19809-19845 Cabot Blvd - 1st Floor - 19821
| Size | 4,590 SF |
| Term | Negotiable |
| Rental Rate | Upon Request |
| Space Use | Flex |
| Build-Out | Partial Build-Out |
| Available | 30 Days |
This unit features approximately 4,590 square feet, comprised of 3,348 square feet of warehouse space and 1,095 square feet of office area. It offers one drive-in door and is contiguous with Suite 19813, making it possible to combine both suites for a larger footprint. The space boasts a 14-foot clear height, 200-amp electrical service (to be verified by the tenant), and the opportunity to expand within the business park, providing a unique solution for growing companies.
- Includes 1,095 SF of dedicated office space
- 1 Drive Bay
- Private Restrooms
- 200 Amps of Power (To be verified by Tenant)
- Tenants have the ability to expand in the future
19809-19845 Cabot Blvd - 1st Floor - 19833
| Size | 3,482 SF |
| Term | Negotiable |
| Rental Rate | Upon Request |
| Space Use | Flex |
| Build-Out | Partial Build-Out |
| Available | 30 Days |
Suite 19833 offers 3,482 square feet of space, including 420 square feet of office area. It features a reception area and one grade-level door, making it ideal for businesses that require a welcoming front office and functional warehouse space. The suite will be available on February 1, 2026. It has been updated with new finishes and is part of a professionally managed industrial park. This unit is a strong fit for companies seeking a compact yet efficient layout.
- Includes 420 SF of dedicated office space
- 1 Drive Bay
- High Ceilings
- 200 Amps of Power (To be verified by Tenant)
- Tenants have the ability to expand in the future
Select Tenants at This Property
- Floor
- Tenant Name
- Industry
- 1st
- Buena Vista Construction
- -
- 1st
- California Emergency Service
- Public Administration
- 1st
- Fred Turner Co
- Wholesaler
- 1st
- Golden Gate Food Service LLC
- Retailer
- 1st
- J H Bryant Jr Inc
- Construction
- 1st
- Legacy Transmissions
- Services
- 1st
- SGS North America, Inc.
- Professional, Scientific, and Technical Services
- 1st
- Stommel
- -
- Unknown
- Tire Distributor Xperts
- Wholesaler
Park Overview
North Cabot Industrial Park is a newly improved, light industrial complex located at 19707–19845 Cabot Blvd, Hayward, CA 94544. The park offers move-in ready suites with modern finishes, flexible warehouse and office configurations, and efficient loading options. Tenants benefit from new landscaping, upgraded safety features, and the ability to expand within the park. The property is professionally managed by Lee & Associates Oakland Commercial Real Estate, Inc. Call listing brokers for more information about pricing today!
Presented by
NORTH CABOT INDUSTRIAL PARK | Hayward, CA 94545
Hmm, there seems to have been an error sending your message. Please try again.
Thanks! Your message was sent.










