Enter your email to login or create a free account
This feature is unavailable at the moment.
We apologize, but the feature you are trying to access is currently unavailable. We are aware of this issue and our team is working hard to resolve the matter.
Please check back in a few minutes. We apologize for the inconvenience.
- LoopNet Team
19808 33rd Ave
Flushing, NY 11358
Property For Lease

Property Overview
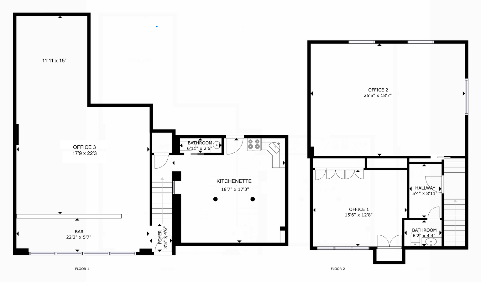
198-08 33rd Ave Flushing/Bayside Prime Commercial Flexable Office Space for Lease located at Francis Lewis Blvd @ 33rd Ave Flushing around the corner (basement,1st.floor and 2nd floor).Approx. 1636 SF Duplex Office and can be divided into three or two offices.First Floor(Office3) is approx 888 SF with kitchenette and halfBath, second floor is approx 748 SF (271 SF-Office1 and 477 SF-Office2) with bathroom.Modern Office Spaces has many amenities Including Conference Room, Kitchenette, HVAC, Furnished And More. First Level can Be Modified With A Roll up Gate To Accommodate Vehicle Parking. good for physical therapy, doggy care, learning center, Yoga/Health Studio, Wellness Studio, Accounting, Law Office, mortgage corp., architect, engineers, expeditors, ......Lease Terms Negotiable and flexable. Close to all.
- Skylights
- Kitchen
- Central Heating
- High Ceilings
- Partitioned Offices
- Air Conditioning
Property Facts
Links
Listing ID: 28770914
Date on Market: 6/16/2023
Last Updated:
Address: 19808 33rd Ave, Flushing, NY 11358
The Office Property at 19808 33rd Ave, Flushing, NY 11358 is no longer being advertised on LoopNet.com. Contact the broker for information on availability.
OFFICE PROPERTIES IN NEARBY NEIGHBORHOODS
- Williamsburg Commercial Real Estate Properties
- Midtown East Commercial Real Estate Properties
- Southeast Queens Commercial Real Estate Properties
- Central Queens Commercial Real Estate Properties
- Bushwick Commercial Real Estate Properties
- South Bronx Commercial Real Estate Properties
- Northeast Queens Commercial Real Estate Properties
- Northwestern Queens Commercial Real Estate Properties
- Central Nassau Commercial Real Estate Properties
- Western Nassau Commercial Real Estate Properties
- Upper East Side Commercial Real Estate Properties
- West Bronx Commercial Real Estate Properties
- Harlem Commercial Real Estate Properties
- East New York Commercial Real Estate Properties
- East Harlem Commercial Real Estate Properties
NEARBY LISTINGS
- 184-10-184-60 Jamaica Ave, Jamaica NY
- 3 Grace Ave, Great Neck NY
- 136-18 39th Ave, Flushing NY
- 60-15 Little Neck Pky, Little Neck NY
- 1010 Northern Blvd, Great Neck NY
- 136-17 39th Ave, Flushing NY
- 40-16 National St, Corona NY
- 98 Cuttermill Rd, Great Neck NY
- 17 Maple Dr, Great Neck NY
- 1836 127th St, College Point NY
- 13338 41st Ave, Flushing NY
- 104-03 180th St, Jamaica NY
- 3618-3620 E Tremont Ave, Bronx NY
- 247-38 Jericho Turnpike, Floral Park NY
- 14712 Roosevelt Ave, Flushing NY
