Your email has been sent.
Peabody Corporate Center 1R Newbury St 80 - 6,000 SF of Office Space Available in Peabody, MA 01960



HIGHLIGHTS
- Prime Route 1 visibility with 100,000+ cars daily
- Flexible open floor plan build-to-suit opportunity
- Surrounded by national retailers, restaurants
- Immediate highway access (I-95 & Route 128)
- Ample on-site parking for customers and staff
- Ideal for retail, office, medical, showroom & more
ALL AVAILABLE SPACES(2)
Display Rental Rate as
- SPACE
- SIZE
- TERM
- RENTAL RATE
- SPACE USE
- CONDITION
- AVAILABLE
Turn-key office suite featuring 3 private offices, a reception area, and a kitchenette. This space is tenant-ready with no build-out required, offering a clean and professional layout ideal for immediate occupancy.
- Lease rate does not include utilities, property expenses or building services
- 3 Private Offices
- Central Air and Heating
- Closed Circuit Television Monitoring (CCTV)
- Wheelchair Accessible
- Fits 1 - 24 People
- Space is in Excellent Condition
- Elevator Access
- Smoke Detector
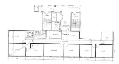
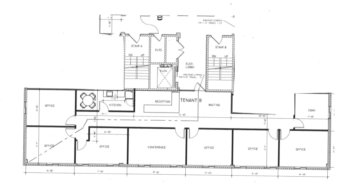
This professionally designed suite offers a reception area, waiting space, multiple private offices, two conference rooms, and a kitchen/breakroom, making it an ideal setup for a wide range of professional and medical office users. The space provides a functional floor plan that balances private offices with collaborative areas, while the built-in kitchen and breakroom add everyday convenience for staff and clients. Located directly off the main lobby and elevator, the suite ensures easy accessibility for both employees and visitors. With flexible build-out options, natural light, and strong visibility within a well-maintained property, this suite delivers the perfect combination of functionality, comfort, and accessibility.
- Lease rate does not include utilities, property expenses or building services
- 8 Private Offices
- Central Air and Heating
- Closed Circuit Television Monitoring (CCTV)
- Wheelchair Accessible
- Fits 1 - 24 People
- Space is in Excellent Condition
- Elevator Access
- Smoke Detector
| Space | Size | Term | Rental Rate | Space Use | Condition | Available |
| 2nd Floor, Ste 212 | 80-3,000 SF | Negotiable | $26.50 /SF/YR $2.21 /SF/MO $79,500 /YR $6,625 /MO | Office | Partial Build-Out | Now |
| 4th Floor, Ste 405 | 80-3,000 SF | Negotiable | $26.50 /SF/YR $2.21 /SF/MO $79,500 /YR $6,625 /MO | Office | Partial Build-Out | Now |
2nd Floor, Ste 212
| Size |
| 80-3,000 SF |
| Term |
| Negotiable |
| Rental Rate |
| $26.50 /SF/YR $2.21 /SF/MO $79,500 /YR $6,625 /MO |
| Space Use |
| Office |
| Condition |
| Partial Build-Out |
| Available |
| Now |
4th Floor, Ste 405
| Size |
| 80-3,000 SF |
| Term |
| Negotiable |
| Rental Rate |
| $26.50 /SF/YR $2.21 /SF/MO $79,500 /YR $6,625 /MO |
| Space Use |
| Office |
| Condition |
| Partial Build-Out |
| Available |
| Now |
2nd Floor, Ste 212
| Size | 80-3,000 SF |
| Term | Negotiable |
| Rental Rate | $26.50 /SF/YR |
| Space Use | Office |
| Condition | Partial Build-Out |
| Available | Now |
Turn-key office suite featuring 3 private offices, a reception area, and a kitchenette. This space is tenant-ready with no build-out required, offering a clean and professional layout ideal for immediate occupancy.
- Lease rate does not include utilities, property expenses or building services
- Fits 1 - 24 People
- 3 Private Offices
- Space is in Excellent Condition
- Central Air and Heating
- Elevator Access
- Closed Circuit Television Monitoring (CCTV)
- Smoke Detector
- Wheelchair Accessible
4th Floor, Ste 405
| Size | 80-3,000 SF |
| Term | Negotiable |
| Rental Rate | $26.50 /SF/YR |
| Space Use | Office |
| Condition | Partial Build-Out |
| Available | Now |
This professionally designed suite offers a reception area, waiting space, multiple private offices, two conference rooms, and a kitchen/breakroom, making it an ideal setup for a wide range of professional and medical office users. The space provides a functional floor plan that balances private offices with collaborative areas, while the built-in kitchen and breakroom add everyday convenience for staff and clients. Located directly off the main lobby and elevator, the suite ensures easy accessibility for both employees and visitors. With flexible build-out options, natural light, and strong visibility within a well-maintained property, this suite delivers the perfect combination of functionality, comfort, and accessibility.
- Lease rate does not include utilities, property expenses or building services
- Fits 1 - 24 People
- 8 Private Offices
- Space is in Excellent Condition
- Central Air and Heating
- Elevator Access
- Closed Circuit Television Monitoring (CCTV)
- Smoke Detector
- Wheelchair Accessible
PROPERTY OVERVIEW
Welcome to 1R Newbury Street in Peabody, MA — a premier commercial location offering unmatched visibility and convenience. Positioned directly off Route 1 with immediate access to I-95 and Route 128, this property provides an excellent opportunity for businesses seeking to establish themselves in one of the North Shore’s most high-traffic corridors. This spacious and flexible unit features high ceilings, open floor plans, and customizable layouts, making it ideal for a wide variety of uses including retail, medical office, professional services, fitness, or showroom space. The property’s divisible floor plan allows for maximum adaptability to meet tenant needs. Tenants will benefit from ample on-site parking, and strong daily traffic counts, ensuring maximum exposure to both local residents and regional commuters. The surrounding area is home to a dynamic mix of national retailers, restaurants, and thriving local businesses, creating a built-in customer base and vibrant business environment. With its combination of visibility, accessibility, and flexible space, 1R Newbury Street offers businesses the perfect location to grow, attract clients, and make a lasting impression.
- 24 Hour Access
- Kitchen
- Central Heating
- Fully Carpeted
- Direct Elevator Exposure
- Partitioned Offices
- Reception
- Air Conditioning
PROPERTY FACTS
SELECT TENANTS
- FLOOR
- TENANT NAME
- INDUSTRY
- 4th
- Caliber Home Loans
- Finance and Insurance
- 1st
- Ebenezer Tax Services
- Professional, Scientific, and Technical Services
- 4th
- HR Insourcing, LLC
- Professional, Scientific, and Technical Services
- 3rd
- Living Water Aquariums
- Retailer
- 3rd
- Merril S Chin Law Office
- Professional, Scientific, and Technical Services
- 1st
- North Shore Speech Therapy
- Health Care and Social Assistance
- 3rd
- Oakmont Partners LLC
- Finance and Insurance
- 3rd
- Pro Weight Loss
- Health Care and Social Assistance
- 2nd
- Trans Group
- Services
- 1st
- West Glen Associates
- Professional, Scientific, and Technical Services
Presented by
Peabody Corporate Center | 1R Newbury St
Hmm, there seems to have been an error sending your message. Please try again.
Thanks! Your message was sent.



