Log In/Sign Up
Your email has been sent.
2 3rd St
Troy, NY 12180
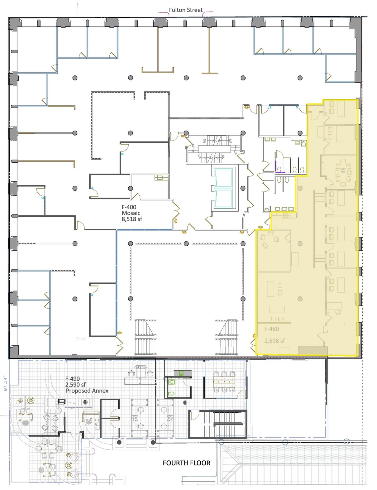
The Frear Building · Office Property For Sale


Investment Highlights
- Views of Downtown Troy & Hudson River
- High Pedestrian Traffic
- Structure on the Historic Register
Executive Summary
Major downtown Troy commercial marquee structure with 100,000+ SF of commercial Class B office and retail space. Located in site of the Hudson River waterfront, right off of a major highway, and situated at the entrance of downtown Troy. Mixed-use zoning district allows for nearly all commercial, residential, and some industrial uses. Both buildings on the tax lot are structurally connected with some shared utility services to each other as well as the city owned portion of the Troy Atrium. The property is offered as part of a three tax-parcel development/re-development portfolio that includes 2 3rd St (The Frear Building) and The Troy Atrium (on Broadway between 3rd & 4th St). Contact the LBO for full offering memorandum and additional information.
Property Facts
Sale Type
Investment
Property Type
Building Size
49,000 SF
Building Class
B
Year Built/Renovated
1920/1990
Price
$5,600,000
Price Per SF
$114.29
Percent Leased
Vacant
Tenancy
Multiple
Building Height
4 Stories
Typical Floor Size
12,250 SF
Building FAR
1.21
Lot Size
0.93 AC
Opportunity Zone
Yes
Zoning
DMU (Downtown Mixed-Use) - Downtown II Intensity Zone, Historic District Overlay, & Resilient Waterfront Overlay
Parking
6 Spaces (0.12 Spaces per 1,000 SF Leased)
Property Taxes
| Parcel Number | 1700-101.45-6-1 | Improvements Assessment | $2,960,000 |
| Land Assessment | $540,000 | Total Assessment | $3,500,000 |
Property Taxes
Parcel Number
1700-101.45-6-1
Land Assessment
$540,000
Improvements Assessment
$2,960,000
Total Assessment
$3,500,000
1 of 4
Videos
Matterport 3D Exterior
Matterport 3D Tour
Photos
Street View
Street
Map
