Log In/Sign Up
Your email has been sent.
Executive Summary
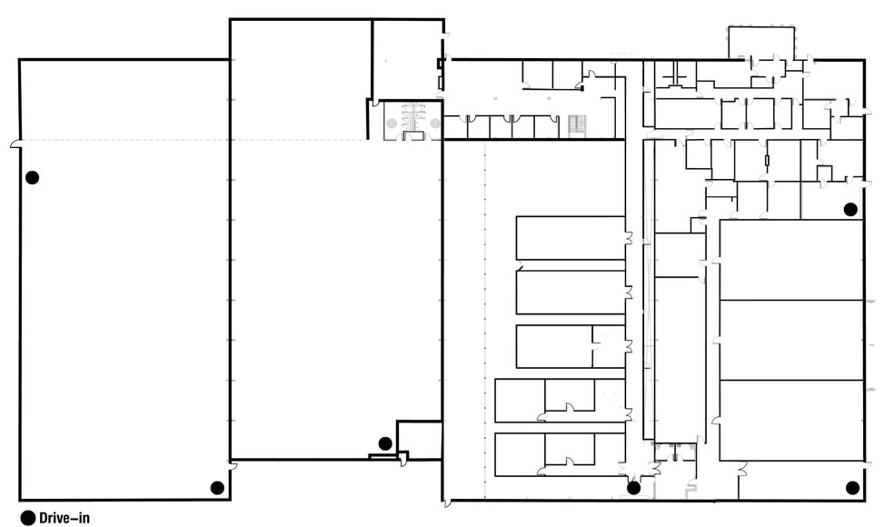
The Subject Property is a single-tenant industrial building located off Eric Circle in Verdi, Nevada. The property is a ±88,560 square foot facility sitting on ±4.0 acres of land,
consisting of lab space built out of cultivation and empty warehouse with the ability to redevelop.
Lot Size ±4.0 AC
Building Size (SF) ±88,560 SF
Sale Price $7,995,000 ($90/SF)
Sale Type Investment or Owner-User
Amenities Cultivation facility currently in operation
Power 4,000 AMP I 480 Volt I 3 Phase
Clear Height 14’ - 20’
Drive-In Doors 6
Parking 25 Auto
APN 038-060-09
Year Built 1968
Zoning I - Industrial
consisting of lab space built out of cultivation and empty warehouse with the ability to redevelop.
Lot Size ±4.0 AC
Building Size (SF) ±88,560 SF
Sale Price $7,995,000 ($90/SF)
Sale Type Investment or Owner-User
Amenities Cultivation facility currently in operation
Power 4,000 AMP I 480 Volt I 3 Phase
Clear Height 14’ - 20’
Drive-In Doors 6
Parking 25 Auto
APN 038-060-09
Year Built 1968
Zoning I - Industrial
Property Facts
| Price | $7,995,000 | Rentable Building Area | 88,560 SF |
| Price Per SF | $90.28 | No. Stories | 1 |
| Sale Type | Investment or Owner User | Year Built | 1968 |
| Property Type | Industrial | Tenancy | Single |
| Property Subtype | Warehouse | Parking Ratio | 0.28/1,000 SF |
| Building Class | B | Clear Ceiling Height | 16’ |
| Lot Size | 4.00 AC | No. Drive In / Grade-Level Doors | 6 |
| Zoning | I - Industrial | ||
| Price | $7,995,000 |
| Price Per SF | $90.28 |
| Sale Type | Investment or Owner User |
| Property Type | Industrial |
| Property Subtype | Warehouse |
| Building Class | B |
| Lot Size | 4.00 AC |
| Rentable Building Area | 88,560 SF |
| No. Stories | 1 |
| Year Built | 1968 |
| Tenancy | Single |
| Parking Ratio | 0.28/1,000 SF |
| Clear Ceiling Height | 16’ |
| No. Drive In / Grade-Level Doors | 6 |
| Zoning | I - Industrial |
1 1
Somewhat walkable
20/100
Exceptionally drivable
100/100
Somewhat bikeable
20/100
Property Taxes
| Parcel Number | 038-060-09 | Improvements Assessment | $1,413,683 |
| Land Assessment | $274,428 | Total Assessment | $1,688,111 |
Property Taxes
Parcel Number
038-060-09
Land Assessment
$274,428
Improvements Assessment
$1,413,683
Total Assessment
$1,688,111
1 of 34
Videos
Matterport 3D Exterior
Matterport 3D Tour
Photos
Street View
Street
Map
1 of 1
Presented by
2 Eric Cir
Already a member? Log In
Hmm, there seems to have been an error sending your message. Please try again.
Thanks! Your message was sent.



