Your email has been sent.
Twickenham Center 200 Davis Cir SW 4,116 - 12,299 SF of 4-Star Office Space Available in Huntsville, AL 35801



All Available Spaces(2)
Display Rental Rate as
- Space
- Size
- Term
- Rental Rate
- Space Use
- Build-Out
- Available
This fully furnished space offers a clean, modern layout with large windows for natural light, efficient LED lighting, and quality furnishings—providing a comfortable and professional environment for daily work and client meetings. Located in a Class A office building situated in the heart of downtown Huntsville’s business district. Call for pricing.
- Sublease space available from current tenant
- Mostly Open Floor Plan Layout
- Natural Light
- 250-space parking garage
- Fully Built-Out as Standard Office
- Space is in Excellent Condition
- Modular glass office walls
- Rooftop terrace
This fully furnished, high-end office space is designed to elevate productivity and impress clients, featuring expansive windows for natural light, state-of-the-art LED light fixtures, and top-of-the-line furnishings that create a sleek, modern environment.
- Sublease space available from current tenant
- Fully Built-Out as Standard Office
- Conference Rooms
- Central Air Conditioning
- Modular glass office walls for a sleek design.
- Open work space to accommodate various layouts.
- Rooftop terrace for outdoor breaks and events.
- Rate includes utilities, building services and property expenses
- Open Floor Plan Layout
- Space is in Excellent Condition
- Natural Light
- Large break area & Conference room
- 250-space parking garage.
| Space | Size | Term | Rental Rate | Space Use | Build-Out | Available |
| 2nd Floor, Ste 201 | 8,183 SF | Negotiable | Upon Request Upon Request Upon Request Upon Request | Office | Full Build-Out | Now |
| 3rd Floor, Ste 301 | 4,116 SF | Negotiable | $35.00 /SF/YR $2.92 /SF/MO $144,060 /YR $12,005 /MO | Office | Full Build-Out | Now |
2nd Floor, Ste 201
| Size |
| 8,183 SF |
| Term |
| Negotiable |
| Rental Rate |
| Upon Request Upon Request Upon Request Upon Request |
| Space Use |
| Office |
| Build-Out |
| Full Build-Out |
| Available |
| Now |
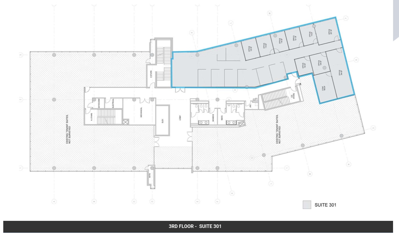
3rd Floor, Ste 301
| Size |
| 4,116 SF |
| Term |
| Negotiable |
| Rental Rate |
| $35.00 /SF/YR $2.92 /SF/MO $144,060 /YR $12,005 /MO |
| Space Use |
| Office |
| Build-Out |
| Full Build-Out |
| Available |
| Now |
2nd Floor, Ste 201
| Size | 8,183 SF |
| Term | Negotiable |
| Rental Rate | Upon Request |
| Space Use | Office |
| Build-Out | Full Build-Out |
| Available | Now |
This fully furnished space offers a clean, modern layout with large windows for natural light, efficient LED lighting, and quality furnishings—providing a comfortable and professional environment for daily work and client meetings. Located in a Class A office building situated in the heart of downtown Huntsville’s business district. Call for pricing.
- Sublease space available from current tenant
- Fully Built-Out as Standard Office
- Mostly Open Floor Plan Layout
- Space is in Excellent Condition
- Natural Light
- Modular glass office walls
- 250-space parking garage
- Rooftop terrace
3rd Floor, Ste 301
| Size | 4,116 SF |
| Term | Negotiable |
| Rental Rate | $35.00 /SF/YR |
| Space Use | Office |
| Build-Out | Full Build-Out |
| Available | Now |
This fully furnished, high-end office space is designed to elevate productivity and impress clients, featuring expansive windows for natural light, state-of-the-art LED light fixtures, and top-of-the-line furnishings that create a sleek, modern environment.
- Sublease space available from current tenant
- Rate includes utilities, building services and property expenses
- Fully Built-Out as Standard Office
- Open Floor Plan Layout
- Conference Rooms
- Space is in Excellent Condition
- Central Air Conditioning
- Natural Light
- Modular glass office walls for a sleek design.
- Large break area & Conference room
- Open work space to accommodate various layouts.
- 250-space parking garage.
- Rooftop terrace for outdoor breaks and events.
Features and Amenities
- Central Heating
- Natural Light
- Wi-Fi
- Air Conditioning
Property Facts
Presented by
Twickenham Center | 200 Davis Cir SW
Hmm, there seems to have been an error sending your message. Please try again.
Thanks! Your message was sent.




