Your email has been sent.
Oregon Station 200 Oregon Ave 1,380 - 15,640 SF of Retail Space Available in Greenwood, SC 29646



Highlights
- Prime Uptown Greenwood Location
- High-Traffic & Visibility
- Strong Local & Regional Customer Base
- Flexible Retail & Restaurant Spaces
- Community-Driven Entertainment Hub
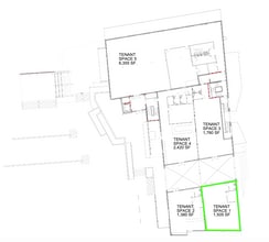
Space Availability (5)
Display Rental Rate as
- Space
- Size
- Term
- Rental Rate
- Rent Type
| Space | Size | Term | Rental Rate | Rent Type | ||
| 1st Floor, Ste Seven | 4,808 SF | Negotiable | $25.00 /SF/YR $2.08 /SF/MO $120,200 /YR $10,017 /MO | Triple Net (NNN) | ||
| 1st Floor, Ste Six | 6,371 SF | Negotiable | $25.00 /SF/YR $2.08 /SF/MO $159,275 /YR $13,273 /MO | Triple Net (NNN) | ||
| 2nd Floor, Ste One | 1,505 SF | Negotiable | $25.00 /SF/YR $2.08 /SF/MO $37,625 /YR $3,135 /MO | Triple Net (NNN) | ||
| 2nd Floor, Ste Three | 1,576 SF | Negotiable | $25.00 /SF/YR $2.08 /SF/MO $39,400 /YR $3,283 /MO | Triple Net (NNN) | ||
| 2nd Floor, Ste Two | 1,380 SF | Negotiable | $25.00 /SF/YR $2.08 /SF/MO $34,500 /YR $2,875 /MO | Triple Net (NNN) |
1st Floor, Ste Seven
- Lease rate does not include utilities, property expenses or building services
- Located in-line with other retail
- Space is in Excellent Condition
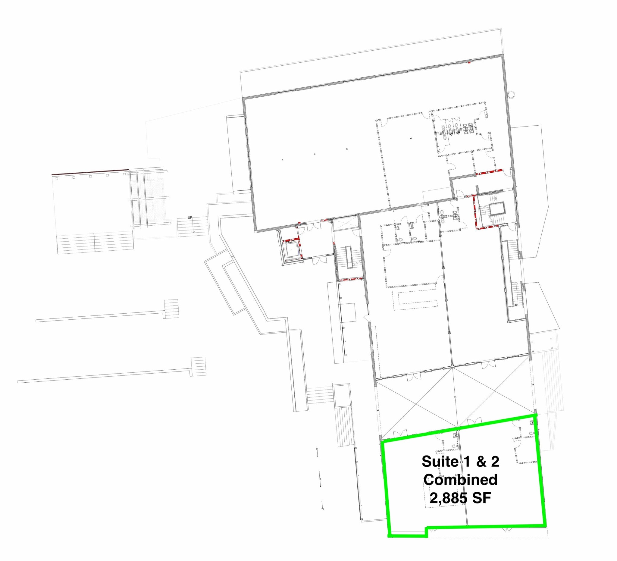
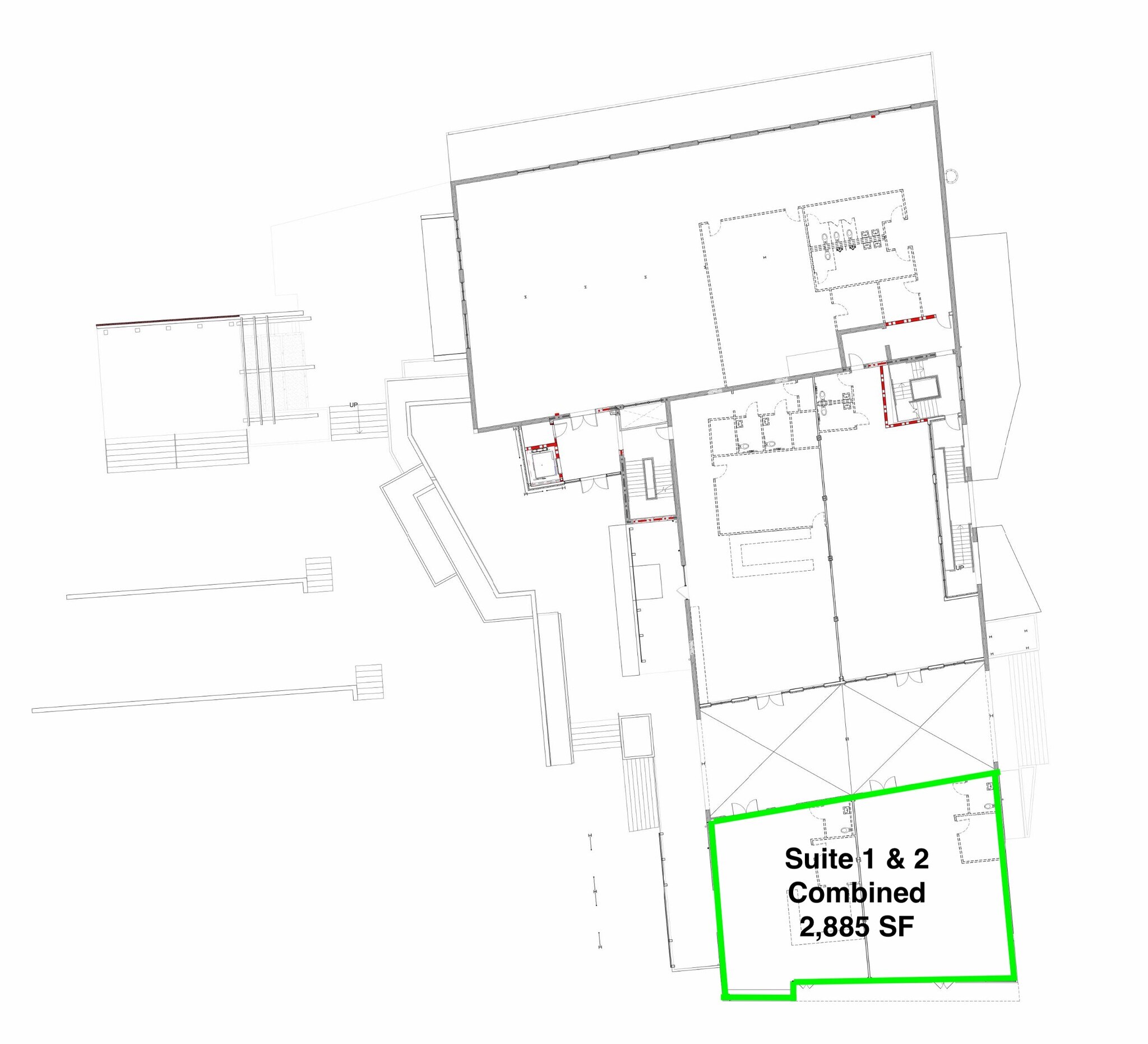
- Can be combined with additional space(s) for up to 11,179 SF of adjacent space
- Anchor Space
- High Ceilings
- Exposed Ceiling
- Yard
- Wheelchair Accessible
1st Floor, Ste Six
- Lease rate does not include utilities, property expenses or building services
- Located in-line with other retail
- Space is in Excellent Condition
- Can be combined with additional space(s) for up to 11,179 SF of adjacent space
- Anchor Space
- High Ceilings
- Exposed Ceiling
- Yard
- Wheelchair Accessible
2nd Floor, Ste One
- Lease rate does not include utilities, property expenses or building services
- Space is in Excellent Condition
- Anchor Space
- Corner Space
- High Ceilings
- Exposed Ceiling
- Yard
- Wheelchair Accessible
2nd Floor, Ste Three
- Lease rate does not include utilities, property expenses or building services
- Located in-line with other retail
- Space is in Excellent Condition
- Anchor Space
- High Ceilings
- Exposed Ceiling
- Yard
- Wheelchair Accessible
2nd Floor, Ste Two
- Lease rate does not include utilities, property expenses or building services
- Space is in Excellent Condition
- Anchor Space
- High Ceilings
- Exposed Ceiling
- Yard
- Wheelchair Accessible
Rent Types
The rent amount and type that the tenant (lessee) will be responsible to pay to the landlord (lessor) throughout the lease term is negotiated prior to both parties signing a lease agreement. The rent type will vary depending upon the services provided. For example, triple net rents are typically lower than full service rents due to additional expenses the tenant is required to pay in addition to the base rent. Contact the listing broker for a full understanding of any associated costs or additional expenses for each rent type.
1. Full Service: A rental rate that includes normal building standard services as provided by the landlord within a base year rental.
2. Double Net (NN): Tenant pays for only two of the building expenses; the landlord and tenant determine the specific expenses prior to signing the lease agreement.
3. Triple Net (NNN): A lease in which the tenant is responsible for all expenses associated with their proportional share of occupancy of the building.
4. Modified Gross: Modified Gross is a general type of lease rate where typically the tenant will be responsible for their proportional share of one or more of the expenses. The landlord will pay the remaining expenses. See the below list of common Modified Gross rental rate structures: 4. Plus All Utilities: A type of Modified Gross Lease where the tenant is responsible for their proportional share of utilities in addition to the rent. 4. Plus Cleaning: A type of Modified Gross Lease where the tenant is responsible for their proportional share of cleaning in addition to the rent. 4. Plus Electric: A type of Modified Gross Lease where the tenant is responsible for their proportional share of the electrical cost in addition to the rent. 4. Plus Electric & Cleaning: A type of Modified Gross Lease where the tenant is responsible for their proportional share of the electrical and cleaning cost in addition to the rent. 4. Plus Utilities and Char: A type of Modified Gross Lease where the tenant is responsible for their proportional share of the utilities and cleaning cost in addition to the rent. 4. Industrial Gross: A type of Modified Gross lease where the tenant pays one or more of the expenses in addition to the rent. The landlord and tenant determine these prior to signing the lease agreement.
5. Tenant Electric: The landlord pays for all services and the tenant is responsible for their usage of lights and electrical outlets in the space they occupy.
6. Negotiable or Upon Request: Used when the leasing contact does not provide the rent or service type.
7. TBD: To be determined; used for buildings for which no rent or service type is known, commonly utilized when the buildings are not yet built.
Property Facts
| Total Space Available | 15,640 SF | Gross Leasable Area | 24,600 SF |
| Max. Contiguous | 11,179 SF | Year Built/Renovated | 1909/2024 |
| Property Type | Retail | Parking Ratio | 5.07/1,000 SF |
| Total Space Available | 15,640 SF |
| Max. Contiguous | 11,179 SF |
| Property Type | Retail |
| Gross Leasable Area | 24,600 SF |
| Year Built/Renovated | 1909/2024 |
| Parking Ratio | 5.07/1,000 SF |
About the Property
Oregon Station is Uptown Greenwood’s newest mixed-use development, offering prime retail and entertainment spaces in a thriving community hub. Located at 200 Oregon Avenue, just steps from Main Street, this revitalized destination blends dining, shopping, and live entertainment in a dynamic, pedestrian-friendly environment. Featuring flexible retail spaces, a beautifully terraced lawn with a stage for concerts and events, and a modern yet historically rooted design, Oregon Station is poised to become a cornerstone of Uptown’s commercial and cultural scene. With adaptable leasing options, high visibility, and a built-in audience from surrounding businesses and residents, this is an unparalleled opportunity for retailers, restaurants, and entertainment venues to establish themselves in one of South Carolina’s most charming downtown districts.
Nearby Major Retailers
Presented by
Greenwood Development LLC
Oregon Station | 200 Oregon Ave
Hmm, there seems to have been an error sending your message. Please try again.
Thanks! Your message was sent.












