Log In/Sign Up
Your email has been sent.
Investment Highlights
- River North boutique commercial condo
- Beautifully decorated and finished.
- First floor, corner location
- Tremendous NWC exposure
Executive Summary
River North boutique commercial condo at the NWC of Wells and Superior. Magnificently appointed and decorated. Lots of glass and natural light give this location tremendous curb appeal.
Data Room Click Here to Access
Property Facts
Amenities
- 24 Hour Access
- Bus Line
- Controlled Access
- Commuter Rail
- Metro/Subway
- Security System
- Signage
- Kitchen
- High Ceilings
- Natural Light
- Partitioned Offices
- Plug & Play
- Reception
- Wi-Fi
- Air Conditioning
1 Unit Available
Unit 103
| Unit Size | 2,500 SF | Condo Use | Office/Retail |
| Price | $1,300,000 | Sale Type | Owner User |
| Price Per SF | $520.00 |
| Unit Size | 2,500 SF |
| Price | $1,300,000 |
| Price Per SF | $520.00 |
| Condo Use | Office/Retail |
| Sale Type | Owner User |
Description
2500 Sf of prime River North real estate, Commercial condo located on the first floor of the 200 W. Superior building, NWC of Wells and Superior. Tastefully decorated, perfect for office, retail, med spa and other service businesses.
Click link for virtual tour
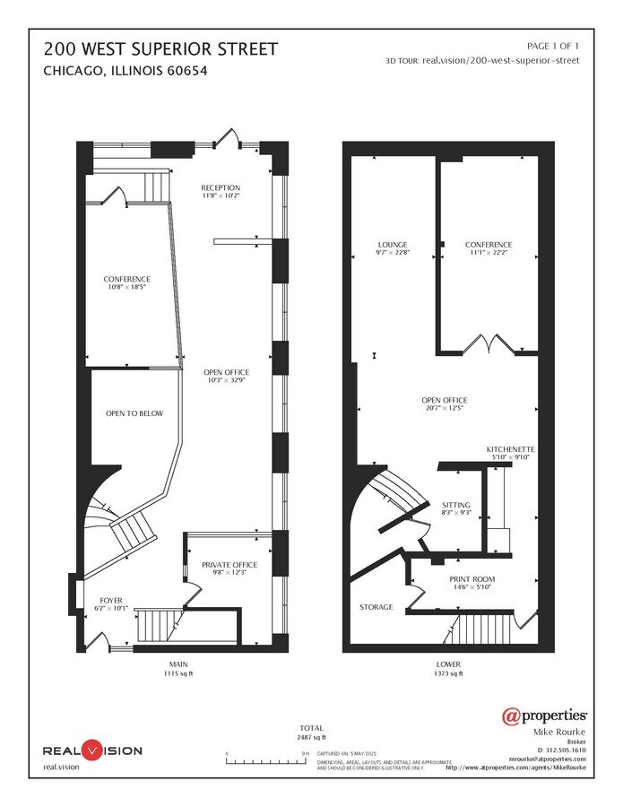
Floor Plan - 200 W. Superior
af_0001
aj_0018 - Copy - Copy
aj_0018 - Copy
ak_0032 - Copy
al_0035 - Copy
am_0005 - Copy
an_0033 - Copy
ap_0034 - Copy
aq_0012 - Copy
at_0007 - Copy
av_0009 - Copy
ax_0023 - Copy
ba_0021 - Copy
bc_0037 - Copy
1 of 15
Videos
Matterport 3D Exterior
Matterport 3D Tour
Photos
Street View
Street
Map
Walk Score®
Walker's Paradise (99)
Transit Score®
Rider's Paradise (100)
Bike Score®
Very Bikeable (86)
1 of 24
Videos
Matterport 3D Exterior
Matterport 3D Tour
Photos
Street View
Street
Map
Presented by
200 W Superior St
Already a member? Log In
Hmm, there seems to have been an error sending your message. Please try again.
Thanks! Your message was sent.
Your message has been sent!
Activate your LoopNet account now to track properties, get real-time alerts, save time on future inquiries, and more.





