Your email has been sent.
INDUSTRIAL & OFFICE SPACE 2001 County Line Rd 1,800 - 24,300 SF of Space Available in Warrington, PA 18976



Highlights
- Central Location!
Features
All Available Spaces(2)
Display Rental Rate as
- Space
- Size
- Term
- Rental Rate
- Space Use
- Build-Out
- Available
The industrial space available for lease is located at 150 Titus Avenue in Warrington, Bucks County, PA. It is a warehouse building with approximately 22,500 square feet of space. The ceilings are 22'-27' clear, and the column spacing is 20' x 50'. The building is crane-served, with three Spanco cranes that are two-ton capacity. It also has one tailgate with a leveler, a 12'x14' door, and one drive-in door of the same size. Airlines are installed throughout the building. The building has restrooms, including one men's restroom with three stalls, two urinals, and 35 lockers, and one women's restroom with one stall. The HVAC system consists of four Reznor gas heaters, each with an attached York AC unit. The building is constructed with engineered steel and block, with concrete floors. The walls are made of block and steel. The power supply is 277-480 Volt, 120-208 Volt, 3 Phase. Public utilities are available for water, sewer, and gas. The property is located in Warrington Township and the zoning is PI1 - Planned Industrial.
- Lease rate does not include utilities, property expenses or building services
- 1 Loading Dock
- Fully Conditioned
- 1 Drive Bay
- Central Air and Heating
- 3 Spancos with 2 ton cranes
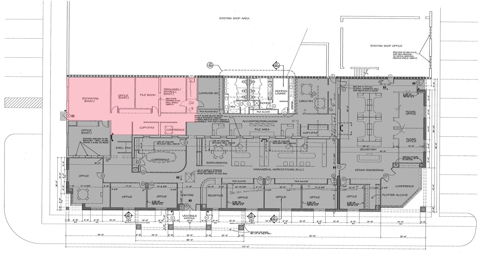
Office space has a private exterior entrance and contains private offices, a conference room, and open work areas. HVAC: Gas hot air with central air Freshly painted, new carpet, and new air conditioner. The leasing rate includes taxes and utilities; all additional expenses are the responsibility of the tenant.
- Listed rate may not include certain utilities, building services and property expenses
- Fully Carpeted
- Central Location
- New Carpet and Fresh Paint
- Central Air and Heating
- Private Entrance
- Near Major Retail Business Corridor - Route 611
| Space | Size | Term | Rental Rate | Space Use | Build-Out | Available |
| 1st Floor - 150 Titus -warehouse | 22,500 SF | Negotiable | $10.75 /SF/YR $0.90 /SF/MO $241,875 /YR $20,156 /MO | Industrial | - | Now |
| 1st Floor, Ste Office | 1,800 SF | Negotiable | $17.00 /SF/YR $1.42 /SF/MO $30,600 /YR $2,550 /MO | Office | - | Now |
1st Floor - 150 Titus -warehouse
| Size |
| 22,500 SF |
| Term |
| Negotiable |
| Rental Rate |
| $10.75 /SF/YR $0.90 /SF/MO $241,875 /YR $20,156 /MO |
| Space Use |
| Industrial |
| Build-Out |
| - |
| Available |
| Now |
1st Floor, Ste Office
| Size |
| 1,800 SF |
| Term |
| Negotiable |
| Rental Rate |
| $17.00 /SF/YR $1.42 /SF/MO $30,600 /YR $2,550 /MO |
| Space Use |
| Office |
| Build-Out |
| - |
| Available |
| Now |
1st Floor - 150 Titus -warehouse
| Size | 22,500 SF |
| Term | Negotiable |
| Rental Rate | $10.75 /SF/YR |
| Space Use | Industrial |
| Build-Out | - |
| Available | Now |
The industrial space available for lease is located at 150 Titus Avenue in Warrington, Bucks County, PA. It is a warehouse building with approximately 22,500 square feet of space. The ceilings are 22'-27' clear, and the column spacing is 20' x 50'. The building is crane-served, with three Spanco cranes that are two-ton capacity. It also has one tailgate with a leveler, a 12'x14' door, and one drive-in door of the same size. Airlines are installed throughout the building. The building has restrooms, including one men's restroom with three stalls, two urinals, and 35 lockers, and one women's restroom with one stall. The HVAC system consists of four Reznor gas heaters, each with an attached York AC unit. The building is constructed with engineered steel and block, with concrete floors. The walls are made of block and steel. The power supply is 277-480 Volt, 120-208 Volt, 3 Phase. Public utilities are available for water, sewer, and gas. The property is located in Warrington Township and the zoning is PI1 - Planned Industrial.
- Lease rate does not include utilities, property expenses or building services
- 1 Drive Bay
- 1 Loading Dock
- Central Air and Heating
- Fully Conditioned
- 3 Spancos with 2 ton cranes
1st Floor, Ste Office
| Size | 1,800 SF |
| Term | Negotiable |
| Rental Rate | $17.00 /SF/YR |
| Space Use | Office |
| Build-Out | - |
| Available | Now |
Office space has a private exterior entrance and contains private offices, a conference room, and open work areas. HVAC: Gas hot air with central air Freshly painted, new carpet, and new air conditioner. The leasing rate includes taxes and utilities; all additional expenses are the responsibility of the tenant.
- Listed rate may not include certain utilities, building services and property expenses
- Central Air and Heating
- Fully Carpeted
- Private Entrance
- Central Location
- Near Major Retail Business Corridor - Route 611
- New Carpet and Fresh Paint
Property Overview
2001 County Line Road, Warrington, PA. - Consists of industrial warehouse space and office rentals.
Warehouse Facility Facts
Presented by
INDUSTRIAL & OFFICE SPACE | 2001 County Line Rd
Hmm, there seems to have been an error sending your message. Please try again.
Thanks! Your message was sent.







