Your email has been sent.
Highlights
- Class A Mixed Use Space
- Panoramic Views of Downtown and the River Bluff
- Private Downtown Parking Lot and Covered Parking Available
- Restaurant and Spec Floor Plans Available Upon Request
Display Rental Rate as
- Space
- Size
- Term
- Rental Rate
- Space Use
- Build-Out
- Available
Suite 110 offers 1,852 SF of versatile ground-floor office space in downtown Mankato’s premier Class A development—Bridge Plaza. This modern building features a mix of upscale office spaces, a boutique hotel, and luxury urban living on the upper floor. Suite 110 is designed for professional use, featuring a welcoming front reception area with a closed door leading to multiple office spaces, a kitchenette, an in-suite bathroom, and a dedicated conference room. Adjacent Suite 115 is also available, and the spaces can be combined for a total of 3,697 SF. Enjoy a prime location with excellent visibility on Mankato’s bustling Riverfront Drive.
- Lease rate does not include utilities, property expenses or building services
- Mostly Open Floor Plan Layout
- 1 Private Office
- 5 Workstations
- Private Parking Lot and Heated Garage Available
- Private Entrance
- Fully Built-Out as Standard Office
- Fits 5 - 15 People
- 1 Conference Room
- Space is in Excellent Condition
- Excellent Visibility
1,500+ SF professional office sublease at Bridge Plaza featuring reception, conference room, open workstation areas, private office, kitchenette, storage, and floor to ceiling windows. Ideal for engineering, architecture, accounting, financial services, consulting, IT, or other professional office users.
- Lease rate does not include utilities, property expenses or building services
- Fits 4 - 13 People
- 1 Conference Room
- Space is in Excellent Condition
- Reception Area
- Security System
- Secure Storage
- Plug & Play
- Accent Lighting
- Smoke Detector
- Floor to Ceiling Windows
- Private Parking Lot and Covered Parking Available
- Fully Built-Out as Professional Services Office
- 1 Private Office
- 8 Workstations
- Central Air and Heating
- Print/Copy Room
- High Ceilings
- Emergency Lighting
- Natural Light
- Open-Plan
- Wheelchair Accessible
- Panoramic Views of Downtown and the River Bluff
Experience an impressive, custom-designed executive office featuring floor-to-ceiling windows, glass-fronted private offices, and high-end finishes throughout. The layout includes nine private offices, a dedicated conference room, two open collaborative work areas, dedicated file space, private in-suite storage, and a welcoming reception area. The suite also offers two spacious corner executive offices with exceptional natural light and professional appeal. This suite can be combined with suite 220 next door, for a combined 4,763 SF.
- Lease rate does not include utilities, property expenses or building services
- 9 Private Offices
- 6 Workstations
- Central Air and Heating
- Print/Copy Room
- High Ceilings
- Secure Storage
- Emergency Lighting
- Smoke Detector
- 2 Spacious Executive Office Suites
- Floor to Ceiling Windows
- Private Conference Room
- Fits 9 - 26 People
- 1 Conference Room
- Space is in Excellent Condition
- Reception Area
- Corner Space
- Exposed Ceiling
- Natural Light
- Open-Plan
- Wheelchair Accessible
- 9 Private Offices
- Custom Buildout with High-end Finishes
| Space | Size | Term | Rental Rate | Space Use | Build-Out | Available |
| 1st Floor, Ste 110 | 1,852 SF | Negotiable | Upon Request Upon Request Upon Request Upon Request | Office | Full Build-Out | Now |
| 2nd Floor, Ste 220 | 1,535 SF | Negotiable | $22.00 /SF/YR $1.83 /SF/MO $33,770 /YR $2,814 /MO | Office/Retail | Full Build-Out | Now |
| 2nd Floor, Ste 230 | 3,228 SF | Negotiable | $22.00 /SF/YR $1.83 /SF/MO $71,016 /YR $5,918 /MO | Office | Full Build-Out | Now |
1st Floor, Ste 110
| Size |
| 1,852 SF |
| Term |
| Negotiable |
| Rental Rate |
| Upon Request Upon Request Upon Request Upon Request |
| Space Use |
| Office |
| Build-Out |
| Full Build-Out |
| Available |
| Now |
2nd Floor, Ste 220
| Size |
| 1,535 SF |
| Term |
| Negotiable |
| Rental Rate |
| $22.00 /SF/YR $1.83 /SF/MO $33,770 /YR $2,814 /MO |
| Space Use |
| Office/Retail |
| Build-Out |
| Full Build-Out |
| Available |
| Now |
2nd Floor, Ste 230
| Size |
| 3,228 SF |
| Term |
| Negotiable |
| Rental Rate |
| $22.00 /SF/YR $1.83 /SF/MO $71,016 /YR $5,918 /MO |
| Space Use |
| Office |
| Build-Out |
| Full Build-Out |
| Available |
| Now |
- Space
- Size
- Term
- Rental Rate
- Space Use
- Build-Out
- Available
Approximately 2,500+ SF ground-level shell space at Bridge Plaza ideal for a café or restaurant concept. Open layout allows full customization of kitchen and dining areas, with a small patio area and on-site parking. Landlord incentives available for qualified operators.
- Lease rate does not include utilities, property expenses or building services
- Emergency Lighting
- Conference Rooms
- Corner Space
- Wheelchair Accessible
- Class A Mixed Use with Boutique Hotel
- Patio Seating
- Central Air and Heating
- High Ceilings
- Exposed Ceiling
- Smoke Detector
- Landlord Incentives
- Private Downtown Parking Lot
Suite 110 offers 1,852 SF of versatile ground-floor office space in downtown Mankato’s premier Class A development—Bridge Plaza. This modern building features a mix of upscale office spaces, a boutique hotel, and luxury urban living on the upper floor. Suite 110 is designed for professional use, featuring a welcoming front reception area with a closed door leading to multiple office spaces, a kitchenette, an in-suite bathroom, and a dedicated conference room. Adjacent Suite 115 is also available, and the spaces can be combined for a total of 3,697 SF. Enjoy a prime location with excellent visibility on Mankato’s bustling Riverfront Drive.
- Lease rate does not include utilities, property expenses or building services
- Mostly Open Floor Plan Layout
- 1 Private Office
- 5 Workstations
- Private Parking Lot and Heated Garage Available
- Private Entrance
- Fully Built-Out as Standard Office
- Fits 5 - 15 People
- 1 Conference Room
- Space is in Excellent Condition
- Excellent Visibility
This 1,846 SF flexible ground floor space is available in downtown Mankato's newest Class A Development—Bridge Plaza. The building is a mix of upscale office spaces and a boutique hotel, along with luxury urban living on the upper floor. Suite 115 has an open floor plan with fantastic storefront presence on Mankato's busy Riverfront Drive. It currently houses a fitness center/gym. In addition to the main area, there are two bathrooms with showers and a storage space. Suite 110, located next door, is also available for rent, and the spaces could be combined for a total of 3,697 SF.
- Listed rate may not include certain utilities, building services and property expenses
- Private Restrooms
- Emergency Lighting
- DDA Compliant
- Conference Rooms
- Corner Space
- Wheelchair Accessible
- Excellent Visibility
- Central Air and Heating
- Security System
- Shower Facilities
- High Ceilings
- Exposed Ceiling
- Smoke Detector
- Available Now
- Great Tenant Mix with Boutique hotel
1,500+ SF professional office sublease at Bridge Plaza featuring reception, conference room, open workstation areas, private office, kitchenette, storage, and floor to ceiling windows. Ideal for engineering, architecture, accounting, financial services, consulting, IT, or other professional office users.
- Lease rate does not include utilities, property expenses or building services
- Fits 4 - 13 People
- 1 Conference Room
- Space is in Excellent Condition
- Reception Area
- Security System
- Secure Storage
- Plug & Play
- Accent Lighting
- Smoke Detector
- Floor to Ceiling Windows
- Private Parking Lot and Covered Parking Available
- Fully Built-Out as Professional Services Office
- 1 Private Office
- 8 Workstations
- Central Air and Heating
- Print/Copy Room
- High Ceilings
- Emergency Lighting
- Natural Light
- Open-Plan
- Wheelchair Accessible
- Panoramic Views of Downtown and the River Bluff
Experience an impressive, custom-designed executive office featuring floor-to-ceiling windows, glass-fronted private offices, and high-end finishes throughout. The layout includes nine private offices, a dedicated conference room, two open collaborative work areas, dedicated file space, private in-suite storage, and a welcoming reception area. The suite also offers two spacious corner executive offices with exceptional natural light and professional appeal. This suite can be combined with suite 220 next door, for a combined 4,763 SF.
- Lease rate does not include utilities, property expenses or building services
- 9 Private Offices
- 6 Workstations
- Central Air and Heating
- Print/Copy Room
- High Ceilings
- Secure Storage
- Emergency Lighting
- Smoke Detector
- 2 Spacious Executive Office Suites
- Floor to Ceiling Windows
- Private Conference Room
- Fits 9 - 26 People
- 1 Conference Room
- Space is in Excellent Condition
- Reception Area
- Corner Space
- Exposed Ceiling
- Natural Light
- Open-Plan
- Wheelchair Accessible
- 9 Private Offices
- Custom Buildout with High-end Finishes
| Space | Size | Term | Rental Rate | Space Use | Build-Out | Available |
| 1st Floor - 100 | 2,690 SF | Negotiable | Upon Request Upon Request Upon Request Upon Request | Flex | Shell Space | Now |
| 1st Floor, Ste 110 | 1,852 SF | Negotiable | Upon Request Upon Request Upon Request Upon Request | Office | Full Build-Out | Now |
| 1st Floor - 115 | 1,845 SF | Negotiable | $22.00 /SF/YR $1.83 /SF/MO $40,590 /YR $3,383 /MO | Flex | Full Build-Out | Now |
| 2nd Floor, Ste 220 | 1,535 SF | Negotiable | $22.00 /SF/YR $1.83 /SF/MO $33,770 /YR $2,814 /MO | Office/Retail | Full Build-Out | Now |
| 2nd Floor, Ste 230 | 3,228 SF | Negotiable | $22.00 /SF/YR $1.83 /SF/MO $71,016 /YR $5,918 /MO | Office | Full Build-Out | Now |
1st Floor - 100
| Size |
| 2,690 SF |
| Term |
| Negotiable |
| Rental Rate |
| Upon Request Upon Request Upon Request Upon Request |
| Space Use |
| Flex |
| Build-Out |
| Shell Space |
| Available |
| Now |
1st Floor, Ste 110
| Size |
| 1,852 SF |
| Term |
| Negotiable |
| Rental Rate |
| Upon Request Upon Request Upon Request Upon Request |
| Space Use |
| Office |
| Build-Out |
| Full Build-Out |
| Available |
| Now |
1st Floor - 115
| Size |
| 1,845 SF |
| Term |
| Negotiable |
| Rental Rate |
| $22.00 /SF/YR $1.83 /SF/MO $40,590 /YR $3,383 /MO |
| Space Use |
| Flex |
| Build-Out |
| Full Build-Out |
| Available |
| Now |
2nd Floor, Ste 220
| Size |
| 1,535 SF |
| Term |
| Negotiable |
| Rental Rate |
| $22.00 /SF/YR $1.83 /SF/MO $33,770 /YR $2,814 /MO |
| Space Use |
| Office/Retail |
| Build-Out |
| Full Build-Out |
| Available |
| Now |
2nd Floor, Ste 230
| Size |
| 3,228 SF |
| Term |
| Negotiable |
| Rental Rate |
| $22.00 /SF/YR $1.83 /SF/MO $71,016 /YR $5,918 /MO |
| Space Use |
| Office |
| Build-Out |
| Full Build-Out |
| Available |
| Now |
1st Floor - 100
| Size | 2,690 SF |
| Term | Negotiable |
| Rental Rate | Upon Request |
| Space Use | Flex |
| Build-Out | Shell Space |
| Available | Now |
Approximately 2,500+ SF ground-level shell space at Bridge Plaza ideal for a café or restaurant concept. Open layout allows full customization of kitchen and dining areas, with a small patio area and on-site parking. Landlord incentives available for qualified operators.
- Lease rate does not include utilities, property expenses or building services
- Central Air and Heating
- Emergency Lighting
- High Ceilings
- Conference Rooms
- Exposed Ceiling
- Corner Space
- Smoke Detector
- Wheelchair Accessible
- Landlord Incentives
- Class A Mixed Use with Boutique Hotel
- Private Downtown Parking Lot
- Patio Seating
1st Floor, Ste 110
| Size | 1,852 SF |
| Term | Negotiable |
| Rental Rate | Upon Request |
| Space Use | Office |
| Build-Out | Full Build-Out |
| Available | Now |
Suite 110 offers 1,852 SF of versatile ground-floor office space in downtown Mankato’s premier Class A development—Bridge Plaza. This modern building features a mix of upscale office spaces, a boutique hotel, and luxury urban living on the upper floor. Suite 110 is designed for professional use, featuring a welcoming front reception area with a closed door leading to multiple office spaces, a kitchenette, an in-suite bathroom, and a dedicated conference room. Adjacent Suite 115 is also available, and the spaces can be combined for a total of 3,697 SF. Enjoy a prime location with excellent visibility on Mankato’s bustling Riverfront Drive.
- Lease rate does not include utilities, property expenses or building services
- Fully Built-Out as Standard Office
- Mostly Open Floor Plan Layout
- Fits 5 - 15 People
- 1 Private Office
- 1 Conference Room
- 5 Workstations
- Space is in Excellent Condition
- Private Parking Lot and Heated Garage Available
- Excellent Visibility
- Private Entrance
1st Floor - 115
| Size | 1,845 SF |
| Term | Negotiable |
| Rental Rate | $22.00 /SF/YR |
| Space Use | Flex |
| Build-Out | Full Build-Out |
| Available | Now |
This 1,846 SF flexible ground floor space is available in downtown Mankato's newest Class A Development—Bridge Plaza. The building is a mix of upscale office spaces and a boutique hotel, along with luxury urban living on the upper floor. Suite 115 has an open floor plan with fantastic storefront presence on Mankato's busy Riverfront Drive. It currently houses a fitness center/gym. In addition to the main area, there are two bathrooms with showers and a storage space. Suite 110, located next door, is also available for rent, and the spaces could be combined for a total of 3,697 SF.
- Listed rate may not include certain utilities, building services and property expenses
- Central Air and Heating
- Private Restrooms
- Security System
- Emergency Lighting
- Shower Facilities
- DDA Compliant
- High Ceilings
- Conference Rooms
- Exposed Ceiling
- Corner Space
- Smoke Detector
- Wheelchair Accessible
- Available Now
- Excellent Visibility
- Great Tenant Mix with Boutique hotel
2nd Floor, Ste 220
| Size | 1,535 SF |
| Term | Negotiable |
| Rental Rate | $22.00 /SF/YR |
| Space Use | Office/Retail |
| Build-Out | Full Build-Out |
| Available | Now |
1,500+ SF professional office sublease at Bridge Plaza featuring reception, conference room, open workstation areas, private office, kitchenette, storage, and floor to ceiling windows. Ideal for engineering, architecture, accounting, financial services, consulting, IT, or other professional office users.
- Lease rate does not include utilities, property expenses or building services
- Fully Built-Out as Professional Services Office
- Fits 4 - 13 People
- 1 Private Office
- 1 Conference Room
- 8 Workstations
- Space is in Excellent Condition
- Central Air and Heating
- Reception Area
- Print/Copy Room
- Security System
- High Ceilings
- Secure Storage
- Emergency Lighting
- Plug & Play
- Natural Light
- Accent Lighting
- Open-Plan
- Smoke Detector
- Wheelchair Accessible
- Floor to Ceiling Windows
- Panoramic Views of Downtown and the River Bluff
- Private Parking Lot and Covered Parking Available
2nd Floor, Ste 230
| Size | 3,228 SF |
| Term | Negotiable |
| Rental Rate | $22.00 /SF/YR |
| Space Use | Office |
| Build-Out | Full Build-Out |
| Available | Now |
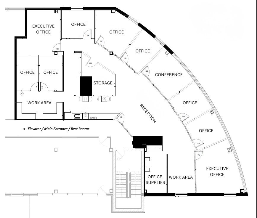
Experience an impressive, custom-designed executive office featuring floor-to-ceiling windows, glass-fronted private offices, and high-end finishes throughout. The layout includes nine private offices, a dedicated conference room, two open collaborative work areas, dedicated file space, private in-suite storage, and a welcoming reception area. The suite also offers two spacious corner executive offices with exceptional natural light and professional appeal. This suite can be combined with suite 220 next door, for a combined 4,763 SF.
- Lease rate does not include utilities, property expenses or building services
- Fits 9 - 26 People
- 9 Private Offices
- 1 Conference Room
- 6 Workstations
- Space is in Excellent Condition
- Central Air and Heating
- Reception Area
- Print/Copy Room
- Corner Space
- High Ceilings
- Exposed Ceiling
- Secure Storage
- Natural Light
- Emergency Lighting
- Open-Plan
- Smoke Detector
- Wheelchair Accessible
- 2 Spacious Executive Office Suites
- 9 Private Offices
- Floor to Ceiling Windows
- Custom Buildout with High-end Finishes
- Private Conference Room
Property Overview
Introducing Bridge Plaza, downtown Mankato's premier Class A development. This stunning 5-story building seamlessly blends upscale office and retail spaces with luxury urban residences on the upper floors. Spanning 38,000 SF of Class A commercial space and featuring 6 exquisite apartments, Bridge Plaza is designed for modern, sophisticated living and working. The ground level is set up for a dynamic restaurant with an expansive patio, ideal for dining and relaxation and also hosts a sophisticated boutique hotel. Tenants enjoy exclusive amenities, including a state-of-the-art corporate training and conference room, as well as a serene outdoor terrace. A grand entrance, adjacent to a large private parking lot, leads into a two-story atrium showcasing a dramatic curved staircase with glass railings, setting the stage for an exceptional experience.
- Bus Line
- Signage
Property Facts
Select Tenants
- Floor
- Tenant Name
- Industry
- Multiple
- Arch and Cable
- Accommodation and Food Services
- 2nd
- Brennan Companies
- Construction
- 3rd
- CliftonLarsonAllen, LLP
- Finance and Insurance
- 2nd
- Coldwell Banker Commercial Fisher Group
- Real Estate
Presented by
Bridge Plaza | 201 N Riverfront Dr
Hmm, there seems to have been an error sending your message. Please try again.
Thanks! Your message was sent.
















