Log In/Sign Up
Enter your email to login or create a free account
This feature is unavailable at the moment.
We apologize, but the feature you are trying to access is currently unavailable. We are aware of this issue and our team is working hard to resolve the matter.
Please check back in a few minutes. We apologize for the inconvenience.
- LoopNet Team
This Property is no longer advertised on LoopNet.com.
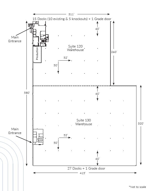
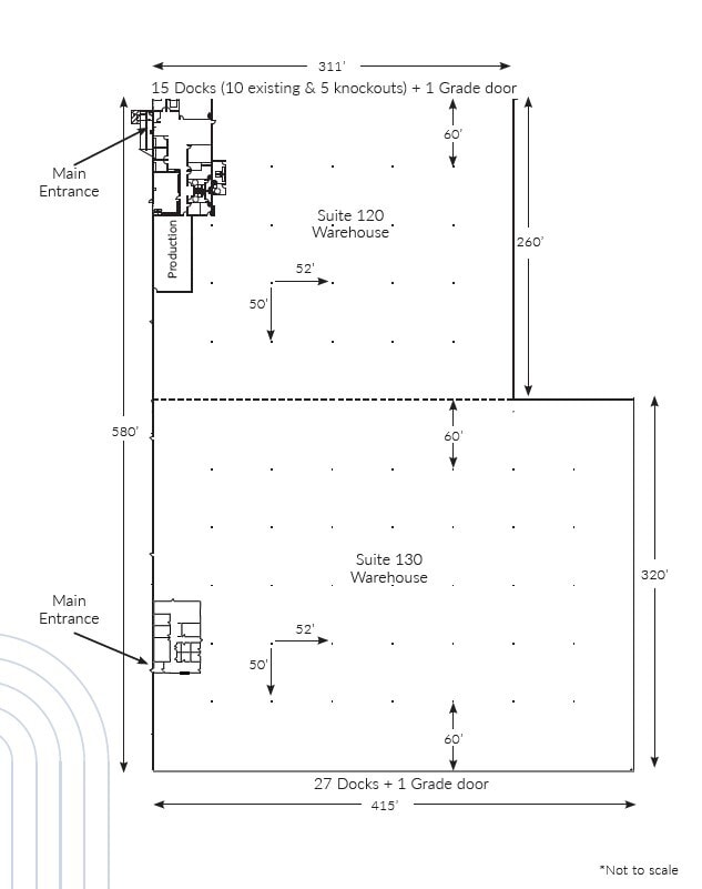
2020 Piper Ranch Rd
San Diego, CA 92154
Sunroad Corporate Center · Property For Lease

Property Facts
| Property Type | Industrial | Year Built | 2003 |
| Property Subtype | Distribution | Cross Streets | Airway |
| Rentable Building Area | 601,103 SF |
| Property Type | Industrial |
| Property Subtype | Distribution |
| Rentable Building Area | 601,103 SF |
| Year Built | 2003 |
| Cross Streets | Airway |
Features and Amenities
- 24 Hour Access
- Fenced Lot
- Security System
- Signage
- Skylights
- Energy Star Labeled
Utilities
- Lighting
- Gas - Natural
- Water - City
- Sewer - City
- Heating
Listing ID: 29693891
Date on Market: 10/3/2023
Last Updated:
Address: 2020 Piper Ranch Rd, San Diego, CA 92154
The Otay Mesa Industrial Property at 2020 Piper Ranch Rd, San Diego, CA 92154 is no longer being advertised on LoopNet.com. Contact the broker for information on availability.
INDUSTRIAL PROPERTIES IN NEARBY NEIGHBORHOODS
- Otay Mesa Commercial Real Estate Properties
- Otay Town Commercial Real Estate Properties
- Downtown Chula Vista Commercial Real Estate Properties
- Otay Ranch Commercial Real Estate Properties
- Harborside Commercial Real Estate Properties
- East Chula Vista Commercial Real Estate Properties
- Otay Mesa West Commercial Real Estate Properties
- Ocean Crest Commercial Real Estate Properties
- Rancho-Del Rey Commercial Real Estate Properties
- Palm City Commercial Real Estate Properties
- Castle Park Commercial Real Estate Properties
- Egger Highlands Commercial Real Estate Properties
- Bayfront Commercial Real Estate Properties
- Terra Nova Commercial Real Estate Properties
- Otay Ranch Village Commercial Real Estate Properties
NEARBY LISTINGS
- 2015 Birch Rd, Chula Vista CA
- 505 Main St, Chula Vista CA
- 9802 Lone Star Rd, San Diego CA
- 6754 Calle De Linea, San Diego CA
- 1516 Santiago Ridge Way, San Diego CA
- 2195 Britannia Blvd, San Diego CA
- 4550 Border Village Rd, San Diego CA
- 2365 Michael Faraday Dr, San Diego CA
- 8580 Avenida De La Fuente, San Diego CA
- 2364 Roll Dr, San Diego CA
- 8716 Sherwood Ter, San Diego CA
- 6955 Camino Maquiladora, San Diego CA
- 1641 Pacific Rim Ct, San Diego CA
- 8662 Avenida De La Fuente, San Diego CA
- 2297 Niels Bohr Ct, San Diego CA
1 of 1
Videos
Matterport 3D Exterior
Matterport 3D Tour
Photos
Street View
Street
Map

Link copied
Your LoopNet account has been created!
Thank you for your feedback.
Please Share Your Feedback
We welcome any feedback on how we can improve LoopNet to better serve your needs.X
{{ getErrorText(feedbackForm.starRating, "rating") }}
255 character limit ({{ remainingChars() }} charactercharacters remainingover)
{{ getErrorText(feedbackForm.msg, "rating") }}
{{ getErrorText(feedbackForm.fname, "first name") }}
{{ getErrorText(feedbackForm.lname, "last name") }}
{{ getErrorText(feedbackForm.phone, "phone number") }}
{{ getErrorText(feedbackForm.phonex, "phone extension") }}
{{ getErrorText(feedbackForm.email, "email address") }}
You can provide feedback any time using the Help button at the top of the page.