Your email has been sent.
Highlights
- Surrounded by medical offices and professional services.
- 76 total parking spaces, including four handicap spaces.
- Five-minute drive to W.G. Hefner VA Medical Center.
- Suitable for medical, legal, accounting, marketing, brokerage, insurance, and other office uses.
- Three blocks from Novant Health Rowan Medical Center.
- Approximately 13,575 square feet.
All Available Space(1)
Display Rental Rate as
- Space
- Size
- Term
- Rental Rate
- Space Use
- Condition
- Available
Class-A office/medical building available for lease in Salisbury, NC. The multi-tenant building has two suites on the first level and one on the second level. It is only 3 blocks from Salisbury ’s 24-hour main hospital, Novant Rowan Medical Center, and a 5 minute drive to W.G. Hefner VA Medical Center. Surrounded by medical offices, this is a great opportunity in the Charlotte MSA near major hospitals for a variety of uses, including medical, legal, accounting, marketing, brokerage, insurance and other office uses.
- Office intensive layout
- Class-A office/medical facility.
- 76 total parking spaces | 4 handicap spaces
- Fits 12 - 37 People
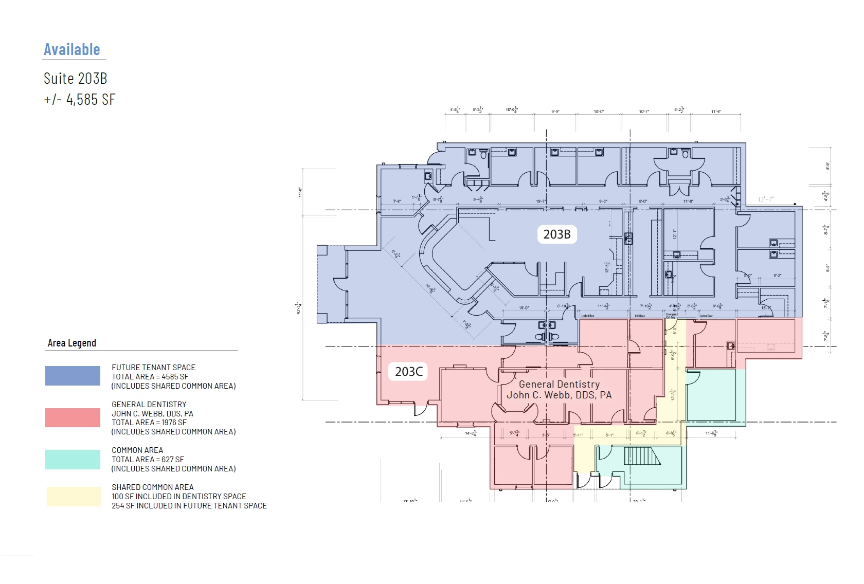
- 4,585 RSF on the first floor.
| Space | Size | Term | Rental Rate | Space Use | Condition | Available |
| 1st Floor | 4,585 SF | Negotiable | Upon Request Upon Request Upon Request Upon Request | Office | Full Build-Out | Now |
1st Floor
| Size |
| 4,585 SF |
| Term |
| Negotiable |
| Rental Rate |
| Upon Request Upon Request Upon Request Upon Request |
| Space Use |
| Office |
| Condition |
| Full Build-Out |
| Available |
| Now |
1st Floor
| Size | 4,585 SF |
| Term | Negotiable |
| Rental Rate | Upon Request |
| Space Use | Office |
| Condition | Full Build-Out |
| Available | Now |
Class-A office/medical building available for lease in Salisbury, NC. The multi-tenant building has two suites on the first level and one on the second level. It is only 3 blocks from Salisbury ’s 24-hour main hospital, Novant Rowan Medical Center, and a 5 minute drive to W.G. Hefner VA Medical Center. Surrounded by medical offices, this is a great opportunity in the Charlotte MSA near major hospitals for a variety of uses, including medical, legal, accounting, marketing, brokerage, insurance and other office uses.
- Office intensive layout
- Fits 12 - 37 People
- Class-A office/medical facility.
- 4,585 RSF on the first floor.
- 76 total parking spaces | 4 handicap spaces
Property Overview
Class-A office/medical building available for lease in Salisbury, NC. The multi-tenant building has two suites on the first level and one on the second level. It is only 3 blocks from Salisbury ’s 24-hour main hospital, Novant Rowan Medical Center, and a 5 minute drive to W.G. Hefner VA Medical Center. Surrounded by medical offices, this is a great opportunity in the Charlotte MSA near major hospitals for a variety of uses, including medical, legal, accounting, marketing, brokerage, insurance and other office uses.
- Signage
Property Facts
Presented by
203 Mocksville Ave
Hmm, there seems to have been an error sending your message. Please try again.
Thanks! Your message was sent.







