Log In/Sign Up
Your email has been sent.
2090 Chino Hills Pkwy - Chino Hills Preschool 13,487 SF Specialty Building Offered at $6,676,065 in Chino Hills, CA 91709



INVESTMENT HIGHLIGHTS
- Plug and Play Preschool Site.
- CUP in Place for Preschool Operation
- 10 Classrooms each with their own restrooms.
EXECUTIVE SUMMARY
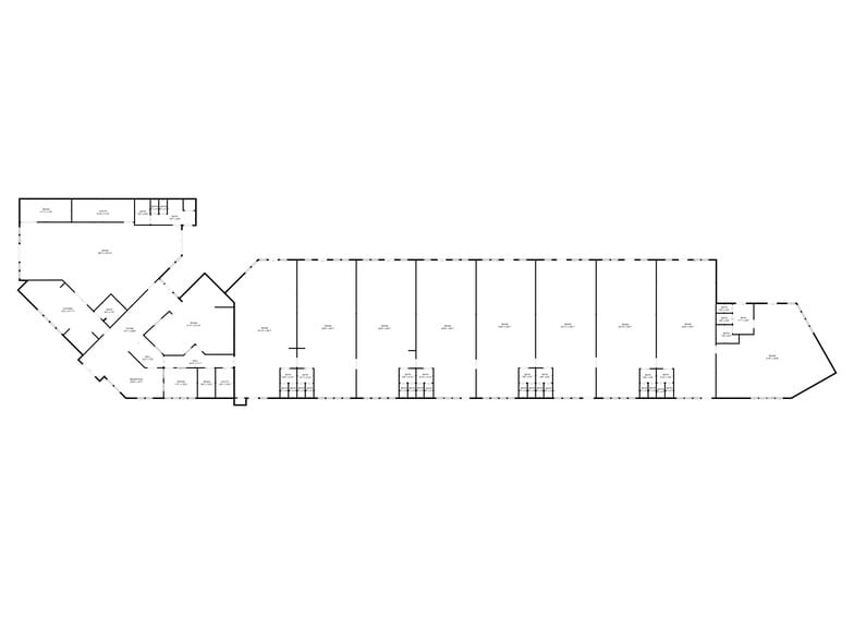
Ashwill Associates is pleased to present a rare opportunity to purchase a premier second-generation school/educational facility located at 2090 Chino Hills Parkway in Chino Hills. Purpose-built as a school, the property offers 13,487 SF of improvements on a 2.24-acre lot, featuring 10 classrooms (each with its own kitchenette and restrooms), 5 outdoor play yards with structures, and ample parking.
The site benefits from an existing Conditional Use Permit (CUP) for preschool operations, allowing immediate use for educational purposes. With its high-visibility location along Chino Hills Parkway, strong surrounding demographics, and turnkey condition, the property is an excellent fit for preschools, charter/private schools, daycare centers, or other institutional users.
This flexible offering provides a unique opportunity to secure a well-located, purpose-built facility in one of Southern California’s most desirable communities.
The site benefits from an existing Conditional Use Permit (CUP) for preschool operations, allowing immediate use for educational purposes. With its high-visibility location along Chino Hills Parkway, strong surrounding demographics, and turnkey condition, the property is an excellent fit for preschools, charter/private schools, daycare centers, or other institutional users.
This flexible offering provides a unique opportunity to secure a well-located, purpose-built facility in one of Southern California’s most desirable communities.
TAXES & OPERATING EXPENSES (ACTUAL - 2025) Click Here to Access |
ANNUAL | ANNUAL PER SF |
|---|---|---|
| Taxes |
-
|
-
|
| Operating Expenses |
-
|
-
|
| Total Expenses |
$99,999
|
$9.99
|
TAXES & OPERATING EXPENSES (ACTUAL - 2025) Click Here to Access
| Taxes | |
|---|---|
| Annual | - |
| Annual Per SF | - |
| Operating Expenses | |
|---|---|
| Annual | - |
| Annual Per SF | - |
| Total Expenses | |
|---|---|
| Annual | $99,999 |
| Annual Per SF | $9.99 |
PROPERTY FACTS
| Price | $6,676,065 | Building Class | C |
| Price Per SF | $495 | Lot Size | 2.24 AC |
| Sale Type | Owner User | Building Size | 13,487 SF |
| Sale Condition | Lease Option | No. Stories | 1 |
| Property Type | Specialty | Year Built | 1997 |
| Property Subtype | School | Parking Ratio | 3.71/1,000 SF |
| Zoning | Public Institutional | ||
| Price | $6,676,065 |
| Price Per SF | $495 |
| Sale Type | Owner User |
| Sale Condition | Lease Option |
| Property Type | Specialty |
| Property Subtype | School |
| Building Class | C |
| Lot Size | 2.24 AC |
| Building Size | 13,487 SF |
| No. Stories | 1 |
| Year Built | 1997 |
| Parking Ratio | 3.71/1,000 SF |
| Zoning | Public Institutional |
AMENITIES
- Signage
- Wheelchair Accessible
- Air Conditioning
- Fiber Optic Internet
PROPERTY TAXES
| Parcel Number | 1024-511-01 | Improvements Assessment | $1,756,942 |
| Land Assessment | $1,628,657 | Total Assessment | $3,385,599 |
PROPERTY TAXES
Parcel Number
1024-511-01
Land Assessment
$1,628,657
Improvements Assessment
$1,756,942
Total Assessment
$3,385,599
1 of 59
VIDEOS
MATTERPORT 3D EXTERIOR
MATTERPORT 3D TOUR
PHOTOS
STREET VIEW
STREET
MAP
Presented by
2090 Chino Hills Pkwy - Chino Hills Preschool
Already a member? Log In
Hmm, there seems to have been an error sending your message. Please try again.
Thanks! Your message was sent.

