Log In/Sign Up
Your email has been sent.
21 Fruean Way 1,578 SF Industrial Condo Unit Offered at $335,000 in South Yarmouth, MA 02664



1 Unit Available
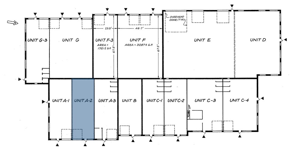
Unit A2
| Unit Size | 1,578 SF | Condo Use | Industrial |
| Price | $335,000 | Sale Type | Investment or Owner User |
| Price Per SF | $212.29 |
| Unit Size | 1,578 SF |
| Price | $335,000 |
| Price Per SF | $212.29 |
| Condo Use | Industrial |
| Sale Type | Investment or Owner User |
Description
Unit Area: 1,560 SF
Ceiling Height: 20’
10’ X 10’ Loading Dock Door
Condo Fee: $191/month
For Sale: $350,000
21-fruean-avenue-0012
21-fruean-ave-south-yarmouth-floor-plan
21-fruean-avenue-0018
21-fruean-avenue-0017
21-fruean-avenue-0016
21-fruean-avenue-0015
21-fruean-avenue-0014
21-fruean-avenue-001
1 of 8
Videos
Matterport 3D Exterior
Matterport 3D Tour
Photos
Street View
Street
Map
Property Facts
The following property facts and utilities apply to the entire building. Details for individual condo units may vary and are listed in the unit information above.
| Total Building Size | 31,559 SF | Typical Floor Size | 31,559 SF |
| Property Type | Industrial (Condo) | Year Built | 1988 |
| Property Subtype | Warehouse | Lot Size | 3.71 AC |
| Building Class | B | Parking Ratio | 1.9/1,000 SF |
| Floors | 1 | ||
| Zoning | B-3 | ||
| Total Building Size | 31,559 SF |
| Property Type | Industrial (Condo) |
| Property Subtype | Warehouse |
| Building Class | B |
| Floors | 1 |
| Typical Floor Size | 31,559 SF |
| Year Built | 1988 |
| Lot Size | 3.71 AC |
| Parking Ratio | 1.9/1,000 SF |
| Zoning | B-3 |
Utilities
- Gas - Natural
- Heating - Gas
1 1
Somewhat walkable
20/100
Exceptionally drivable
90/100
Moderately bikeable
60/100
1 of 15
Videos
Matterport 3D Exterior
Matterport 3D Tour
Photos
Street View
Street
Map
1 of 1
Presented by
21 Fruean Way
Already a member? Log In
Hmm, there seems to have been an error sending your message. Please try again.
Thanks! Your message was sent.

