Your email has been sent.
Contour on Prospect 2111 E Ivanhoe Pl 3,961 SF of 4-Star Retail Space Available in Milwaukee, WI 53202



Highlights
- Contour on Prospect offers spacious storefront retail, restaurant, and/or office space in a prominent location in the heart of the East Side.
- Take advantage of potential build-to-suit options and tenant improvement packages offered by the landlord to customize your ideal space.
- Surrounded by several national retailers, including Urban Outfitters, YogaSix, Beans & Barley, Anytime Fitness, and Whole Foods.
- Grey box or second-gen storefronts ideal for retail or restaurant use, with flexible lease terms and ready for tenant-specific build-outs.
- One block from Crossroads Collective, the Oriental Theatre, Columbia St. Mary’s Hospital, Lake Park, and near Lake Michigan.
- Incredibly walkable location situated in the sought-after East Side neighborhood of Milwaukee, just north of downtown overlooking the Bay.
All Available Space(1)
Display Rental Rate as
- Space
- Size
- Term
- Rental Rate
- Space Use
- Build-Out
- Available
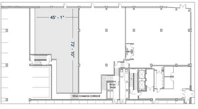
This space is a corner retail location with a private office, restrooms, and even offers a built to suit chance if interested.
- Fully Built-Out as Standard Retail Space
- High visibility amongst N. Prospect Ave.
- This suite is surrounded by national tenants.
- Private Restrooms
- Space is located in the Heart of East Side.
- Owner offers flexible terms and TI.
| Space | Size | Term | Rental Rate | Space Use | Build-Out | Available |
| 1st Floor, Ste 2214 | 3,961 SF | Negotiable | Upon Request Upon Request Upon Request Upon Request | Retail | Full Build-Out | Now |
1st Floor, Ste 2214
| Size |
| 3,961 SF |
| Term |
| Negotiable |
| Rental Rate |
| Upon Request Upon Request Upon Request Upon Request |
| Space Use |
| Retail |
| Build-Out |
| Full Build-Out |
| Available |
| Now |
1st Floor, Ste 2214
| Size | 3,961 SF |
| Term | Negotiable |
| Rental Rate | Upon Request |
| Space Use | Retail |
| Build-Out | Full Build-Out |
| Available | Now |
This space is a corner retail location with a private office, restrooms, and even offers a built to suit chance if interested.
- Fully Built-Out as Standard Retail Space
- Private Restrooms
- High visibility amongst N. Prospect Ave.
- Space is located in the Heart of East Side.
- This suite is surrounded by national tenants.
- Owner offers flexible terms and TI.
Matterport 3D Tour
Property Facts
| Total Space Available | 3,961 SF | Apartment Style | Mid-Rise |
| No. Units | 89 | Building Size | 148,694 SF |
| Property Type | Multifamily | Year Built | 2019 |
| Property Subtype | Apartment |
| Total Space Available | 3,961 SF |
| No. Units | 89 |
| Property Type | Multifamily |
| Property Subtype | Apartment |
| Apartment Style | Mid-Rise |
| Building Size | 148,694 SF |
| Year Built | 2019 |
About the Property
Contour on Prospect is a new luxury mixed-use apartment building comprising Class A residential units atop gleaming commercial ground-level space in the heart of Milwaukee's East Side at 2111 E Ivanhoe Place. In addition to a built-out retail storefront, there is a contemporary commercial storefront in grey box condition with a concrete subfloor, ready for tenant customization and offering flexible lease terms. The retail spaces boast an open concept with high ceilings, great visibility, and access. Potential build-to-suit and/or tenant improvement package opportunities are available and provided by the landlord. Positioned at the heavily trafficked corner of N Prospect Avenue and E Ivanhoe Place, Contour Apartments is highly visible to thousands of vehicles and abundant foot traffic each day. Commuting is a breeze with direct connections to Lake Drive and Lincoln Memorial Drive, near access to Interstates 794 and 43. There is ample street parking around the building. Overlooking Milwaukee Bay just north of downtown, Milwaukee's East Side stands out as one of the city's most desirable neighborhoods. East Side is instantly recognizable by its historic water tower looming over the tree-lined avenues, boutique shopping, and local cafes. Destination streets like Brady and North Avenue are at arm's reach, as are local favorites, and entertainment and socializing hot spots abound. Parks and green space dot the Lower East Side, and abundant businesses and other services make it incredibly walkable.
Marketing Brochure
Demographics
Demographics
Nearby Amenities
Restaurants |
|||
|---|---|---|---|
| Sip & Purr | Cafe | - | 2 min walk |
| Yokohama | Japanese | - | 2 min walk |
| Mad Chicken | Fast Food | $ | 2 min walk |
| Egg & Flour Pasta Bar | Italian | $$$ | 2 min walk |
| Frida | American | $$$$ | 2 min walk |
| Scratch Ice Cream | Ice Cream | - | 2 min walk |
| Ruta's Vibrant Indian Cafe | Indian | $$$ | 2 min walk |
| Potbelly | - | - | 1 min walk |
| Ian's Pizza by the Slice | American | $ | 2 min walk |
Retail |
||
|---|---|---|
| FedEx Office | Business/Copy/Postal Services | In Building |
| Educators Credit Union | Bank | 1 min walk |
| Yoga six | Fitness | 1 min walk |
| Dogtopia | Animal Care/Groom | 3 min walk |
| Free People | Ladies' Apparel | 2 min walk |
| Whole Foods Market | Supermarket | 2 min walk |
| Urban Outfitters | Unisex Apparel | 2 min walk |
| Anytime Fitness | Fitness | 3 min walk |
| Chiropractic Company | MD/DDS | 4 min walk |
| Ubreakifix | Consumer Electronics | 4 min walk |
Leasing Agent
Leasing Agent
Nathan Bernstein, Director of Commercial Real Estate
About the Owner
Other Properties in the JOSEPH PROPERTY DEVELOPMENT Portfolio
About the Architect
Other Properties in the RINKA Portfolio
Presented by
Contour on Prospect | 2111 E Ivanhoe Pl
Hmm, there seems to have been an error sending your message. Please try again.
Thanks! Your message was sent.




