Log In/Sign Up
Enter your email to login or create a free account
This feature is unavailable at the moment.
We apologize, but the feature you are trying to access is currently unavailable. We are aware of this issue and our team is working hard to resolve the matter.
Please check back in a few minutes. We apologize for the inconvenience.
- LoopNet Team
This Office Property is no longer advertised on LoopNet.com.
2115 Shattuck Ave
Berkeley, CA 94704
Office Property For Sale

Investment Highlights
- New Single-Tenant NNN, 5/5/5 with 5% Annual Increase; 6.18% Cap Rate (Year 1)
- 100 WalkScore "Walkers Paradise," 99 BikeScore "Bikers Paradise"
- Double Frontage; 1 Block to UC Berkeley Campus; Fronts Downtown Berkeley BART Station
Property Facts
Property Type
Office
Property Subtype
- Medical
- General Retail Restaurant
- Office Medical
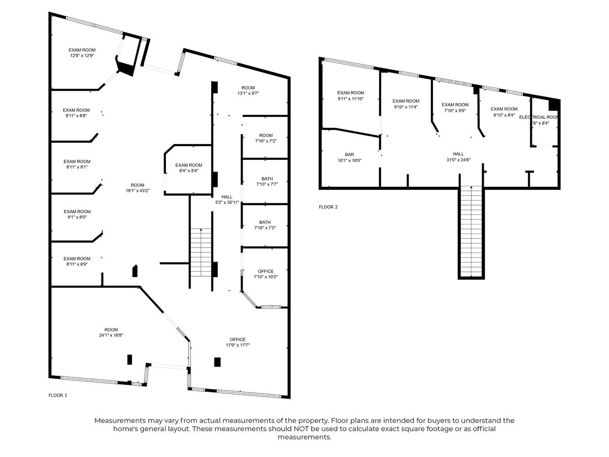
Building Size
3,450 SF
Building Class
C
Year Built/Renovated
1930/1960
Tenancy
Single
Building Height
2 Stories
Typical Floor Size
2,685 SF
Building FAR
1.28
Lot Size
0.06 AC
Zoning
C-DMU Core - C-DMU Core
Amenities
- Commuter Rail
- Metro/Subway
- Security System
- Storage Space
- Air Conditioning
- Smoke Detector
Property Taxes
| Parcel Number | 057-2032-016-00 | Improvements Assessment | $1,799,892 |
| Land Assessment | $488,988 | Total Assessment | $2,288,880 |
Property Taxes
Parcel Number
057-2032-016-00
Land Assessment
$488,988
Improvements Assessment
$1,799,892
Total Assessment
$2,288,880
Listing ID: 32395186
Date on Market: 7/9/2024
Last Updated:
Address: 2115 Shattuck Ave, Berkeley, CA 94704
The Downtown Berkeley Office Property at 2115 Shattuck Ave, Berkeley, CA 94704 is no longer being advertised on LoopNet.com. Contact the broker for information on availability.
OFFICE PROPERTIES IN NEARBY NEIGHBORHOODS
- Downtown San Francisco Medical Offices
- Downtown Oakland Medical Offices
- East Oakland Medical Offices
- Oakland Hills Medical Offices
- Chinatown Medical Offices
- Lower Nob Medical Offices
- Mosswood Medical Offices
- Downtown Berkeley Medical Offices
- Lower Hills District Medical Offices
- Elmwood Medical Offices
- Northwood-Tara Medical Offices
- Nob Hill Medical Offices
NEARBY LISTINGS
- 1758-1760 Solano Ave, Berkeley CA
- 901 Clay St, Oakland CA
- 1909 University Ave, Berkeley CA
- 1849 Brandon St, Oakland CA
- 1207-1233 University Ave, Berkeley CA
- 2741 10th St, Berkeley CA
- 482 W MacArthur Blvd, Oakland CA
- 411-445 8th St, Oakland CA
- 3021 Telegraph Ave, Berkeley CA
- 1036 60th St, Emeryville CA
- 464 19th St, Oakland CA
- 811 Folger Ave, Berkeley CA
- 1829 Euclid Ave, Berkeley CA
- 2831-2849 7th St, Berkeley CA
1 of 1
Videos
Matterport 3D Exterior
Matterport 3D Tour
Photos
Street View
Street
Map

Link copied
Your LoopNet account has been created!
Thank you for your feedback.
Please Share Your Feedback
We welcome any feedback on how we can improve LoopNet to better serve your needs.X
{{ getErrorText(feedbackForm.starRating, "rating") }}
255 character limit ({{ remainingChars() }} charactercharacters remainingover)
{{ getErrorText(feedbackForm.msg, "rating") }}
{{ getErrorText(feedbackForm.fname, "first name") }}
{{ getErrorText(feedbackForm.lname, "last name") }}
{{ getErrorText(feedbackForm.phone, "phone number") }}
{{ getErrorText(feedbackForm.phonex, "phone extension") }}
{{ getErrorText(feedbackForm.email, "email address") }}
You can provide feedback any time using the Help button at the top of the page.