Your email has been sent.
Highlights
- The property offers 2,264 square feet of fully built-out second-generation restaurant space.
- The site provides high-visibility frontage along Olive Avenue, ensuring strong exposure to traffic.
- The location allows easy access to Clematis Street, The Square, and the Brightline Station.
- It includes a complete commercial kitchen with a hood system for immediate operational use.
- It is surrounded by established residential and commercial density that supports consistent customer flow.
- The property is situated in a vibrant downtown environment that attracts both residents and visitors.
All Available Space(1)
Display Rental Rate as
- Space
- Size
- Term
- Rental Rate
- Space Use
- Build-Out
- Available
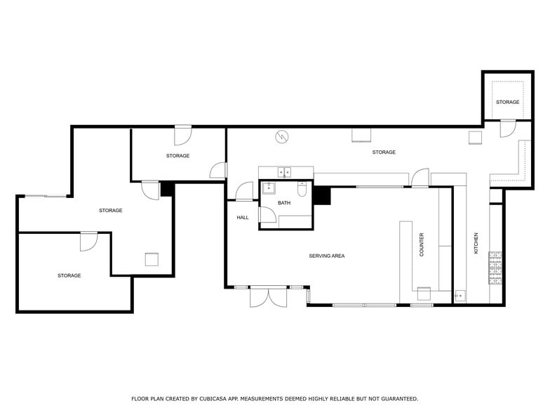
This 2,264 SF ground-floor restaurant space, located at the base of The Strand, offers full kitchen infrastructure and contemporary dining layout. Situated in the heart of Downtown West Palm Beach, the property is steps from Clematis Street, The Square, and the Brightline Station. Ideal for an experienced operator or investor seeking a turnkey restaurant opportunity
- Fully Built-Out as a Restaurant or Café Space
| Space | Size | Term | Rental Rate | Space Use | Build-Out | Available |
| 1st Floor | 2,264 SF | Negotiable | $47.00 /SF/YR $3.92 /SF/MO $106,408 /YR $8,867 /MO | Retail | Full Build-Out | Now |
1st Floor
| Size |
| 2,264 SF |
| Term |
| Negotiable |
| Rental Rate |
| $47.00 /SF/YR $3.92 /SF/MO $106,408 /YR $8,867 /MO |
| Space Use |
| Retail |
| Build-Out |
| Full Build-Out |
| Available |
| Now |
1st Floor
| Size | 2,264 SF |
| Term | Negotiable |
| Rental Rate | $47.00 /SF/YR |
| Space Use | Retail |
| Build-Out | Full Build-Out |
| Available | Now |
This 2,264 SF ground-floor restaurant space, located at the base of The Strand, offers full kitchen infrastructure and contemporary dining layout. Situated in the heart of Downtown West Palm Beach, the property is steps from Clematis Street, The Square, and the Brightline Station. Ideal for an experienced operator or investor seeking a turnkey restaurant opportunity
- Fully Built-Out as a Restaurant or Café Space
Property Facts
| Total Space Available | 2,264 SF | Apartment Style | Hi-Rise |
| No. Units | 252 | Building Size | 453,545 SF |
| Property Type | Multifamily | Year Built | 2002 |
| Property Subtype | Apartment |
| Total Space Available | 2,264 SF |
| No. Units | 252 |
| Property Type | Multifamily |
| Property Subtype | Apartment |
| Apartment Style | Hi-Rise |
| Building Size | 453,545 SF |
| Year Built | 2002 |
Nearby Major Retailers
Presented by
The Strand | 255 Evernia St
Hmm, there seems to have been an error sending your message. Please try again.
Thanks! Your message was sent.







