Enter your email to login or create a free account
This feature is unavailable at the moment.
We apologize, but the feature you are trying to access is currently unavailable. We are aware of this issue and our team is working hard to resolve the matter.
Please check back in a few minutes. We apologize for the inconvenience.
- LoopNet Team
213 Kingsway Rd
Brandon, FL 33510
Property For Lease

Property Overview
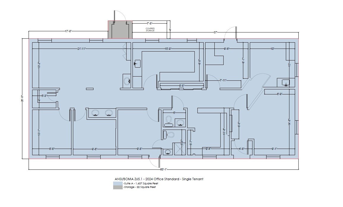
Welcome to 213 Kingsway Rd in Brandon, FL, a prime leasing opportunity for businesses. This well-maintained property offers ample parking, beautiful landscaping and diverse space layout to accommodate a range of business needs. Excellently positioned for high visibility and easy accessibility, the property presents an attractive opportunity for businesses looking to establish or expand their presence in the vibrant community of Brandon. The 1607 SF space for lease offers the ability to satisfy a vast array of medical or office configurations, currently equipped with three (3) medical chair locations in one (1) open bay room, two (2) separate exam rooms, one (1) x-ray room with lead lined wall, one (1) lab room/break room and two (2) bathrooms (1 including private shower).
Property Facts
Attachments
| Lease Brochure |
Listing ID: 35396355
Date on Market: 4/7/2025
Last Updated:
Address: 213 Kingsway Rd, Brandon, FL 33510
The Office Property at 213 Kingsway Rd, Brandon, FL 33510 is no longer being advertised on LoopNet.com. Contact the broker for information on availability.
OFFICE PROPERTIES IN NEARBY NEIGHBORHOODS
- Southeast Tampa Commercial Real Estate Properties
- North Tampa Commercial Real Estate Properties
- East Tampa Commercial Real Estate Properties
- Ybor Commercial Real Estate Properties
- East Lake Commercial Real Estate Properties
- Orient Park Commercial Real Estate Properties
- Northeast Community Commercial Real Estate Properties
- Eastside Tampa Commercial Real Estate Properties
- Cross Creek Commercial Real Estate Properties
- Port Of Tampa Commercial Real Estate Properties
NEARBY LISTINGS
- 1070-1072 E Brandon Blvd, Brandon FL
- 1133-1135 Professional Park Dr, Brandon FL
- 501 S Falkenburg Rd, Tampa FL
- 1211 Tech Blvd, Tampa FL
- 330 Pauls Dr, Brandon FL
- 101 W Morgan St, Brandon FL
- 131 N Mount Carmel Rd, Valrico FL
- 1038-1040 E Brandon Blvd, Brandon FL
- 105 N Falkenburg Rd, Tampa FL
- 1413 Tech Blvd, Tampa FL
- 2721 Agnes St, Tampa FL
- 2119 W Brandon Blvd, Brandon FL
- 111 W Robertson St, Brandon FL
- 401 S Parsons Ave, Brandon FL
- 1202 Tech Blvd, Tampa FL
