Your email has been sent.
Macedonia Missionary Baptist Church 2135 Sutter St 603 - 9,700 SF of Flex Space Available in San Francisco, CA 94115



Highlights
- Historic landmark in Fillmore District Convenient transit: #2 Sutter & #22 Fillmore
- Convenient transit: #2 Sutter & #22 Fillmore
- Large flexible spaces, up to 5,000?sq?ft
All Available Spaces(5)
Display Rental Rate as
- Space
- Size
- Term
- Rental Rate
- Space Use
- Condition
- Available
- Listed rate may not include certain utilities, building services and property expenses
- Finished Ceilings: 11’
- Open Floor Plan Layout
- Listed rate may not include certain utilities, building services and property expenses
- Listed rate may not include certain utilities, building services and property expenses
- Listed rate may not include certain utilities, building services and property expenses
- Listed rate may not include certain utilities, building services and property expenses
| Space | Size | Term | Rental Rate | Space Use | Condition | Available |
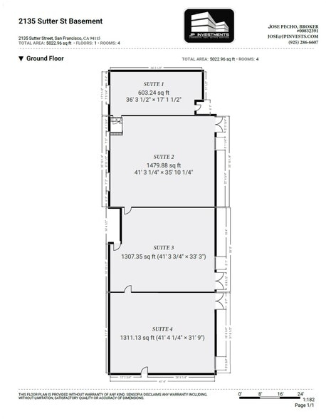
| 1st Floor - 1 | 603 SF | Negotiable | Upon Request Upon Request Upon Request Upon Request | Flex | Spec Suite | Now |
| 1st Floor - 2 | 1,479 SF | Negotiable | Upon Request Upon Request Upon Request Upon Request | Flex | - | Now |
| 1st Floor - 3 | 1,307 SF | Negotiable | Upon Request Upon Request Upon Request Upon Request | Flex | - | Now |
| 1st Floor - 4 | 1,311 SF | Negotiable | Upon Request Upon Request Upon Request Upon Request | Flex | - | Now |
| 2nd Floor - 5 | 5,000 SF | Negotiable | Upon Request Upon Request Upon Request Upon Request | Flex | - | Now |
1st Floor - 1
| Size |
| 603 SF |
| Term |
| Negotiable |
| Rental Rate |
| Upon Request Upon Request Upon Request Upon Request |
| Space Use |
| Flex |
| Condition |
| Spec Suite |
| Available |
| Now |
1st Floor - 2
| Size |
| 1,479 SF |
| Term |
| Negotiable |
| Rental Rate |
| Upon Request Upon Request Upon Request Upon Request |
| Space Use |
| Flex |
| Condition |
| - |
| Available |
| Now |
1st Floor - 3
| Size |
| 1,307 SF |
| Term |
| Negotiable |
| Rental Rate |
| Upon Request Upon Request Upon Request Upon Request |
| Space Use |
| Flex |
| Condition |
| - |
| Available |
| Now |
1st Floor - 4
| Size |
| 1,311 SF |
| Term |
| Negotiable |
| Rental Rate |
| Upon Request Upon Request Upon Request Upon Request |
| Space Use |
| Flex |
| Condition |
| - |
| Available |
| Now |
2nd Floor - 5
| Size |
| 5,000 SF |
| Term |
| Negotiable |
| Rental Rate |
| Upon Request Upon Request Upon Request Upon Request |
| Space Use |
| Flex |
| Condition |
| - |
| Available |
| Now |
1st Floor - 1
| Size | 603 SF |
| Term | Negotiable |
| Rental Rate | Upon Request |
| Space Use | Flex |
| Condition | Spec Suite |
| Available | Now |
- Listed rate may not include certain utilities, building services and property expenses
- Open Floor Plan Layout
- Finished Ceilings: 11’
1st Floor - 2
| Size | 1,479 SF |
| Term | Negotiable |
| Rental Rate | Upon Request |
| Space Use | Flex |
| Condition | - |
| Available | Now |
- Listed rate may not include certain utilities, building services and property expenses
1st Floor - 3
| Size | 1,307 SF |
| Term | Negotiable |
| Rental Rate | Upon Request |
| Space Use | Flex |
| Condition | - |
| Available | Now |
- Listed rate may not include certain utilities, building services and property expenses
1st Floor - 4
| Size | 1,311 SF |
| Term | Negotiable |
| Rental Rate | Upon Request |
| Space Use | Flex |
| Condition | - |
| Available | Now |
- Listed rate may not include certain utilities, building services and property expenses
2nd Floor - 5
| Size | 5,000 SF |
| Term | Negotiable |
| Rental Rate | Upon Request |
| Space Use | Flex |
| Condition | - |
| Available | Now |
- Listed rate may not include certain utilities, building services and property expenses
About the Property
Property Description – 2135 Sutter Street, San?Francisco Located in the heart of the Fillmore District, the landmark?Macedonia Missionary Baptist Church (built 1906) offers a rare leasing opportunity in a historic, highly visible setting. With zoning?NC-2 (Neighborhood Commercial), the property supports a wide variety of neighborhood-serving uses while remaining compatible with the surrounding community. The building features approximately 56,000?sq?ft over three stories plus a basement, on a 0.43-acre urban site. Of particular interest: the lower level offers four separate suites ranging from 604?sq?ft to 1,480?sq?ft, with a combined contiguous area of 5,022?sq?ft, ADA accessible. In addition, a generous worship area of approximately 5,000?sq?ft is available ideal for event space, studio use, performance space, gatherings, or large-scale community leasing. Transit Accessibility: #2 Sutter – Stop at Sutter and Steiner St, just 1/2 block away #22 Fillmore – Stop at Sutter and Fillmore St, 1 1/2 blocks away These routes provide convenient access for staff, clients, and visitors, making the property highly accessible via public transit. Highlights & Benefits: * Historic landmark presence in the Fillmore, a culturally rich district. * Flexible leasing options: multiple smaller suites in the lower level (604–1,480?sq?ft) with contiguous space totaling 5,022 SF. * Large open worship area (~5,000?sq?ft) on the second floor with high ceilings and excellent volume for creative or community uses. * NC-2 zoning supports retail, office, community programs, studios, and professional services—ideal for tenants seeking mission-aligned, neighborhood-serving spaces. * Rents and terms are negotiable, offering flexibility to accommodate tenants’ needs. Potential Uses: Whether you’re a creative studio, fitness/yoga provider, community nonprofit, rehearsal space, office user, or event host, this property offers a unique mix of scale, character, and flexibility. The suites on the lower level are ready for rapid occupancy or conversion, and the worship space provides a dramatic and adaptable floorplate for larger programs or shared-use scenarios. Summary: This is a compelling leasing option for tenants seeking character-rich real estate in San Francisco with flexible space, strong transit connectivity, and meaningful neighborhood presence. The Macedonia Missionary Baptist Church property at 2135?Sutter?Street provides a platform for growth, community engagement, and creative uses in a historic landmark building.
Property Facts
| Total Space Available | 9,700 SF | Building Size | 56,455 SF |
| Property Type | Specialty | Year Built | 1906 |
| Property Subtype | Religious Facility |
| Total Space Available | 9,700 SF |
| Property Type | Specialty |
| Property Subtype | Religious Facility |
| Building Size | 56,455 SF |
| Year Built | 1906 |
Presented by
Macedonia Missionary Baptist Church | 2135 Sutter St
Hmm, there seems to have been an error sending your message. Please try again.
Thanks! Your message was sent.











