Your email has been sent.
Park Highlights
- Available for Immediate Occupancy!
- 7” reinforced concrete floor
- EV charging
- Contiguous available space starting at 5,200 SF up to 166,400 SF
- Metal roof deck
Park Facts
| Total Space Available | 160,463 SF | Park Type | Industrial Park |
| Min. Divisible | 5,200 SF |
| Total Space Available | 160,463 SF |
| Min. Divisible | 5,200 SF |
| Park Type | Industrial Park |
All Available Spaces(2)
Display Rental Rate as
- Space
- Size
- Term
- Rental Rate
- Space Use
- Build-Out
- Available
State-of-the-art industrial lease opportunity, with functional warehouse space, premier office, heavy power, ample parking and truck loading, and convenient access.
- 14 Drive Ins
- 26 Loading Docks
- 7” reinforced concrete floor
- EV charging
- Space is in Excellent Condition
- Contiguous available space 5,200 SF to 85,800 SF
- Metal roof deck
| Space | Size | Term | Rental Rate | Space Use | Build-Out | Available |
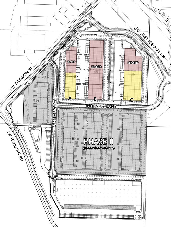
| 1st Floor - Building A | 5,200-54,871 SF | Negotiable | Upon Request Upon Request Upon Request Upon Request | Industrial | Spec Suite | Now |
13921 SW Industry Ln - 1st Floor - Building A
- Space
- Size
- Term
- Rental Rate
- Space Use
- Build-Out
- Available
State-of-the-art industrial lease opportunity, with functional warehouse space, premier office, heavy power, ample parking and truck loading, and convenient access.
- 7 Drive Ins
- 42 Loading Docks
- 7” reinforced concrete floor
- EV charging
- Space is in Excellent Condition
- Contiguous available space 5,200 SF to 102,183 SF
- Metal roof deck
| Space | Size | Term | Rental Rate | Space Use | Build-Out | Available |
| 1st Floor - Building C | 5,200-105,592 SF | Negotiable | Upon Request Upon Request Upon Request Upon Request | Industrial | Spec Suite | Now |
13633 SW Industry Ln - 1st Floor - Building C
13921 SW Industry Ln - 1st Floor - Building A
| Size | 5,200-54,871 SF |
| Term | Negotiable |
| Rental Rate | Upon Request |
| Space Use | Industrial |
| Build-Out | Spec Suite |
| Available | Now |
State-of-the-art industrial lease opportunity, with functional warehouse space, premier office, heavy power, ample parking and truck loading, and convenient access.
- 14 Drive Ins
- Space is in Excellent Condition
- 26 Loading Docks
- Contiguous available space 5,200 SF to 85,800 SF
- 7” reinforced concrete floor
- Metal roof deck
- EV charging
13633 SW Industry Ln - 1st Floor - Building C
| Size | 5,200-105,592 SF |
| Term | Negotiable |
| Rental Rate | Upon Request |
| Space Use | Industrial |
| Build-Out | Spec Suite |
| Available | Now |
State-of-the-art industrial lease opportunity, with functional warehouse space, premier office, heavy power, ample parking and truck loading, and convenient access.
- 7 Drive Ins
- Space is in Excellent Condition
- 42 Loading Docks
- Contiguous available space 5,200 SF to 102,183 SF
- 7” reinforced concrete floor
- Metal roof deck
- EV charging
Site Plan
Park Overview
State-of-the-art industrial lease opportunity, with functional warehouse space, premier office, heavy power, ample parking and truck loading, and convenient access.
Presented by
Sherwood Commerce Center | Sherwood, OR 97140
Hmm, there seems to have been an error sending your message. Please try again.
Thanks! Your message was sent.









